**Standout Features:**
- Five-bedroom detached bungalow with planning permission for enhancement
- No onward chain, making for a straightforward purchase
- Spacious living areas with two generous reception rooms
- Beautifully appointed kitchen with integrated appliances
- Master bedroom with walk-in wardrobe and en-suite bathroom
- Large front and rear gardens, plus two attached garages and ample off-road parking
- Located in a desirable residential area close to schools, shops, and public transport
**Summary:**
This immaculately maintained five-bedroom detached bungalow on Daylesford Road, Cheadle, offers a perfect blend of space and comfort, making it ideal for growing families. With no onward chain, you can move in with ease and take advantage of the generous living spaces, including two large reception rooms that provide a welcoming environment for family gatherings or entertaining guests. The stylish kitchen, featuring integrated appliances and high-quality finishes, flows seamlessly into an impressive dining area.
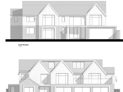
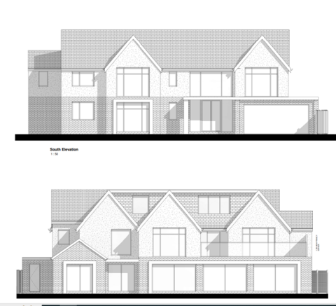
The master suite is a true retreat, equipped with a walk-in wardrobe and a modern en-suite bathroom, while four additional double bedrooms ensure ample space for all family members. The layout presents potential for custom renovations or extensions, specifically with existing planning permission for an enhanced five-bedroom detached home (reference DC/089707).
Outside, the expansive front and rear gardens provide serene outdoor spaces, perfect for relaxation or kids to play, complemented by the convenience of two garages and a sizeable driveway accommodating multiple vehicles. Situated in a highly sought-after area with excellent local amenities and schools, this property promises comfort and future potential. Don't miss out on this unique opportunity—early viewing is highly recommended!
2 bedroom detached bungalow for sale in Daylesford Crescent, Cheadle, SK8 1LH, SK8 — £450,000 • 2 bed • 1 bath • 1140 ft²
4 bedroom detached house for sale in Daylesford Crescent, Cheadle, SK8 — £750,000 • 4 bed • 2 bath • 1872 ft²
2 bedroom detached bungalow for sale in Marrick Avenue, Cheadle, SK8 — £425,000 • 2 bed • 1 bath • 1319 ft²
5 bedroom detached house for sale in Beechfield Road, Cheadle Hulme, SK8 — £935,000 • 5 bed • 3 bath • 1833 ft²
5 bedroom detached house for sale in Kingston Hill, Cheadle, SK8 — £900,000 • 5 bed • 2 bath • 2683 ft²
2 bedroom detached house for sale in Marland Avenue, Cheadle Hulme, SK8 — £335,000 • 2 bed • 1 bath • 861 ft²






















































































