High-ceiling period apartment with long lease and excellent transport connections.
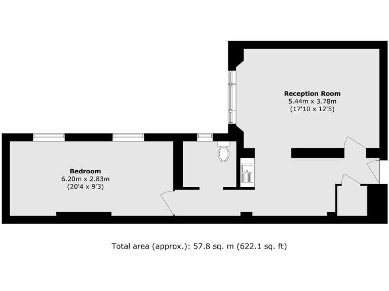
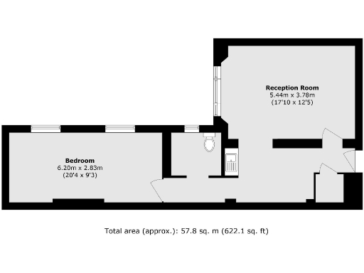
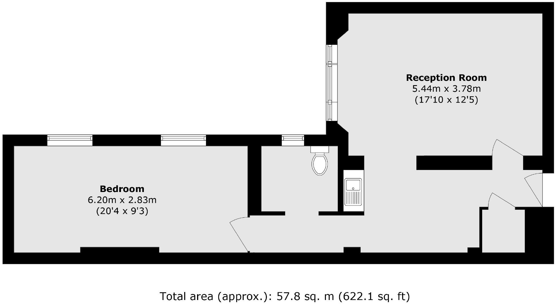
Raised ground-floor one-bedroom, approx. 622 sq ft (57.8 sq m)
This raised ground-floor one-bedroom offers classic stucco-fronted Victorian character and high ceilings in a central W2 location. Tall sash windows bring generous light to a long reception and bedroom; the 622 sq ft layout suits a single occupant or couple seeking period proportions and close park access.
The apartment is unmodernised and presented as an ideal refurbishment project. Electric storage heating, assumed solid brick walls with no added insulation, and an outdated layout mean planned works will be needed to modernise heating, wiring, kitchen and bathroom. Service charge (£1,313pa), ground rent (£123pa) and leasehold tenure (122 years) are typical for the building and should be factored into running costs.
Location is a genuine strength: Westbourne Terrace sits opposite Hyde Park with Paddington transport connections nearby (national rail, Heathrow links, Elizabeth line). Local amenities and several well-regarded schools are within easy reach. Note the local area is described as inner-city cosmopolitan with very high crime statistics and pockets of deprivation; buyers should consider this when assessing personal safety and rental prospects.
For a buyer comfortable managing a refurbishment — investor or hands-on first-time purchaser — the flat offers scope to restore period features, reconfigure the plan for improved flow, and add value through modernisation. Important practical checks (services, planning, exact running costs and safety certificates) are advised before committing.
1 bedroom flat for sale in Gloucester Terrace, Notting Hill, W2 — £625,000 • 1 bed • 1 bath • 585 ft²
1 bedroom flat for sale in Orsett Terrace, Bayswater, London, W2 — £280,000 • 1 bed • 1 bath • 346 ft²
3 bedroom apartment for sale in Westbourne Terrace, Bayswater, London, W2 — £1,199,000 • 3 bed • 2 bath • 1261 ft²
1 bedroom apartment for sale in Westbourne Terrace, Bayswater, W2 — £525,000 • 1 bed • 1 bath • 527 ft²
1 bedroom flat for sale in Gloucester Terrace, LONDON, W2 — £500,000 • 1 bed • 1 bath • 550 ft²
1 bedroom flat for sale in Westbourne Court, Paddington, London, W2 — £350,000 • 1 bed • 1 bath • 403 ft²






