1930s detached bungalow with period charm, large plot, garage and conservatory—ideal for downsizers..
Period features: original parquet flooring, Art Deco doors, feature fireplace
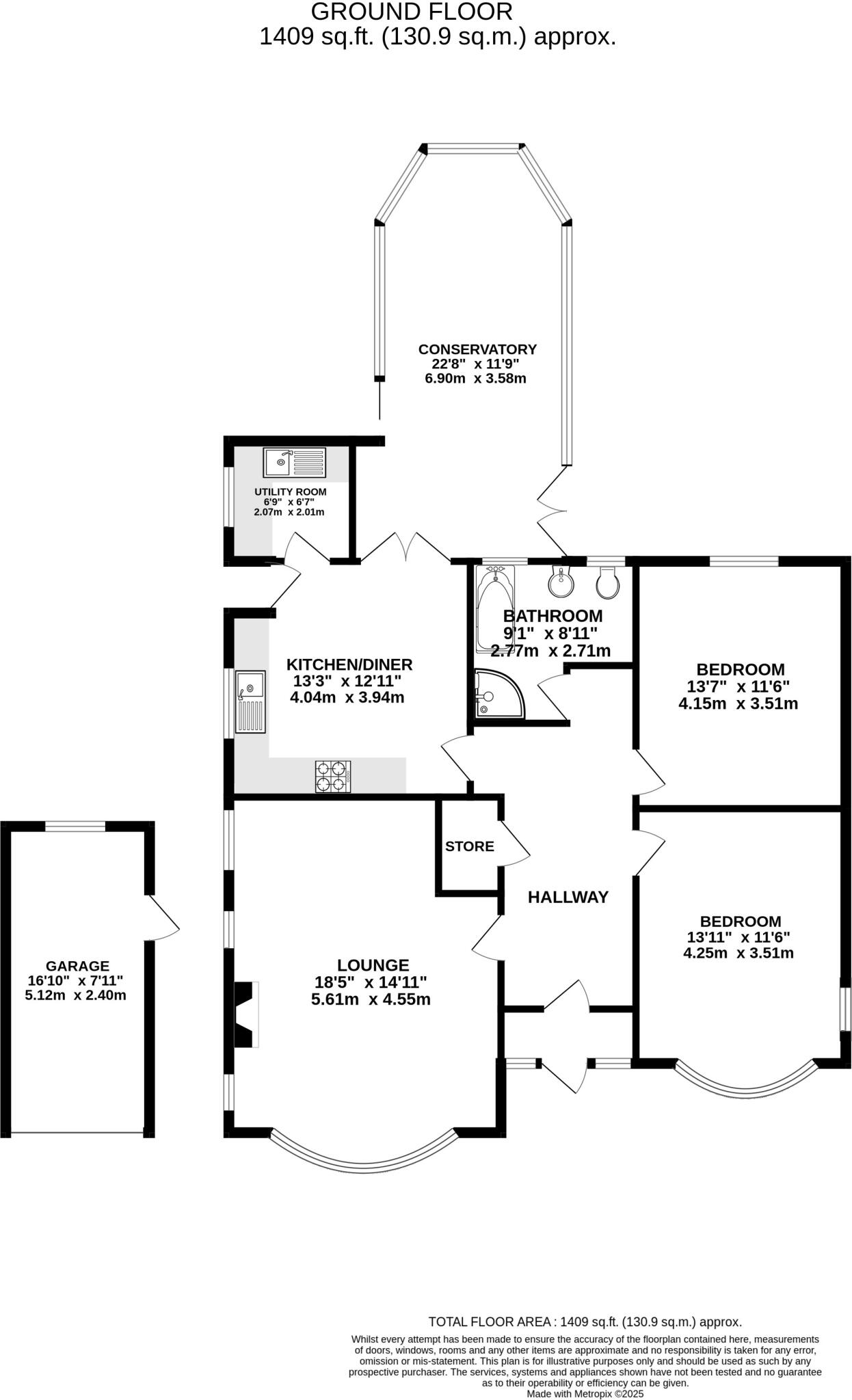
Two double bedrooms and large 1,409 sq ft single‑storey layout
Large conservatory overlooking established, private rear garden
Detached garage with power and lighting; ample block‑paved driveway parking
EPC D — may benefit from energy improvements and updating
Single bathroom only; may be limiting for some household arrangements
Built c.1930 — some systems and finishes likely need modernisation
Freehold on a large plot in a very low‑crime, affluent area
This detached 1930s bungalow on Selby Lane combines generous single‑storey living with authentic period detail. The home’s original parquet floors, Art Deco glazed doors and feature fireplace give rooms character while the large, light-filled living room and two double bedrooms provide comfortable, practical space. The sizable conservatory and established rear garden extend the living area and offer a private outdoor retreat.
Practical features include a detached garage with power and lighting, a broad block‑paved driveway and a useful utility room. At approximately 1,409 sq ft overall, the layout feels spacious for bungalow living and sits on a large plot in a very low‑crime, affluent part of Keyworth with fast broadband and excellent mobile signal.
Buyers should note this is a 1930s build with an EPC rating of D and Council Tax Band E; some energy improvements or modernisation may be advisable. There is a single bathroom and the property’s age means systems and finishes may not match current new‑build standards. Nonetheless the freehold tenure, period charm and practical parking/garage make this a strong option for downsizers or purchasers wanting a roomy, single‑level home with scope to tailor finishes.
Keyworth offers village amenities, good primary and secondary schooling options, and easy access to surrounding countryside and Nottingham. Early viewing is recommended to appreciate the scale, charm and potential of this rare detached bungalow in a sought‑after lane.
4 bedroom detached house for sale in Selby Lane, Keyworth, Nottingham, NG12 — £525,000 • 4 bed • 1 bath • 1388 ft²
2 bedroom bungalow for sale in Brook View Drive, Keyworth, Nottingham, NG12 — £330,000 • 2 bed • 2 bath • 1499 ft²
2 bedroom detached bungalow for sale in Hacienda, Villa Road, Keyworth, NG12 — £350,000 • 2 bed • 1 bath • 987 ft²
2 bedroom bungalow for sale in Laurel Avenue, Keyworth, NG12 — £399,950 • 2 bed • 1 bath • 1002 ft²
2 bedroom bungalow for sale in Beech Avenue, Keyworth, Nottingham, NG12 — £275,000 • 2 bed • 1 bath • 710 ft²
2 bedroom detached bungalow for sale in Poplars Close, Keyworth, NG12 — £425,000 • 2 bed • 1 bath • 1968 ft²














































































































