Spacious family house with large garden and gated parking near village amenities.
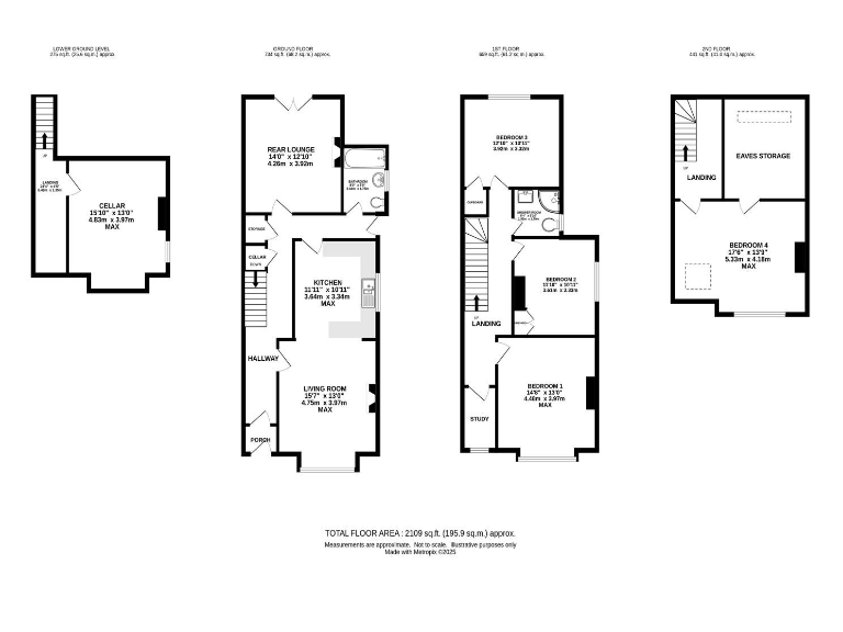
- Four double bedrooms across four floors
- Large private rear garden (approx 0.13 acres)
- Gated off-street parking for several vehicles
- Stunning period features and high ceilings throughout
- Cellar chambers provide useful storage space
- Eaves storage could convert to dressing/ensuite, subject to planning
- Solid brick walls; likely need insulation and energy upgrades
- Possible damp in places; council tax above average
A substantial four-bedroom Victorian semi-detached house arranged over four floors, offering generous living space and strong scope to personalise. The property retains original period features and high ceilings throughout, recently redecorated to provide a fresh, neutral backdrop. A large-than-average rear garden of approximately 0.13 acres and gated off-street parking for several vehicles are rare advantages so close to Heaton Moor Village.
Accommodation includes two reception rooms, a study, cellar chambers and a large second-floor bedroom with extensive eaves storage that could be converted into a dressing room or ensuite subject to planning permission. The ground floor flows from a spacious bay-fronted lounge into an open-plan kitchen and family room with patio doors to the raised terrace — ideal for family life and entertaining.
Practical considerations: the property is of solid brick construction typical of its era and may require wall insulation upgrades to improve thermal performance. There are image-noted signs of potential damp in places, and council tax is above average. Buyers should factor renovation/refurbishment costs for any modernisation or insulation work, and any major layout changes will need planning approval.
Well placed for families, the house is within easy walking distance of popular local schools, independent shops, cafes and transport links. For purchasers seeking a spacious period home with scope to extend and upgrade, this house offers excellent plot size, character and proximity to village amenities, while requiring sensible investment to bring energy performance and some fabric issues up to modern standards.
5 bedroom semi-detached house for sale in Tatton Road South, Heaton Moor, SK4 — £925,000 • 5 bed • 4 bath • 2470 ft²
4 bedroom semi-detached house for sale in Tatton Road South, Heaton Moor, Stockport, SK4 — £675,000 • 4 bed • 1 bath • 1434 ft²
5 bedroom semi-detached house for sale in Lea Road, Heaton Moor, Stockport, SK4 — £850,000 • 5 bed • 2 bath • 1994 ft²
4 bedroom semi-detached house for sale in Stanley Grove, Stockport, SK4 — £650,000 • 4 bed • 2 bath • 1393 ft²
5 bedroom terraced house for sale in Cranbourne Road, Heaton Moor, Stockport, SK4 — £825,000 • 5 bed • 2 bath • 2776 ft²
4 bedroom semi-detached house for sale in Norfolk Avenue, Heaton Chapel, SK4 — £495,000 • 4 bed • 1 bath • 1841 ft²














































































































































































