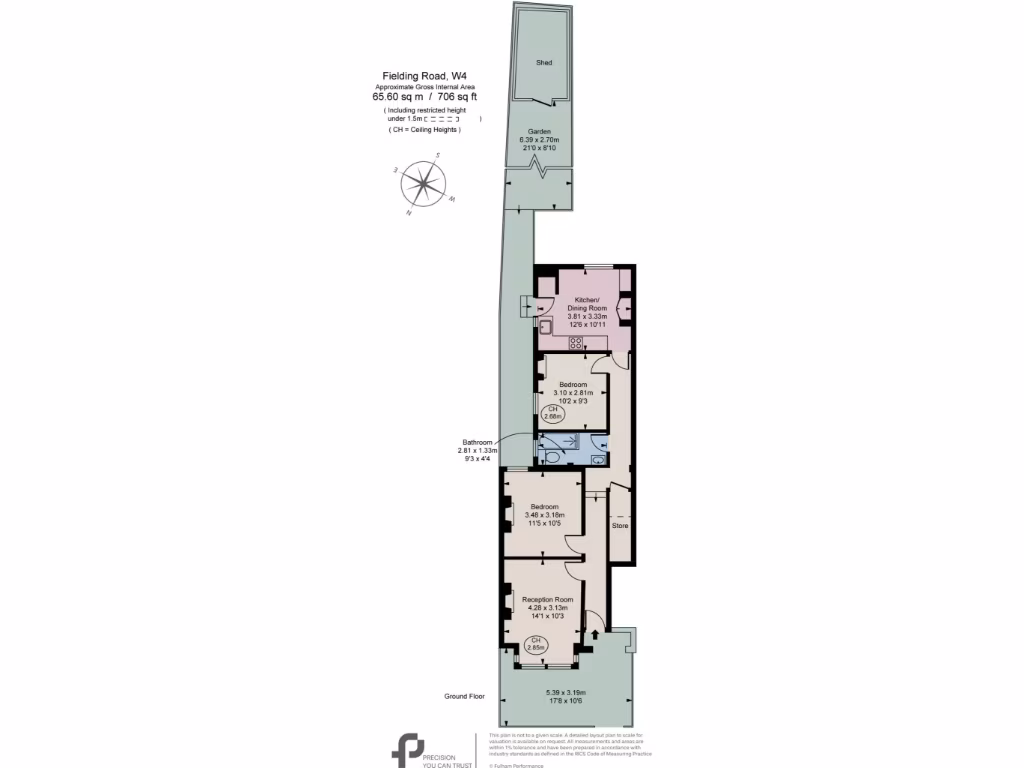
Sunny ground-floor home with outdoor space ideal for growing families.
- South-facing private garden with detached storage shed
- Private ground-floor entrance and rear access
- Two double bedrooms, one bathroom; average internal footprint
- High ceilings and period sash windows provide good natural light
- Contemporary kitchen; mains gas boiler and radiators
- Leasehold with 249 years remaining (long lease)
- Solid brick walls assumed uninsulated; refurbishment potential
- Council tax band above average for area
Set on a handsome Edwardian terrace close to Bedford Park, this ground-floor two-bedroom apartment offers direct access to a south-facing private garden and a detached storage shed. High ceilings and period sash windows bring natural light into well-proportioned rooms, while a contemporary kitchen and gas central heating provide practical everyday comfort.
The long, narrow garden is ideal for al fresco dining and safe outdoor play. The flat’s private entrance and rear access increase convenience, and excellent local schools, Chiswick amenities and Turnham Green station are within easy reach — a strong proposition for families seeking space and local community.
Note the property is leasehold (249 years remaining) and the internal footprint is average for a two-bedroom terrace conversion: linear layout with one bathroom. The building’s original solid brick walls are assumed uninsulated, and the plan offers scope for further improvement or sympathetic modernisation to increase value.
2 bedroom flat for sale in Southfield Road, London, W4 — £500,000 • 2 bed • 1 bath • 662 ft²
3 bedroom flat for sale in Esmond Road, London, W4 — £1,150,000 • 3 bed • 1 bath • 1239 ft²
4 bedroom terraced house for sale in Fielding Road, London, W4 — £1,250,000 • 4 bed • 2 bath • 1545 ft²
2 bedroom flat for sale in The Avenue, Chiswick, W4 — £675,000 • 2 bed • 2 bath • 611 ft²
4 bedroom maisonette for sale in Southfield Road, Bedford Park borders, Chiswick, W4 — £930,000 • 4 bed • 2 bath • 1275 ft²
2 bedroom apartment for sale in Kingswood Road, London, W4 — £650,000 • 2 bed • 1 bath • 698 ft²


















































