**Standout Features:**
- Beautifully presented semi-detached family home
- Three spacious bedrooms and two modern bathrooms
- Extended ground floor with a well-appointed kitchen and bi-fold doors leading to the garden
- Located in a quiet cul-de-sac near Downham Primary School
- Off-street parking with block-paved driveway
- Low-maintenance rear garden with patio area
- Just a short drive to Billericay Station and local amenities
**Summary:**
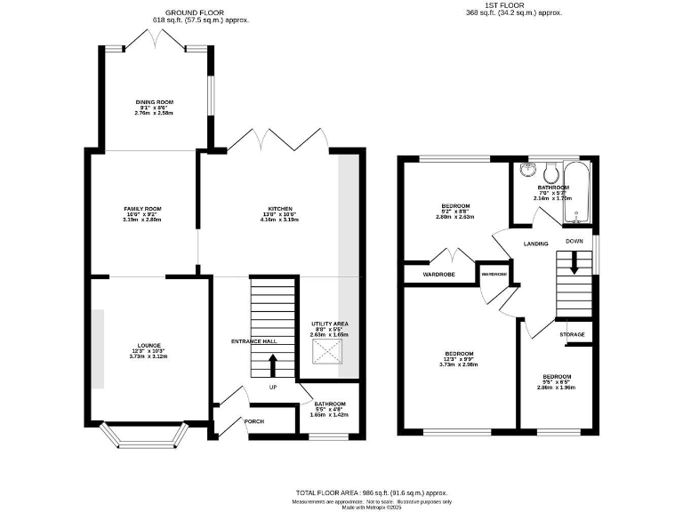
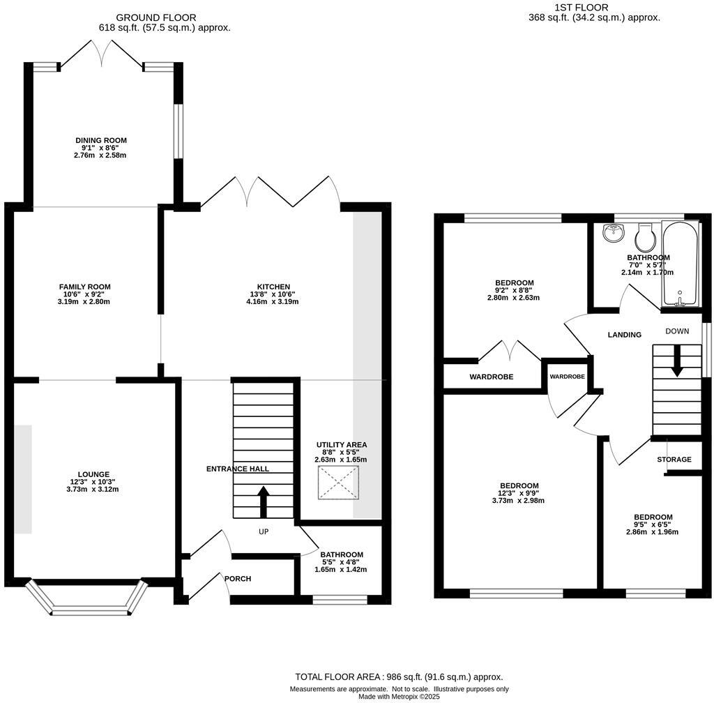
Discover your new family haven in this beautifully presented three-bedroom semi-detached home, nestled in a tranquil cul-de-sac in Ramsden Heath. With 986 square feet of living space, this inviting residence is perfect for families looking for comfort and modern convenience. The extended ground floor creates a seamless flow and features a chic kitchen equipped with sleek granite worktops and bi-folding doors that open onto a well-maintained garden, ideal for entertaining or relaxing family time.
The welcoming lounge boasts bright natural light and built-in shelving, while the open-plan family and dining area fosters warmth and connectivity. Upstairs, you’ll find three well-sized bedrooms, with two featuring fitted wardrobes for added practicality, plus a contemporary bathroom. The property is also conveniently located near Downham Primary School, making it perfect for families with children, while nearby award-winning country pubs and fast transport links add to its appeal. Don’t miss out on this charming gem that offers both a comfortable lifestyle and the potential for future value growth!
5 bedroom semi-detached house for sale in Lindhurst Drive, Ramsden Heath, Billericay, Essex, CM11 — £675,000 • 5 bed • 2 bath • 1731 ft²
4 bedroom semi-detached house for sale in Allens Road, Ramsden Heath, Billericay, CM11 — £550,000 • 4 bed • 2 bath • 1010 ft²
5 bedroom detached house for sale in Downham Road, Ramsden Heath, Billericay, CM11 — £1,000,000 • 5 bed • 4 bath • 3000 ft²
3 bedroom semi-detached house for sale in Short Lane, Ramsden Heath, Billericay, CM11 — £475,000 • 3 bed • 1 bath • 840 ft²
3 bedroom semi-detached house for sale in Norton Place, Ramsden Heath, Billericay, CM11 — £425,000 • 3 bed • 2 bath • 948 ft²
3 bedroom semi-detached house for sale in Tiplers Bridge, Ramsden Heath, CM11 — £500,000 • 3 bed • 1 bath • 1211 ft²


































































