Characterful two-bedroom rural cottage ideal for holiday lets or a peaceful country home.
Stone-built character cottage close to Lake Vyrnwy
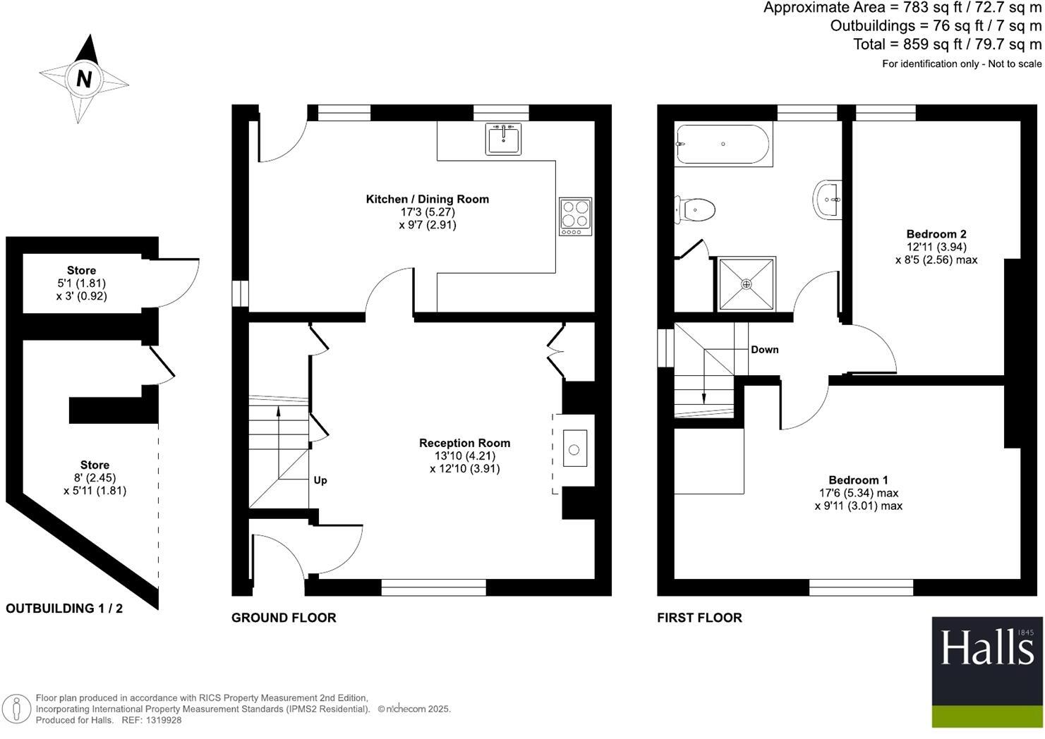
Grade II listed — restrictions and consent required for changes
Two powered stone outbuildings: storage or workshop potential
Ample off-road parking for several vehicles
Elevated private garden with seating area and woodland views
Walls likely uninsulated — thermal upgrades may be needed
Good broadband speeds; average mobile signal in hamlet location
Remote location with limited local services and transport
Set on the edge of Llanwddyn and within easy reach of Lake Vyrnwy, this stone-built two-bedroom cottage offers genuine countryside character and strong holiday-let potential. The house keeps many original features, sits with an elevated private garden and benefits from two powered stone outbuildings — useful for storage or a workshop. A gravelled side area provides ample off-road parking for several vehicles, a rare asset in this quiet hamlet.
Important practical points are straightforward: the property is Grade II listed, which will restrict alterations and may complicate refurbishment plans. The granite or whinstone walls are understood to have no insulation (as built), and the home uses dual fuel heating (mineral and wood) with a boiler and radiators — further upgrading may be needed to meet modern efficiency expectations.
The setting and size suit buyers seeking a rural retreat, holiday home, or an investor targeting short-term lets who can work within listed-building constraints. Services are reported connected (mains water, electricity, drainage), broadband speeds are fast, and crime is low, but the location is remote with limited local amenities nearby, so daily travel should be considered.
Overall this is a characterful, well-situated cottage that rewards sympathetic maintenance and modest modernisation. Buyers should budget for listed-building compliance and potential thermal improvement works, but will gain a peaceful property with strong appeal to walkers, birdwatchers and countryside visitors.
3 bedroom terraced house for sale in Glanrafon, Llanwddyn, SY10., SY10 — £218,000 • 3 bed • 1 bath • 746 ft²
2 bedroom detached house for sale in Llanrhaeadr Ym Mochnant, Oswestry, SY10 — £210,000 • 2 bed • 1 bath • 785 ft²
4 bedroom farm house for sale in Llanwddyn, Oswestry, Powys, SY10 — £800,000 • 4 bed • 2 bath • 1829 ft²
3 bedroom terraced house for sale in Llangynog, Oswestry, Powys, SY10 — £295,000 • 3 bed • 1 bath • 1001 ft²
3 bedroom semi-detached house for sale in Llanfyllin, SY22 — £264,000 • 3 bed • 1 bath • 958 ft²
4 bedroom detached house for sale in Penybontfawr, SY10 — £400,000 • 4 bed • 2 bath • 1276 ft²






























































































