Spacious four-bed family home with double garage and easy commuter links..
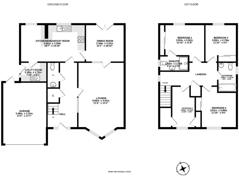
Four-bedroom detached family home with ensuite to principal bedroom
Integral double garage with power, water tap and driveway parking
Southeast-facing lounge and dining room opening to rear garden
Spacious breakfasting kitchen plus utility and ground-floor WC
EPC rating C; council tax band reported as F
Excellent mobile signal and fast broadband for home working
Tenure not specified — buyer to verify ownership details
Wider area flagged as highly deprived — check local services and insurance
A spacious four-bedroom detached house in Deer Park, Livingston, arranged over two floors and suited to family living. The ground floor offers a bright southeast-facing lounge with adjoining dining room, a large breakfasting kitchen, utility and ground-floor WC, while upstairs provides four bedrooms including a principal with en-suite. The home is presented in good condition with modern fittings and practical room proportions for everyday family life.
Practical benefits include an integral double garage with power and water, a paved driveway, and enclosed front and rear gardens with east/west aspects. Transport links are strong for commuters — Livingston North station and the M8 are within easy reach — and local leisure is excellent, with Deer Park Golf & Country Club close by. Broadband and mobile signals are reported fast and excellent respectively, supporting home working and streaming.
Important factual points: the property has an EPC rating of C and council tax band reported as F. The wider area classification records a high level of deprivation, which may affect local services and perceptions; tenure is not specified and should be confirmed. The asking price is £340,000 (Home Report guidance previously noted at £350,000).
4 bedroom detached house for sale in Thomson Green, Livingston, West Lothian, EH54 — £330,000 • 4 bed • 3 bath
5 bedroom detached house for sale in Vardon Green, Livingston, EH54 — £450,000 • 5 bed • 3 bath • 2216 ft²
4 bedroom detached house for sale in Heatherfield Glade, Adambrae, Livingston, EH54 9JE, EH54 — £360,000 • 4 bed • 3 bath • 1292 ft²
4 bedroom detached house for sale in Howatston Court, Livingston, EH54 — £300,000 • 4 bed • 3 bath • 1234 ft²
5 bedroom detached house for sale in Gallacher Green, Livingston, West Lothian, EH54 — £570,000 • 5 bed • 3 bath
4 bedroom detached house for sale in Bankton Avenue, Livingston, West Lothian, EH54 — £340,000 • 4 bed • 3 bath • 992 ft²


















































































































