**Standout Features:**
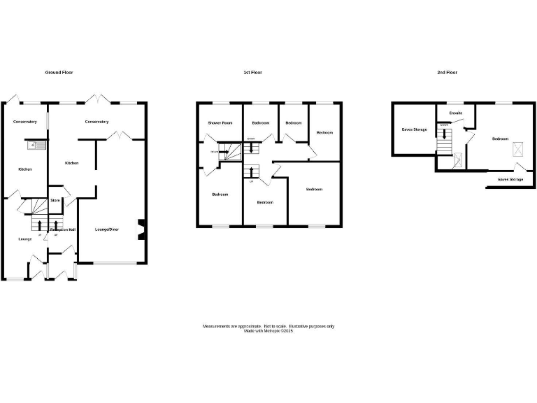
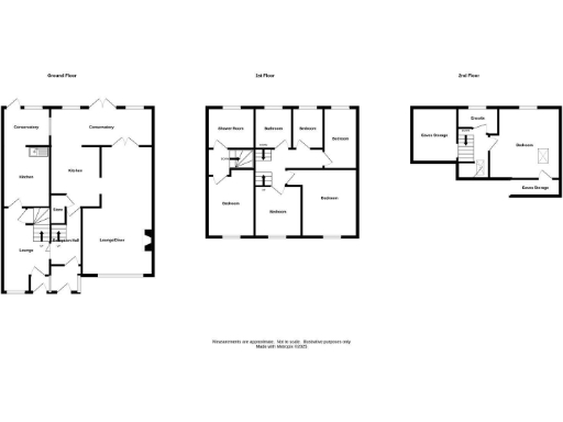
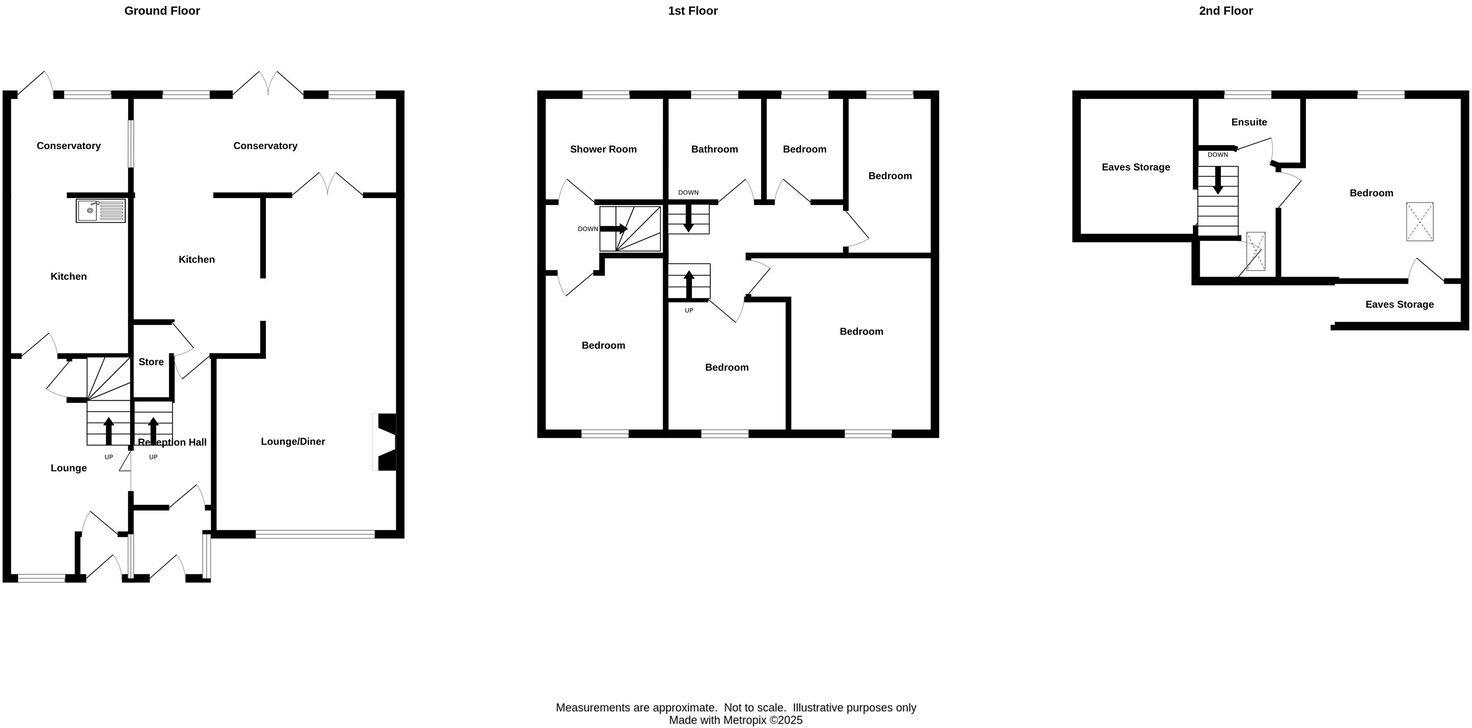
- Spacious five-bedroom semi-detached home with adjoining self-contained annex.
- Total of six bedrooms and three bathrooms/shower rooms.
- Modern conservatories featuring a log burner for cozy living.
- Off-street block-paved parking with easy access.
- Located in an established, family-friendly cul-de-sac near Lutley School.
- Low crime rate and affluent neighborhood, ideal for families.
**Potential Downsides:**
- Age-related decor might need updating in main living areas.
- EPC rating of D indicating potential for energy-efficient upgrades.
Discover the ideal family home nestled in a serene cul-de-sac, just a stone's throw away from Lutley School. This generously sized five-bedroom semi-detached residence effortlessly accommodates multigenerational living with the attached one-bedroom annex, complete with its own entrance. Enjoy spacious social areas, including a large living room with a dining area and a delightful conservatory boasting a cozy log burner, perfect for those chilly evenings.
Families will appreciate the comfortable layout that features three bathrooms, practical off-street parking, and lovely views of the Clent hills from upper bedrooms. While the property presents a charming mid-20th century style that may call for some modern touches, its exceptional potential for customization is boundless. Don’t miss out on this rare opportunity to own a spacious and versatile home in a desirable neighborhood—properties like this aren't available for long!
3 bedroom semi-detached house for sale in HALESOWEN, Heathfield Road, B63 — £390,000 • 3 bed • 2 bath • 1120 ft²
6 bedroom detached house for sale in Halesowen Road, Halesowen, B62 — £599,950 • 6 bed • 2 bath • 2114 ft²
3 bedroom semi-detached house for sale in Whittingham Road, Halesowen, West Midlands, B63 — £339,950 • 3 bed • 2 bath • 1628 ft²
6 bedroom semi-detached house for sale in Rosemary Crescent, Dudley, DY1 — £400,000 • 6 bed • 2 bath • 1632 ft²
6 bedroom detached house for sale in HALESOWEN, Halesowen Road, B62 — £599,950 • 6 bed • 2 bath • 1798 ft²
4 bedroom detached house for sale in HALESOWEN, Uphill 14B Waxland Road, B63 — £595,000 • 4 bed • 3 bath • 1594 ft²














































































