Compact, low-maintenance home with parking near good schools and local amenities.
Newly renovated interior throughout
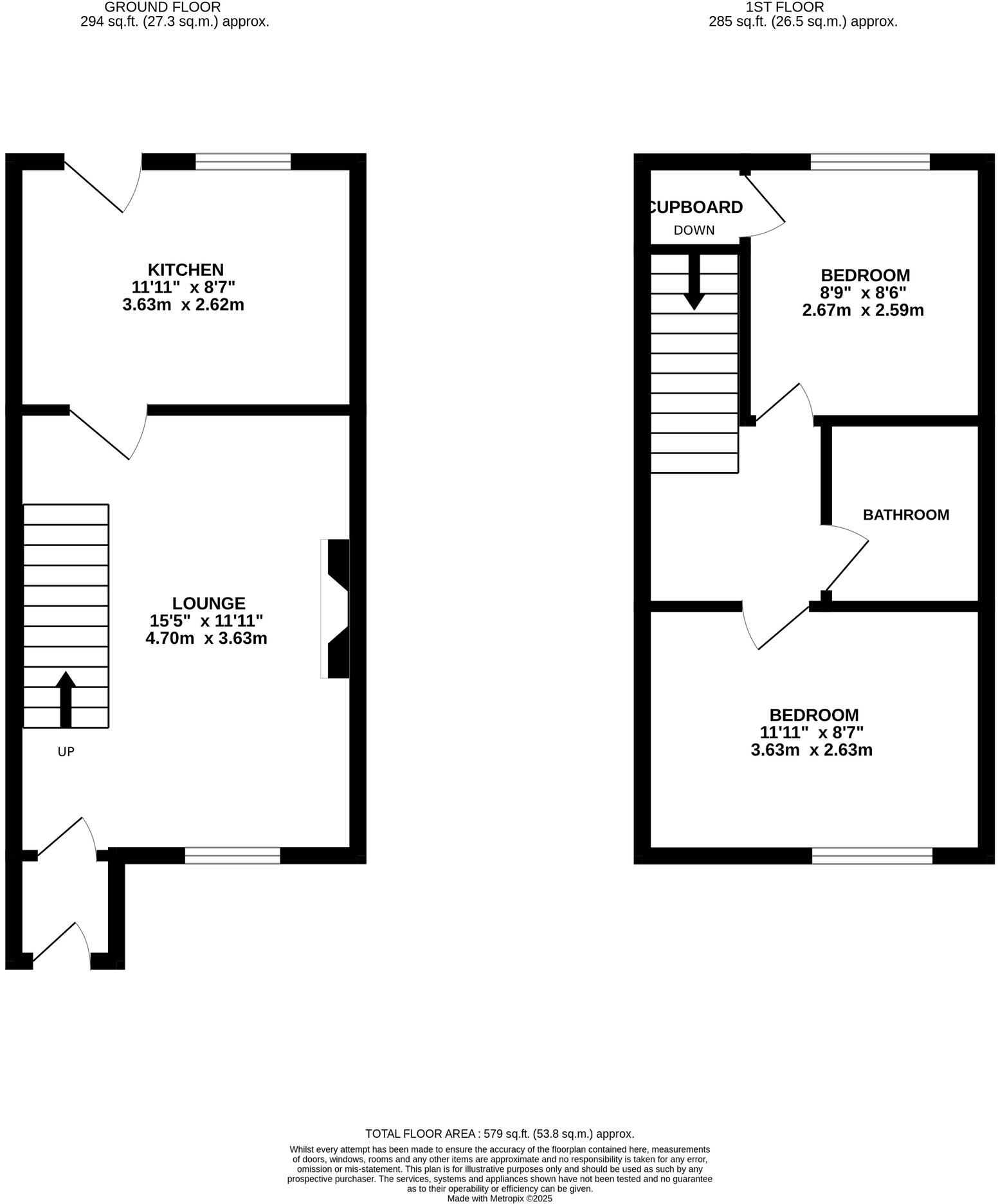
Recently updated throughout, this two-bedroom mid-terrace offers ready-to-move-in accommodation ideal for first-time buyers. The lounge/dining room is bright and spacious for the house size, and the contemporary U-shaped kitchen opens directly to an enclosed, low-maintenance rear garden. Allocated off-street parking and cheap council tax add practical savings.
Upstairs provides two double bedrooms and a fully tiled family bathroom. The property benefits from modern double glazing, mains gas central heating and fast broadband — conveniences suited to everyday family life and home working. Nearby good schools, local shops and leisure facilities make the location particularly convenient.
Buyers should note the home is compact at around 579 sq ft and sits on a small plot, so storage and living space are more limited than larger family homes. The pebble-dash exterior and porch show signs of age and will need external maintenance in time. Overall, the house is a low-hassle, renovated starter home with scope to personalise further.
2 bedroom end of terrace house for sale in Luxton Road, Ogwell, TQ12 6YQ, TQ12 — £235,000 • 2 bed • 1 bath • 614 ft²
2 bedroom end of terrace house for sale in Luxton Road, Ogwell, Newton Abbot, TQ12 — £230,000 • 2 bed • 1 bath • 614 ft²
2 bedroom end of terrace house for sale in Webber Close, Ogwell, TQ12 6YL, TQ12 — £230,000 • 2 bed • 1 bath • 592 ft²
2 bedroom terraced house for sale in Scratton Path, Ogwell, TQ12 6YG, TQ12 — £192,500 • 2 bed • 1 bath • 477 ft²
3 bedroom detached house for sale in Reynell Road, Ogwell, TQ12 — £425,000 • 3 bed • 1 bath • 1115 ft²
2 bedroom semi-detached house for sale in Rowan Close, Ogwell, Newton Abbot, TQ12 6YN, TQ12 — £230,000 • 2 bed • 1 bath • 658 ft²










































