Compact, energy-efficient new home ideal for first-time buyers and small families.
- 10-year NHBC warranty included
- 19ft lounge with French doors to private garden
- Open-plan kitchen/dining plus separate laundry room
- Principal bedroom with en-suite shower room
- Off-street parking and solar panels for lower running costs
- Compact internal area (~653 sq ft); small room sizes
- Annual service charge £271.17; reservation fee £500
- Located on a medium-density new development; neighbouring homes close by
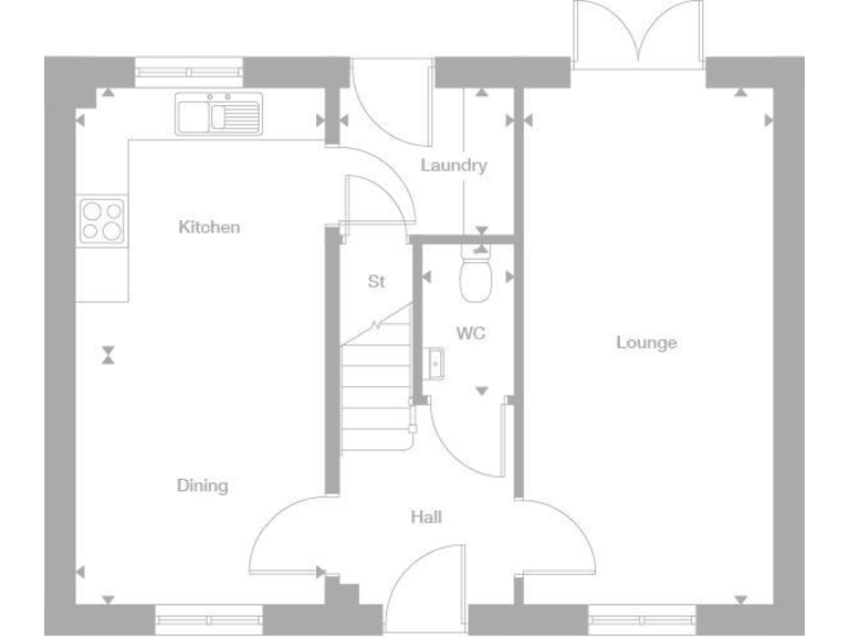
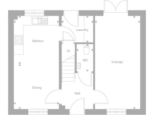
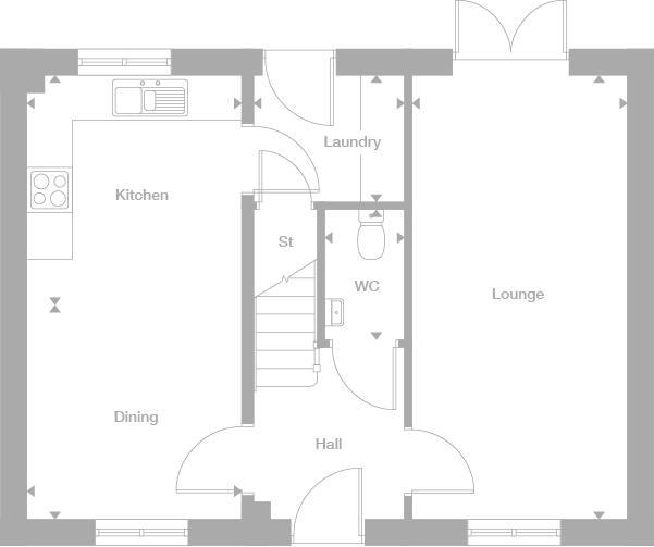
This three-bedroom detached new-build on Church View offers modern, low-maintenance living with practical family layouts. The 19ft lounge with French doors brings daylight and a direct connection to the enclosed garden, while the open-plan kitchen/dining area suits everyday family life and casual entertaining. A separate laundry room and downstairs WC add useful convenience for busy households.
The principal bedroom includes an en-suite and there are two further bedrooms, making the home suitable for first-time buyers or young families. The house benefits from a 10-year NHBC warranty, off-street parking and solar panels, reducing running costs and providing long-term reassurance.
Buyers should note the property’s compact internal area (approximately 653 sq ft) and modest room dimensions; this is a small detached home rather than a large family house. There is an annual service charge of £271.17 and a £500 reservation fee for plots; council tax band is TBC. The plot sits within a medium-density new development with neighbouring homes close by, so the setting is suburban rather than rural-secluded.
Overall this is a newly built, energy-efficient house well suited to first-time buyers or small families wanting contemporary specification and low maintenance. Viewing is recommended to appreciate the layout and garden orientation against the nearby street and neighbouring properties.
3 bedroom detached house for sale in Darlington Street,
Coppull,
Lancashire,
PR7 5AB, PR7 — £299,995 • 3 bed • 1 bath • 624 ft²
3 bedroom detached house for sale in Darlington Street,
Coppull,
Lancashire,
PR7 5AB, PR7 — £309,995 • 3 bed • 1 bath • 624 ft²
3 bedroom semi-detached house for sale in Darlington Street,
Coppull,
Lancashire,
PR7 5AB, PR7 — £264,995 • 3 bed • 1 bath • 565 ft²
3 bedroom semi-detached house for sale in Darlington Street,
Coppull,
Lancashire,
PR7 5AB, PR7 — £259,995 • 3 bed • 1 bath • 558 ft²
3 bedroom detached house for sale in Darlington Street,
Coppull,
Lancashire,
PR7 5AB, PR7 — £334,995 • 3 bed • 1 bath • 687 ft²
3 bedroom mews property for sale in Darlington Street,
Coppull,
Lancashire,
PR7 5AB, PR7 — £254,995 • 3 bed • 1 bath • 558 ft²


































