Let 3-bed semi with immediate income and buy-to-let yield.
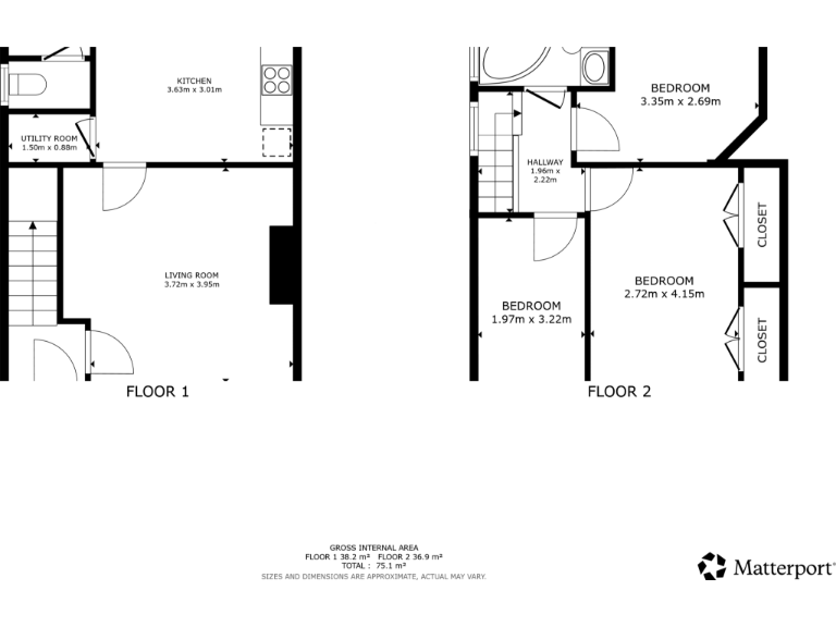
Freehold 3-bedroom semi-detached house, two storeys
A compact 3-bedroom semi-detached house in Grimsby currently let to long-term tenants, offered freehold at £95,000. The property produces a gross annual rental income of £7,200, giving an approximate gross yield of 7.6% at the asking price — attractive to income-focused buyers. It includes private front and rear gardens and off-street driveway parking, plus a small, low-maintenance plot.
The building is mid-20th century brick construction with bay windows and a conventional internal layout across two storeys. Tenants have occupied the property for several years and report consistent payments; they intend to remain, so immediate vacant possession is unlikely. This makes the asset suitable for buy-to-let investors seeking immediate income or developers comfortable managing tenanted purchases.
Material drawbacks that buyers must accept: the property sits in a very deprived area with high local crime statistics, which can affect long-term capital growth and tenant turnover. The overall living space is small (approximately 678 sq ft) and outdoor amenity is limited. Further due diligence is essential—obtain an EPC, full tenancy agreement, rent payment history, gas/electrical certificates, and up-to-date photographs and floorplans before committing.
For investors, the clear strengths are immediate rental income, long-term tenants and low-maintenance external areas. For those seeking to add value, modest refurbishment or reconfiguration could improve earnings, but any refurbishment should consider local market demand and the higher-risk location.
3 bedroom terraced house for sale in 7 Stokesley Walk, Grimsby, Lincolnshire, DN37 — £95,000 • 3 bed • 1 bath • 850 ft²
2 bedroom terraced house for sale in Fairmont Road, Grimsby, DN32 — £90,000 • 2 bed • 1 bath • 861 ft²
3 bedroom end of terrace house for sale in Crowland Avenue, Grimsby, DN34 — £120,000 • 3 bed • 2 bath • 1610 ft²
3 bedroom terraced house for sale in Yarborough Road, Grimsby, DN34 — £70,000 • 3 bed • 1 bath • 969 ft²
3 bedroom terraced house for sale in Peaksfield Avenue, Grimsby, Lincolnshire, DN32 — £75,000 • 3 bed • 1 bath • 859 ft²
2 bedroom end of terrace house for sale in Dunmow Street, Grimsby, DN31 — £72,500 • 2 bed • 1 bath • 990 ft²










































































