Light-filled living and excellent access to York city centre and hospitals.
Three-bedroom extended 1930s semi-detached family home
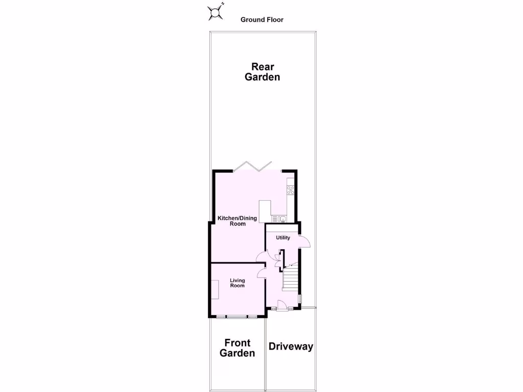
Open-plan kitchen/dining/family space with bifold doors to garden
Separate utility room and shaker-style contemporary kitchen
Attractive living room with plantation shutters and feature fireplace
Large rear garden with patio, lawn and timber storage shed
Off-street driveway parking; freehold tenure and low council tax
Modest plot size for an extended family house
Local area records higher crime and nearby student neighbourhood noise
This extended 1930s semi offers a well-presented, open-plan layout that suits growing families or first-time buyers seeking space close to central York. The ground-floor extension creates a bright kitchen/dining/family area with bifold doors to a large garden and separate utility, ideal for everyday family life and entertaining.
The front sitting room is attractively finished with plantation shutters, fitted storage and a feature fireplace; three bedrooms and a stylish family bathroom sit on the first floor. Practical benefits include off-street parking, gas central heating, freehold tenure and low council tax.
Location is a major strength: a quiet cul-de-sac near Clifton Green, within walking distance of York Hospital, the train station and the city centre. Good local schools and frequent transport links make the house convenient for commuters and families.
Notable drawbacks are factual: the plot is modest in size for an extended family home, there is only one bathroom, and the area records higher local crime levels, which may concern some buyers. The immediate neighbourhood includes student-populated streets, so occasional noise or higher footfall is possible. Overall the property is move-in ready but buyers wanting larger grounds or multiple bathrooms should be aware.
3 bedroom semi-detached house for sale in St. Lukes Grove, York, YO30 — £365,000 • 3 bed • 1 bath • 1092 ft²
3 bedroom semi-detached house for sale in Hudson Crescent, York, YO30 — £375,000 • 3 bed • 1 bath • 1037 ft²
3 bedroom detached house for sale in Lundy Close, York, YO30 — £375,000 • 3 bed • 2 bath • 1020 ft²
3 bedroom semi-detached house for sale in Burnholme Drive, York, North Yorkshire, YO31 — £350,000 • 3 bed • 1 bath • 1424 ft²
4 bedroom detached house for sale in Headley Close, Clifton Moor, York, YO30 5GH, YO30 — £485,000 • 4 bed • 2 bath • 1238 ft²
4 bedroom semi-detached house for sale in Heworth Hall Drive, York, YO31 1AG, YO31 — £550,000 • 4 bed • 3 bath • 1427 ft²






































































































