Comfortable three-bedroom home with log burner and fast broadband.
Victorian terrace with original high ceilings and period features
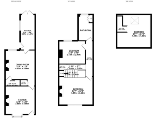
This three-bedroom Victorian terrace on Loughborough Road combines period character with practical modern comforts. High ceilings and original features create an airy feel across the 922 sq ft layout, while a fitted log burner is the cosy focal point of the lounge. All windows have blinds fitted and the house is freehold with fast broadband and excellent mobile signal.
The ground-floor plan leads to a bright kitchen and living area, with a small, low-maintenance rear garden for outdoor space. The single bathroom serves all three bedrooms, which suits a young family or downsizer but may limit mornings for larger households. The property sits in a very affluent, quiet village fringe with good local schools and basic amenities nearby.
Potential buyers should note the small plot size and average overall property size — the terraced layout offers limited outdoor space and storage compared with larger detached homes. The house is presented well but retains period elements that may require ongoing maintenance; there is scope to update fittings or reconfigure layouts where desired.
Practical positives include no flood risk, freehold tenure, and good transport links (local bus stop). The neighbourhood profile skews towards older suburban residents, which brings a peaceful atmosphere but may affect longer-term resale dynamics for buyers seeking a younger demographic.
3 bedroom terraced house for sale in Gladstone Street, Hathern, Loughborough, Leicestershire, LE12 — £260,000 • 3 bed • 1 bath • 833 ft²
3 bedroom terraced house for sale in Loughborough Road, Hathern, Loughborough, LE12 — £230,000 • 3 bed • 1 bath • 778 ft²
2 bedroom terraced house for sale in Lower Cambridge Street, Loughborough, LE11 — £175,000 • 2 bed • 1 bath • 818 ft²
3 bedroom terraced house for sale in Herbert Street, Loughborough, LE11 — £225,000 • 3 bed • 1 bath • 915 ft²
2 bedroom terraced house for sale in Mansfield Street, Quorn, LE12 — £265,000 • 2 bed • 1 bath • 805 ft²
3 bedroom terraced house for sale in Toothill Road, Loughborough, LE11 1PN, LE11 — £249,950 • 3 bed • 1 bath • 993 ft²






















































































































