Rare freehold plot with outline consent for two homes in a secluded Cornish setting.
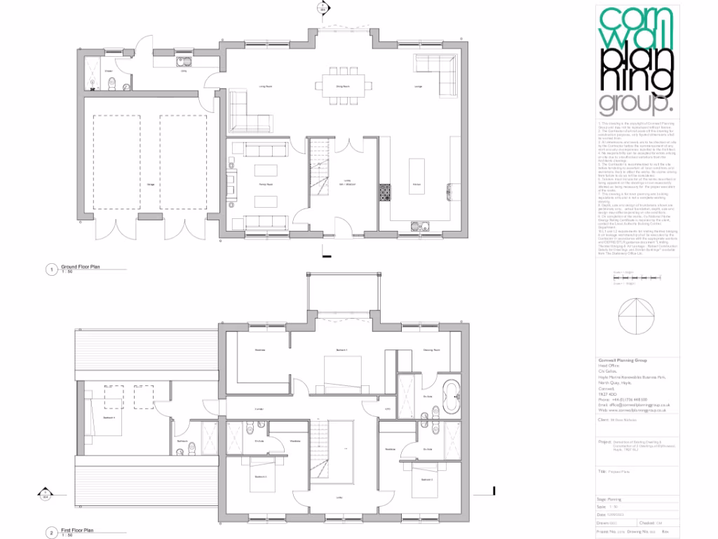
Outline permission for two dwellings and one detached garage (ref PA23/02345)
Large, secluded plot with mature trees and garden space
Freehold; no flood risk and fast broadband
CIL liability will apply; amount determined at reserved matters
Reserved matters required for scale, appearance, landscaping
Tree protection plan and biodiversity measures are mandatory
Sewage disposal system must be approved before occupation
Garage to be retained for parking for Plot 1 at all times
An attractive freehold building plot in a tucked-away Lelant Downs location, sold with outline planning permission (Cornwall Council ref PA23/02345) for two dwellings and a detached garage. The site is spacious with mature trees and garden space, offering a quiet, semi-rural setting with good broadband and very low crime — appealing to buyers seeking a development opportunity close to local schools and amenities.
The permission is outline only: scale, appearance and landscaping are reserved matters. Several planning conditions must be met before construction, including a tree protection plan, biodiversity provisions (bat, bird and bee facilities), and an approved sewage disposal system. A Community Infrastructure Levy (CIL) payment will be applicable and the garage must be retained for parking for Plot 1.
This plot suits small-scale developers or investors comfortable working through reserved matters and planning conditions. There may be scope for additional dwellings subject to further planning consent, but that is not guaranteed. Prospective purchasers should factor in the time and cost of complying with the conditions, CIL liability and any required arboricultural or ecological surveys.
A clear practical advantage is the lack of flood risk and the site’s generous size, which supports flexible layouts once reserved matters are approved. Buyers should arrange a site visit and check the full planning documentation and fees with the local planning authority before proceeding.
2 bedroom semi-detached bungalow for sale in Boquio Farm, Farms Common, TR13 — £395,000 • 2 bed • 2 bath • 834 ft²
Land for sale in Exciting opportunity, Near Trannack, TR13 — £250,000 • 1 bed • 1 bath
Plot for sale in South Drive, Tehidy - Rare opportunity to acquire an individual building plot, TR14 — £260,000 • 1 bed • 1 bath • 362 ft²
Plot for sale in Plot in desirable location, Carbis Bay, TR26 — £350,000 • 1 bed • 1 bath • 1873 ft²
4 bedroom cottage for sale in Sparnon Lane, Carleen, TR13 — £695,000 • 4 bed • 2 bath • 2078 ft²
Plot for sale in Carn View, Crowntown, TR13 — £95,000 • 1 bed • 1 bath • 1096 ft²






































































