Spacious two-bedroom near parks and transport — ideal for families.
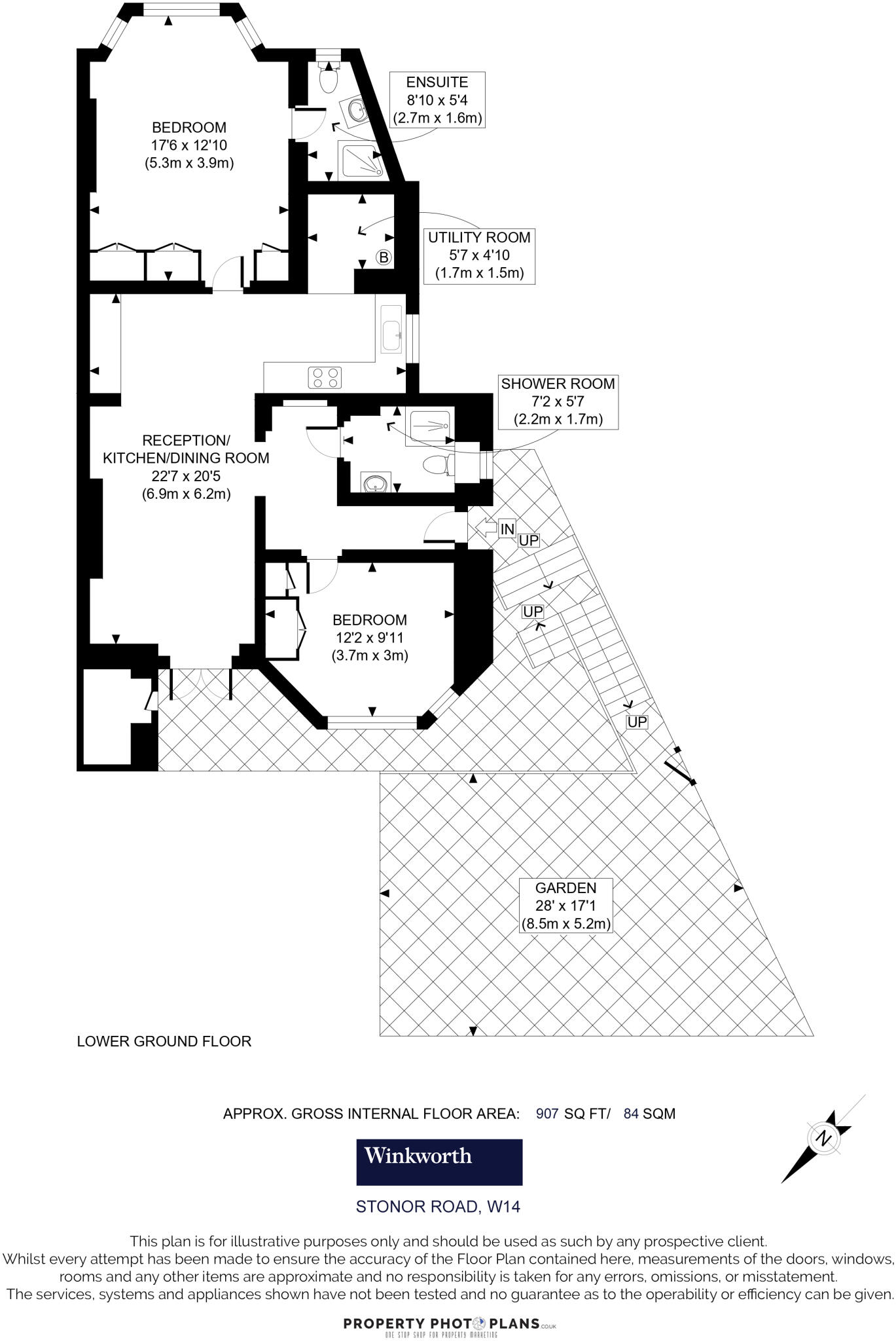
907 sq ft lower-ground apartment with private garden and own entrance
This well-presented lower-ground apartment combines Victorian character with a private garden and its own entrance, creating a calm city-home feel in West London. The spacious reception with a semi-open-plan kitchen suits everyday living and informal entertaining, while two double bedrooms (one en suite) provide comfortable family accommodation or a rental layout that appeals to sharers.
Practical details are strong: a very long underlying lease (approximately 957 years) and share of freehold remove common leasehold concerns. The property is close to strong transport links and high-quality schools, with Westfield, Kensington High Street and Holland Park all within easy reach — an attractive position for families and professionals.
Buyers should note this is a lower-ground/basement flat, so natural light is more limited than on upper floors and rooms sit below street level. Service charge is £1,925 per annum and council tax sits in Band E. The EPC is D and the building’s solid brick walls likely need insulation work if higher energy performance is required.
Overall, this is a substantial 907 sq ft period apartment that balances period charm, a sizeable private garden and a long lease, while requiring straightforward consideration of light levels and potential energy-efficiency improvements.
2 bedroom flat for sale in Sinclair Road, London W14 — £750,000 • 2 bed • 2 bath • 822 ft²
2 bedroom flat for sale in Holland Road, West Kensington, W14 — £825,000 • 2 bed • 2 bath • 925 ft²
2 bedroom apartment for sale in Gunterstone Road, London, W14 — £925,000 • 2 bed • 2 bath • 973 ft²
2 bedroom apartment for sale in Russell Road, London, W14 8, W14 — £950,000 • 2 bed • 1 bath • 920 ft²
2 bedroom flat for sale in Gwendwr Road, London, W14 — £600,000 • 2 bed • 1 bath • 721 ft²
2 bedroom flat for sale in Mornington Avenue, West Kensington, W14 — £950,000 • 2 bed • 2 bath • 1100 ft²






















































