Two-bed Edwardian terrace requiring full renovation, close to Reddish Vale.
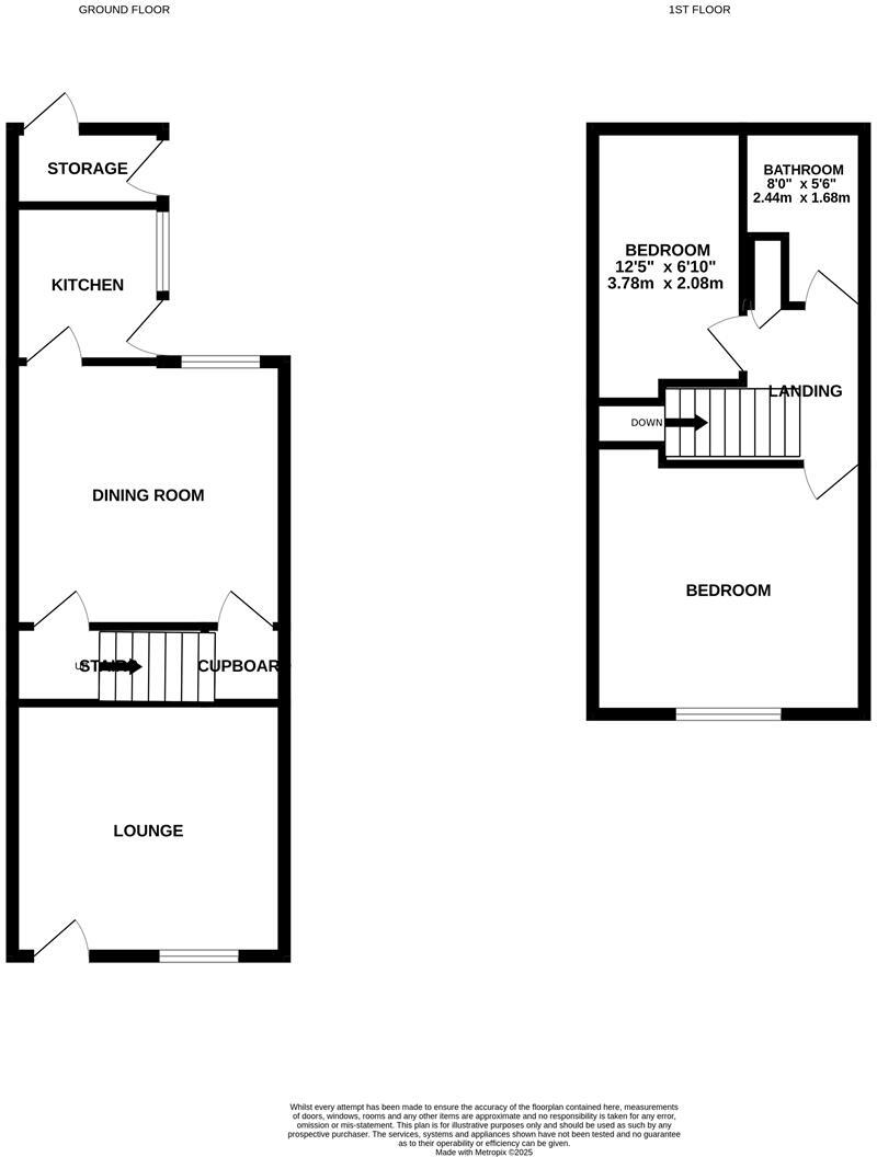
Two double bedrooms and two reception rooms
This red-brick mid-terrace offers a straightforward renovation project in a convenient Stockport location beside Reddish Vale Country Park. The house has two double bedrooms, two reception rooms and a compact enclosed rear yard — a useful canvas for a modern refit or rental conversion.
The property requires full updating: dated décor, signs of damp/mould in the living room, and likely no wall insulation. Heating is mains gas with a boiler and radiators; windows are double glazed but installation date is unknown. On-street parking and good transport links make it suitable for commuters.
Set in an area with high deprivation, this freehold terrace presents potential for value-add purchasers or landlords comfortable with a hands-on refurbishment. Note there is a public notice/repossessed-sale element and prospective buyers should be aware of required AML checks and associated fees.
Buyers should budget for significant works (cosmetic and likely some structural/ damp remediation), but the house’s period character, two reception rooms and proximity to green space create clear potential once modernised.
2 bedroom end of terrace house for sale in Ladysmith Street, Stockport, Cheshire, SK3 — £175,000 • 2 bed • 1 bath • 861 ft²
2 bedroom terraced house for sale in Manvers Street, Stockport, Greater Manchester, SK5 — £175,000 • 2 bed • 1 bath • 706 ft²
2 bedroom terraced house for sale in Jersey Road, Reddish, SK5 — £225,000 • 2 bed • 1 bath • 675 ft²
2 bedroom semi-detached house for sale in Westwood Road, Stockport, SK2 — £185,000 • 2 bed • 1 bath
2 bedroom terraced house for sale in Luton Road, Reddish SK5 6AG, SK5 — £160,000 • 2 bed • 1 bath • 787 ft²
2 bedroom terraced house for sale in Worrall Street, Stockport, SK3 — £240,000 • 2 bed • 1 bath • 889 ft²










































