Four-bedroom detached home with large garden, garage and modernization potential..
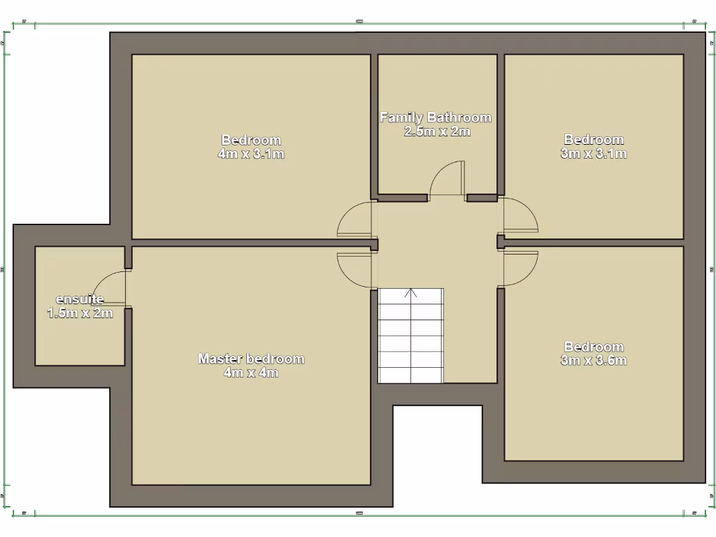
- Four bedrooms, principal with en-suite and built-in storage
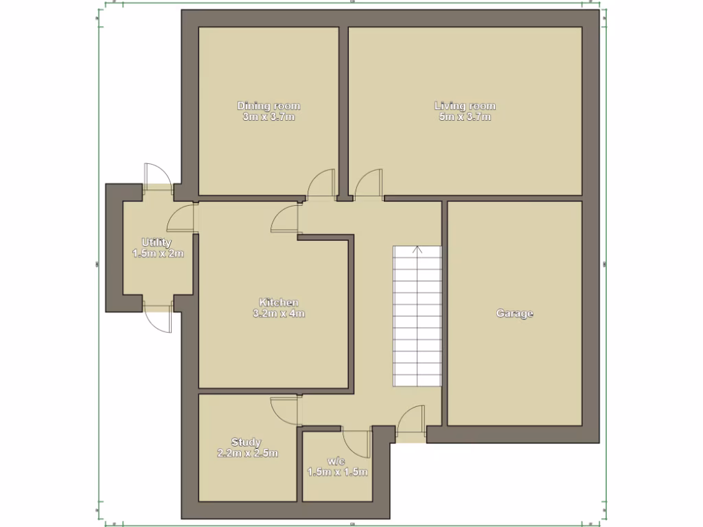
- Multiple reception rooms plus separate office and utility room
- Large private rear garden with patio, lawn and mature planting
- Garage and ample off-road parking for several vehicles
- About 1,345 sq ft; approximately 12 rooms in total
- 1980s build with scope for modernization and cosmetic updating
- Freehold, no flood risk, excellent mobile signal and fast broadband
- Local area classified as very deprived; average crime levels
Spacious four-bedroom detached home on a generous plot in the sought village of Llwydcoed, offering comfortable family living and flexible space. The house totals about 1,345 sq ft across two storeys, with multiple reception rooms, a fitted kitchen plus utility room, and a large principal bedroom with en-suite and built-in storage.
The sun-filled rear garden is private and features lawn, patio and mature planting—ideal for family play and summer entertaining. A large garage and substantial off-road parking add everyday convenience, while excellent mobile signal and fast broadband make the home suitable for remote working.
The property is well presented in many rooms but dates from the 1980s and offers scope for modest modernization to update finishes and systems to personal taste. The local area is classified as very deprived, which may affect resale dynamics; crime levels are average and there is no flooding risk. Freehold tenure and a calm, comfortable neighbourhood setting complete the practical picture.
This home will suit a growing family seeking space, outdoor living and good connectivity, or buyers looking to add value through sympathetic updating in a quiet, accessible part of Aberdare.
4 bedroom detached house for sale in Cae Alaw Goch, Aberdare, CF44 — £319,995 • 4 bed • 3 bath • 1249 ft²
4 bedroom detached house for sale in Tan Y Bryn Gardens, Llwydcoed, Aberdare, CF44 — £469,995 • 4 bed • 3 bath • 1084 ft²
4 bedroom detached house for sale in St Davids, Luther Lane, Merthyr Tydfil, CF47 — £410,000 • 4 bed • 3 bath • 1582 ft²
4 bedroom detached house for sale in Llys Cynon, Hirwaun, Aberdare, CF44 — £265,000 • 4 bed • 3 bath • 1249 ft²
4 bedroom detached house for sale in Rock Terrace, Ynysybwl, Pontypridd, CF37 — £450,000 • 4 bed • 1 bath • 1324 ft²
3 bedroom detached house for sale in Llwydcoed Road, Aberdare, CF44 — £349,995 • 3 bed • 1 bath • 1363 ft²






































































































































