Compact, modern retirement living with communal facilities and EV charging close to local shops.
Purpose-built retirement flat, exclusive to over-60s
Compact one-bedroom layout — approximately 430 sq ft
Built 2021 — modern finishes and double glazing
Communal owners’ lounge, guest suite and landscaped gardens
Solar panels and onsite EV charging reduce energy costs
Off-street parking; lift to all floors and secure entry
Leasehold with service charges and management arrangements
Electric room heaters — may increase heating costs compared to gas
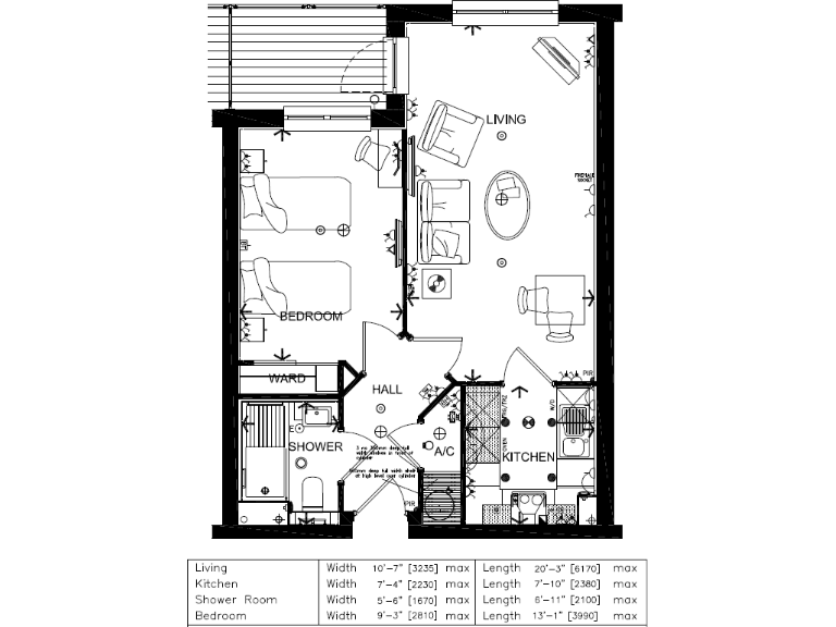
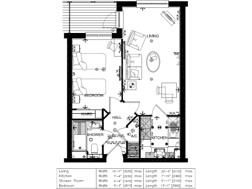
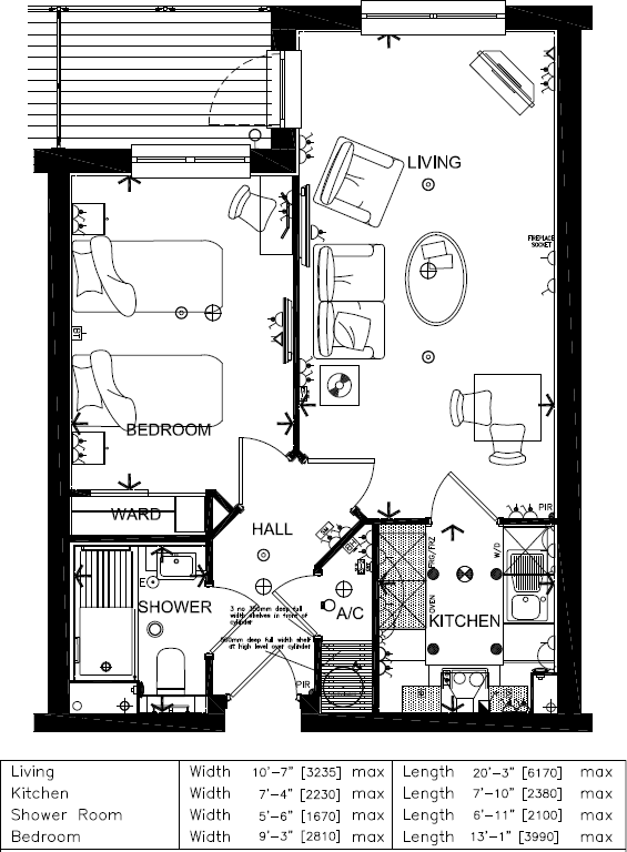
Light, low-maintenance and purpose-built for the over-60s, this one-bedroom apartment at Bower Lodge offers a ready-made retirement setting in Shirley. Completed in 2021, the flat is compact (about 430 sq ft) with an open-plan living area, fitted kitchen and modern bathroom — ideal for someone looking to downsize without compromising on finish or facilities.
The development provides practical communal benefits: an owners’ lounge with coffee bar, landscaped gardens, guest suite, lift access, secure entry and an on-site lodge manager. Solar panels and EV charging point to lower running costs and support low-carbon living. Parking is available off-street and broadband and mobile signals are strong in this central location with a bus stop outside and local shops nearby.
Important practical points: the property is leasehold and part of a retirement scheme, so purchasers should expect service charges, ground rent and building-management arrangements. Heating is electric with room heaters as the primary system; while solar panels reduce consumption, electric heating can be more costly than gas alternatives. The apartment’s small overall size suits one-person occupancy or a couple prioritising convenience over large living space.
This is a turn-key retirement choice for someone wanting independent living with onsite support and communal amenities. Viewings are recommended to assess layout, storage and the lease terms before committing.
2 bedroom flat for sale in Stratford Road, Shirley, Solihull, West Midlands, B90 — £299,950 • 2 bed • 2 bath • 608 ft²
2 bedroom retirement property for sale in 2 Bed Apartment, Bower Lodge, Shirley, B90 — £209,965 • 2 bed • 2 bath
2 bedroom retirement property for sale in Union Road, Shirley, Solihull, B90 — £199,950 • 2 bed • 1 bath • 511 ft²
1 bedroom flat for sale in Pegasus Court, Union Road, Shirley, B90 — £100,000 • 1 bed • 1 bath • 526 ft²
1 bedroom apartment for sale in Cornyx Lane, Solihull, B91 — £110,000 • 1 bed • 1 bath • 496 ft²
2 bedroom retirement property for sale in Victoria Crescent, Solihull, B90 — £345,000 • 2 bed • 1 bath • 731 ft²










































