Two flats with refurbishment upside close to university and station — cash buyers only.
Freehold Victorian mid-terrace with small rear garden
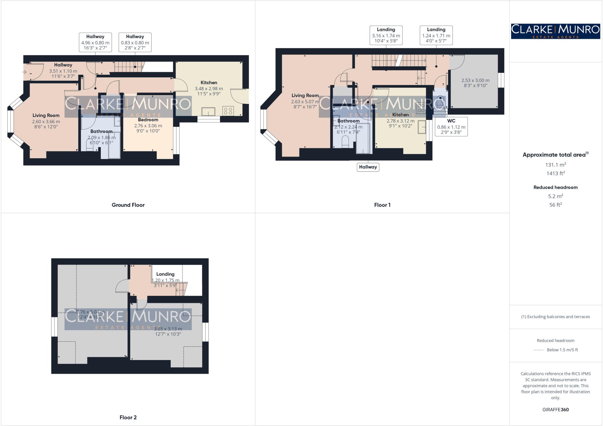
A compact Victorian mid-terrace arranged as two self-contained flats, this freehold property offers clear refurbishment and rental upside for cash investors. Located close to Middlesbrough train station, Teesside University and local bus routes, it sits in a convenient urban location with easy access to services and employers.
The building requires full modernisation throughout — the kitchen and bathrooms are dated and the property is presented as a blank canvas. At around 474 sq ft overall and currently split into a one-bedroom and a three-bedroom flat, buyers should expect renovation and reconfiguration work to maximise value.
Significant positives include low council tax (Band A), mains gas central heating, a small garden and strong local rental demand from students and hospital workers. Material drawbacks are the need for renovation, the property's small overall size, a very high local crime rate and a very deprived local area; this opportunity is therefore most suitable for experienced, cash-ready investors prepared to manage refurbishment and letting risk.
Available to cash buyers only, the property suits those seeking a short-term renovation project to achieve capital growth or a buy-to-let conversion once upgraded. Prospective purchasers should budget for refurbishment and factor in the local area considerations before offer.
3 bedroom terraced house for sale in Marton Road, MIDDLESBROUGH, Cleveland, TS4 — £150,000 • 3 bed • 1 bath
3 bedroom terraced house for sale in Chester Street, Middlesbrough, TS1 — £70,000 • 3 bed • 1 bath • 905 ft²
2 bedroom terraced house for sale in Falkland Street, Middlesbrough, TS1 4JH, TS1 — £60,000 • 2 bed • 1 bath
4 bedroom terraced house for sale in Fife Street, Middlesbrough, North Yorkshire, TS1 — £115,000 • 4 bed • 1 bath • 948 ft²
2 bedroom terraced house for sale in St. Johns Close, Middlesbrough, North Yorkshire, TS4 — £70,000 • 2 bed • 1 bath • 689 ft²
2 bedroom terraced house for sale in Essex Street, Middlesbrough, TS1 — £60,000 • 2 bed • 1 bath • 725 ft²


























































