Spacious riverside apartment with parking, concierge and excellent transport links.
Direct River Thames views and curved corner balcony
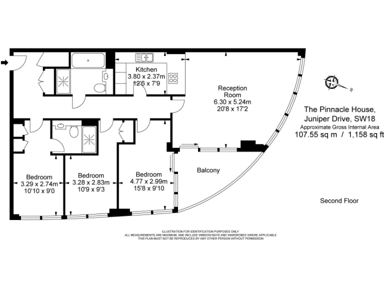
Situated on the 2nd floor of Pinnacle House, this spacious three-bedroom apartment offers uninterrupted River Thames views and 1,158ft² of well-proportioned living space. The dual-aspect reception flows onto a curved corner balcony, while floor-to-ceiling windows, high ceilings and wood floors create a bright, contemporary feel ideal for family living or professional couples.
The kitchen is equipped with Siemens and Miele appliances, a wine cooler and integrated coffee machine; additional practical features include a separate utility cupboard, integrated wardrobes, underfloor heating and comfort cooling. Two allocated underground parking spaces and on-site amenities — Tesco Express, gym, 24-hour concierge and riverside cafes — add everyday convenience.
Notable positives include a very long lease (978 years), excellent local transport links (rail, bus and river bus) and very low flood and crime risk. Council tax is described as quite expensive and the leasehold tenure carries a ground rent of £1,200 per year, which buyers should factor into running costs. The apartment is presented in contemporary condition but has typical communal heating via a community scheme rather than individual boilers.
This home suits families seeking riverside living with strong local schools and inner-city convenience, or professionals wanting a high-spec, low-risk ownership in a well-managed development. Viewings will be most useful for buyers who prioritise location, space and on-site facilities, and who accept the leasehold running costs noted above.
3 bedroom apartment for sale in Spinnaker House, Battersea Reach, SW18 — £1,000,000 • 3 bed • 2 bath • 1123 ft²
2 bedroom apartment for sale in Flotilla House, Battersea Reach, SW18 — £625,000 • 2 bed • 2 bath • 938 ft²
3 bedroom apartment for sale in Juniper Drive, SW18 1JE, SW18 — £1,400,000 • 3 bed • 2 bath • 1102 ft²
3 bedroom apartment for sale in Ascensis Tower, Battersea Reach, SW18 — £1,100,000 • 3 bed • 2 bath • 1219 ft²
3 bedroom apartment for sale in Juniper Drive, London, SW18 — £1,425,000 • 3 bed • 2 bath • 1205 ft²
3 bedroom apartment for sale in Spinnaker House, Battersea Reach, SW18 — £1,150,000 • 3 bed • 3 bath • 1588 ft²


































































