**Standout Features:**
- Four spacious bedrooms
- Newly built with modern finishes
- Gated development with two parking spaces and EV charging.
- Energy-efficient with underfloor heating and air source heat pump.
- Ten-year new home warranty.
- Private garden and scenic countryside views.
**Notable Concerns:**
- Crime rate slightly above average.
- Internet speeds are notably slow.
- Limited mobile signal strength.
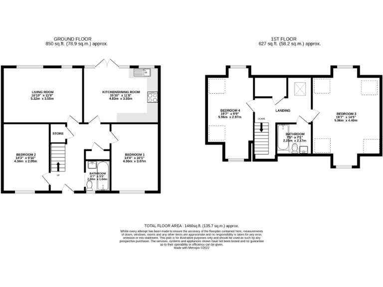
Discover your dream home at Paddock Close, a newly constructed four-bedroom terraced property nestled in a serene gated development, perfect for families or professionals seeking the comfort of countryside living while maintaining proximity to city amenities. Spanning 1,460 sq ft, this stylish residence features a modern kitchen/dining area with integrated appliances, a separate living room, and two double bedrooms on the ground floor, alongside a family bathroom for convenience. The first floor boasts another two spacious double bedrooms and an additional bathroom.
Experience unmatched energy efficiency with underfloor heating and an air source heat pump, ensuring lower utility bills. The property also offers a private garden for tranquil outdoor living and is securely situated within a well-regarded community close to local shops, schools, and transport links, including easy access to junction 10 of the M1 and Luton Airport. While crime rates are slightly above average and broadband speeds can be slow, this affluent area promises a high quality of life and excellent schooling options, making it an attractive choice for families and investors alike. With limited availability in this exclusive development, don't miss your chance to own this inviting home—schedule a viewing today!
3 bedroom detached house for sale in Windmill Road, Pepperstock, Hertfordshire LU1 — £1,150,000 • 3 bed • 3 bath • 2221 ft²
5 bedroom semi-detached house for sale in Mangrove Lodge, Putteridge Park, Hertfordshire, LU2 — £795,000 • 5 bed • 4 bath • 2495 ft²
4 bedroom detached house for sale in Oak Tree House, Kennel Lane, Kinsbourne Green, Harpenden, Hertfordshire, AL5 — £1,975,000 • 4 bed • 3 bath • 2095 ft²
4 bedroom detached house for sale in Poplars House, Kennel Lane, Kinsbourne Green, Harpenden, Hertfordshire, AL5 — £1,875,000 • 4 bed • 3 bath • 2121 ft²
5 bedroom detached house for sale in Clipstone Park,
Leighton Buzzard,
LU7 9NX, LU7 — £785,000 • 5 bed • 1 bath • 1356 ft²
4 bedroom detached house for sale in Castlefield Park, Toddington Road, Harlington,
LU5 6LA, LU5 — £550,000 • 4 bed • 1 bath • 856 ft²














































