Turnkey, modern family home with garage and low‑maintenance garden near Leicester.
- Three double bedrooms including large top-floor master with en-suite
- Modern kitchen-diner with integrated appliances and patio doors
- Landscaped, low-maintenance rear garden (small to average size)
- Single garage plus driveway/off-street parking for additional car
- Partial solar PV installation helping energy efficiency; EPC B
- Freehold tenure; Council Tax Band D (moderate)
- Located in a sought-after modern development with good transport links
- Nearby schools offer mixed Ofsted outcomes; check individual schools
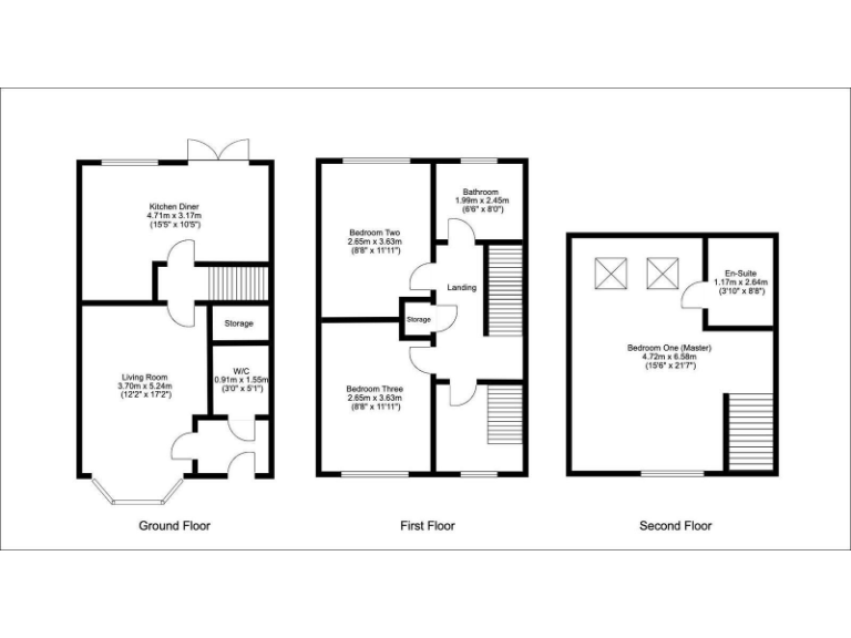
Light, modern and move‑in ready, this three-storey semi offers practical family living across generous room sizes. The ground floor features a bay-fronted living room and a contemporary kitchen-diner with integrated appliances and patio doors onto a low‑maintenance landscaped garden — an easy outdoor space for children and weekend entertaining.
The first floor provides two good double bedrooms and a family bathroom, while the top-floor master suite benefits from fitted wardrobes, two Velux windows and a private en-suite. The property includes a single garage and driveway parking, plus partial solar PV on the roof that supports lower energy running costs. EPC B and freehold tenure are helpful ownership features.
Plot and garden are modest rather than expansive, which suits buyers seeking low‑maintenance outdoor space but may disappoint those wanting larger grounds. The area is a comfortable, affluent suburb with good transport links to Leicester and a range of nearby primary and secondary schools (mixed Ofsted ratings). Council Tax Band D applies.
Presented to a high standard throughout, this home will suit families wanting contemporary, turnkey accommodation close to local amenities and commuter routes. Buyers planning large-scale expansion should note the site and footprint are typical of modern estate plots.
3 bedroom semi-detached house for sale in Avondale Road, Wigston, LE18 — £320,000 • 3 bed • 1 bath • 848 ft²
3 bedroom semi-detached house for sale in Falmouth Drive, Wigston, Leicestershire, LE18 — £265,000 • 3 bed • 1 bath • 913 ft²
3 bedroom semi-detached house for sale in Bakewell Road, Wigston, Leicester, LE18 — £330,000 • 3 bed • 1 bath • 1249 ft²
3 bedroom semi-detached house for sale in Foston Gate, Wigston, LE18 — £285,000 • 3 bed • 1 bath • 912 ft²
3 bedroom semi-detached house for sale in Rawson Drive, Leicester, LE18 — £290,000 • 3 bed • 2 bath • 808 ft²
3 bedroom semi-detached house for sale in Bakewell Road, Wigston, LE18 — £300,000 • 3 bed • 1 bath • 766 ft²










































































































