Generous modern home with upgraded kitchen and substantial parking.
Five double bedrooms across three floors, flexible family layout
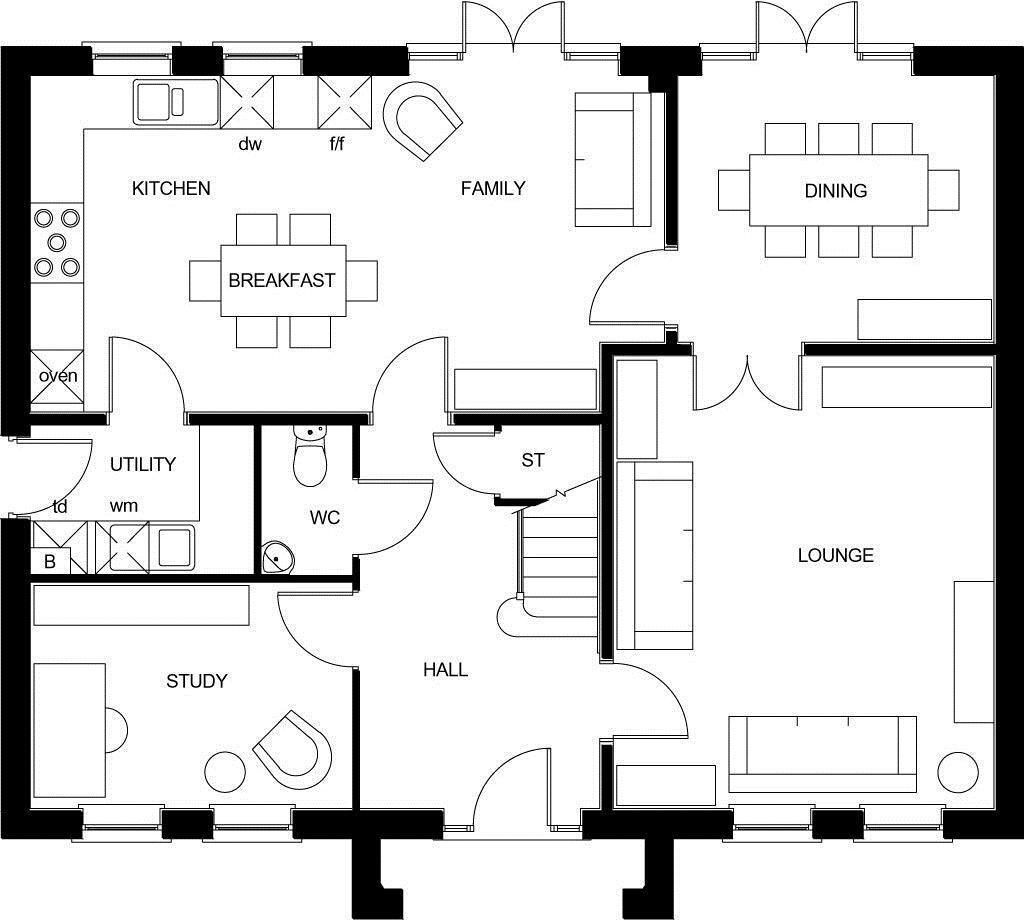
Approx. 2,134 sq ft of living space, generous room sizes
Large kitchen/family area with top‑range upgrade and wine cooler
West‑facing garden overlooking green space, decent plot size
Double garage plus private driveway for four cars
New‑build finish; flooring package included, ready to move in
Tenure not confirmed — verify before exchange
Local crime reported above average; check neighbourhood safety measures
This substantial five‑bedroom, new‑build detached house on Stratford Drive offers generous family living across approximately 2,134 sq ft. The Lichfield layout provides flexible reception spaces — lounge, dining room with French doors, study, and a large kitchen/family area — opening onto a west‑facing garden that overlooks green space. A double garage plus private driveway for four cars and a decent plot add practical outdoor space and secure parking.
Specification highlights include a top‑range kitchen upgrade (wine cooler included) and a flooring package, delivered ready for occupation. The main bedroom includes a dressing area and en suite, and there are two further double bedrooms on the first floor with two more doubles on the second floor, offering room for home offices or growing families.
Buyers should note a few important points: tenure is not confirmed in the supplied details, and the summary data lists only one bathroom overall despite en suite and additional bathrooms described in floor layouts — confirm exact bathroom count and floorplans before proceeding. The local crime level is reported as above average, so check local safety stats and any community security measures. Incentives are offered subject to lender criteria, including a £37,500 deposit boost or 105% part‑exchange and up to £10,000 towards Stamp Duty, which may materially assist affordability.
Overall this is a modern, well‑proportioned family home in a prosperous, rural‑edge location with excellent connectivity (fast broadband, strong mobile signal). It suits buyers seeking roomy, move‑in ready accommodation with high‑spec finishes and good outdoor space; confirm tenure, final specification, and bathroom count at viewing to remove any uncertainty.
5 bedroom detached house for sale in Stratford Drive
Overstone
NN6 0RP, NN6 — £749,995 • 5 bed • 1 bath • 2515 ft²
5 bedroom detached house for sale in Stratford Drive
Overstone
NN6 0RP, NN6 — £749,995 • 5 bed • 1 bath • 2134 ft²
5 bedroom detached house for sale in Stratford Drive
Overstone
NN6 0RP, NN6 — £639,995 • 5 bed • 1 bath • 1671 ft²
5 bedroom detached house for sale in Stratford Drive
Overstone
NN6 0RP, NN6 — £669,995 • 5 bed • 1 bath • 1671 ft²
5 bedroom detached house for sale in Stratford Drive
Overstone
NN6 0RP, NN6 — £709,995 • 5 bed • 1 bath • 1780 ft²
5 bedroom detached house for sale in Stratford Drive
Overstone
NN6 0RP, NN6 — £624,995 • 5 bed • 1 bath • 1487 ft²


















































