Spacious 1930s house with two self-contained annexes and hot tub garden.
Six bedrooms including principal suite with large dressing room
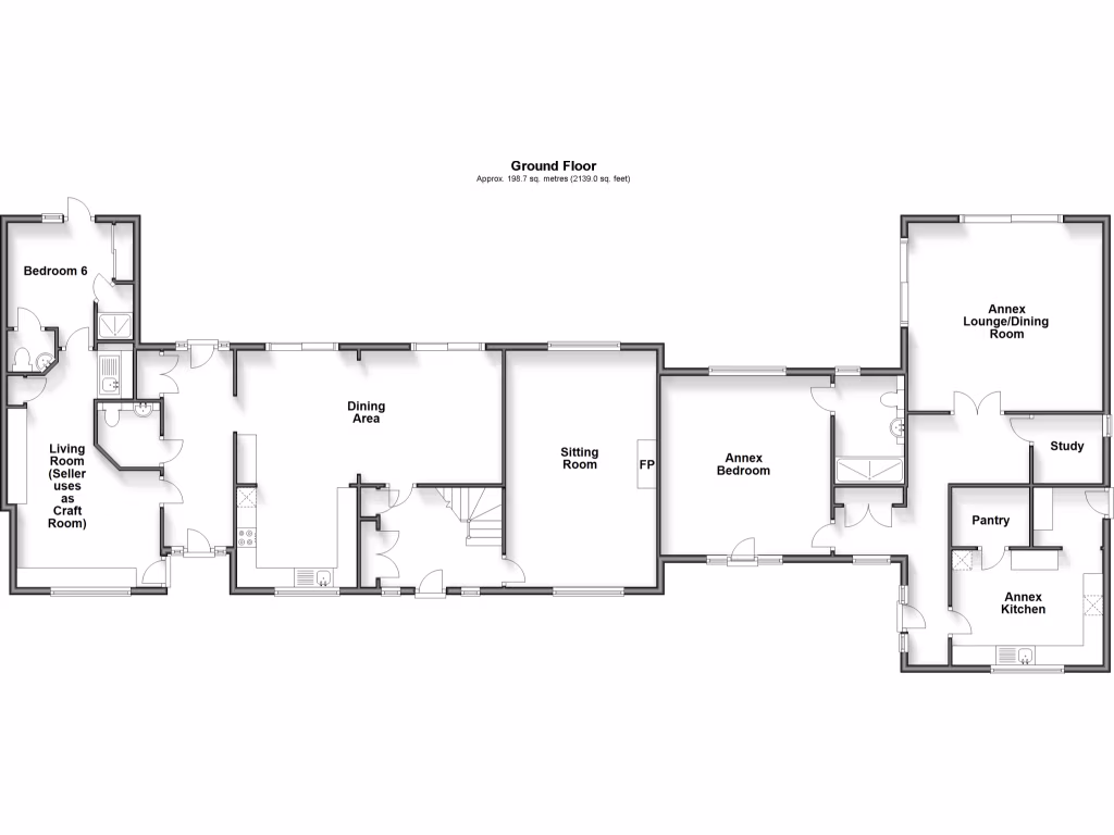
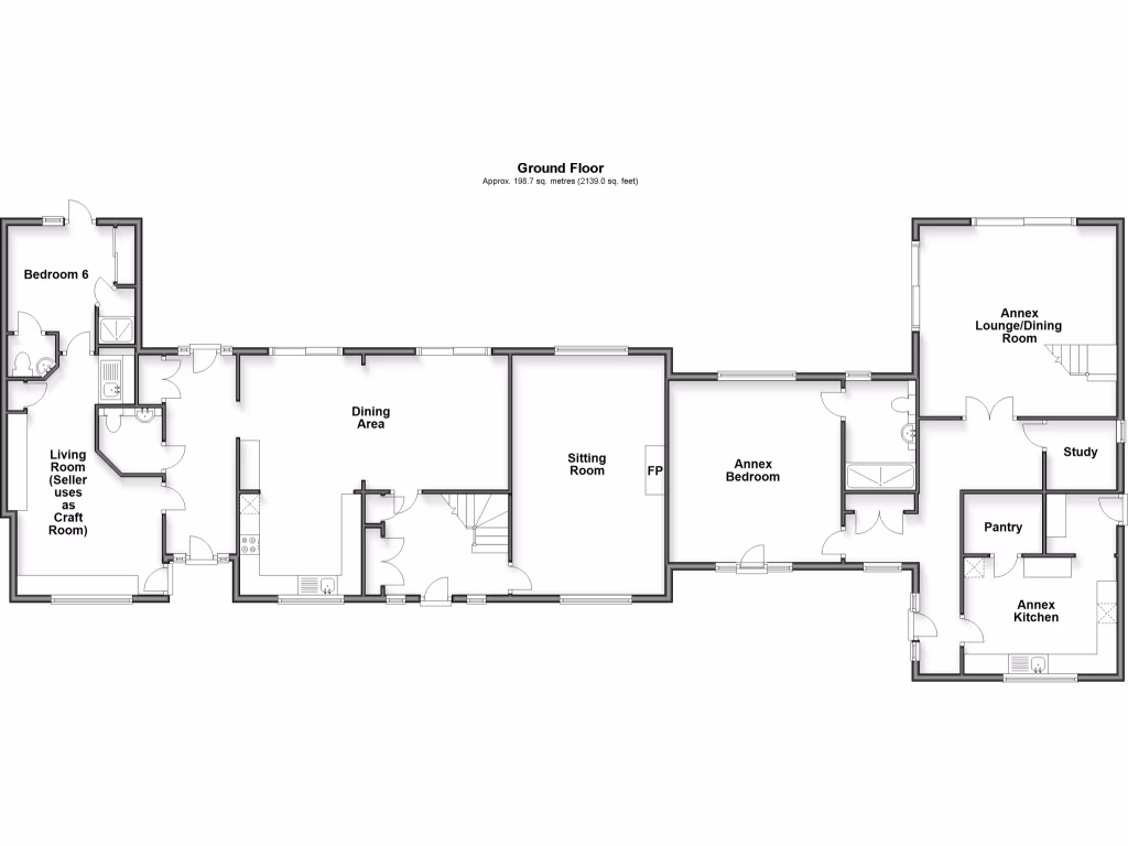
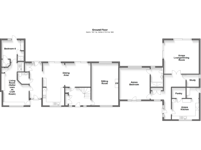
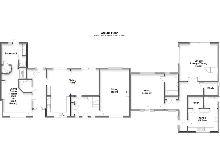
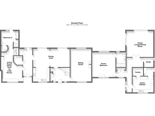
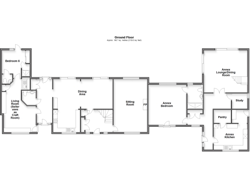
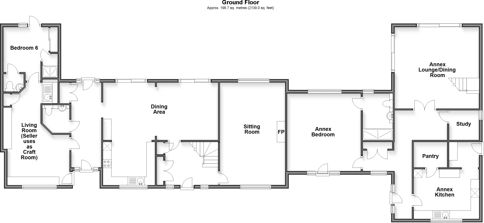
Hillway House is a spacious, newly renovated 1930s detached home set on a large plot in Bembridge, a short walk from the beach. The principal house offers generous living space, three large double bedrooms and a principal suite with extensive dressing room and en‑suite. Thoughtful refurbishment has kept period character (brick fireplaces, decorative mouldings) while introducing modern comforts such as underfloor heating in places and double glazing.
The property’s main financial and practical strengths are its two self‑contained annexes and extensive parking. Both annexes have private access and gardens; the west annexe functions as an independent two‑bed, two‑bath unit and the east annexe provides a one‑bed with kitchenette. These provide genuine options for multigenerational living or reliable holiday‑let/long‑term rental income.
Outside, the tiered, low‑maintenance garden is designed for entertaining and relaxation, centred on a garden room with a 7‑person hot tub, built‑in speakers and countryside views. A large gravel driveway and detached garage provide ample parking for multiple vehicles. The location is affluent with low crime and good primary schools nearby, making this appealing to families and investor buyers alike.
Notable practical points: broadband speeds are slow and mobile signal is only average — important if remote work is required. Buyers should verify planning and building regulation consents for the extensions/annex conversions, and check the condition of specialist items (hot tub, wood burners, integrated appliances). Council tax is moderate and the property is freehold.
7 bedroom detached house for sale in Bembridge, PO35 — £1,995,000 • 7 bed • 5 bath • 6641 ft²
7 bedroom detached house for sale in Bembridge, Isle of Wight, PO35 — £2,500,000 • 7 bed • 4 bath • 4585 ft²
4 bedroom detached bungalow for sale in Brighstone, Isle of Wight, PO30 — £825,000 • 4 bed • 2 bath • 2700 ft²
5 bedroom detached bungalow for sale in Upper Hyde Farm Lane, Shanklin, Isle of Wight, PO37 — £700,000 • 5 bed • 3 bath • 2109 ft²
4 bedroom detached house for sale in Northclose Road, Bembridge, Isle of Wight, PO35 — £1,500,000 • 4 bed • 3 bath • 438 ft²
5 bedroom semi-detached house for sale in Swains Road, Bembridge, Isle of Wight, PO35 5XS, PO35 — £845,000 • 5 bed • 2 bath • 2162 ft²


















































































































































































































