Characterful C‑listed two-bedroom flat in prime Merchiston, minutes from parks and cafes.
Bright bay-front reception with high ceilings and original sash windows
Modern fitted kitchen with integrated appliances and metro-tiled splashback
Two double bedrooms, each with recessed sash windows and carpeting
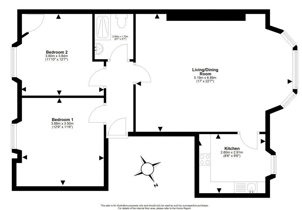
Approx 797 sq ft — spacious layout for a city two-bedroom flat
C‑listed status — restrictions and potentially higher repair costs
No private garden; on-street permit parking only
Gas central heating, excellent mobile signal and fast broadband
Close to shops, cafes, transport links and large public green spaces
Set on the first floor of a handsome C‑listed Victorian building in prime Merchiston, this two-bedroom flat pairs period charm with modern convenience. High ceilings, an original bay with sash windows and decorative cornice give the reception room generous light and character. The modern kitchen is fitted with integrated appliances and the shower room is recently updated.
At about 797 sq ft the layout feels spacious for a city flat: two double bedrooms, a large bay-front reception and a separate kitchen. Gas central heating and fast broadband make the home practical for everyday living. The location is a key strength — boutique shops, cafes, good transport links and green spaces such as The Meadows are within easy reach.
Important practical notes: the property is C‑listed, which can complicate alterations and increase maintenance costs for historic fabric (stonework, windows, roof). There is no private garden and parking is on‑street by permit only. The wider area data flags local deprivation despite nearby professional and student populations, so buyers should check local services and insurance considerations.
Overall this is a characterful, well-presented period flat suited to buyers who value location, natural light and original features, and who are comfortable managing the responsibilities that come with listed, historic properties.
2 bedroom flat for sale in 4/2 Blantyre Terrace, Merchiston, Edinburgh, EH10 5AE, EH10 — £345,000 • 2 bed • 1 bath • 709 ft²
2 bedroom flat for sale in Coates Gardens, West End, Edinburgh, EH12 — £525,000 • 2 bed • 1 bath • 1367 ft²
2 bedroom flat for sale in Flat 3 9 Merchiston Park, Edinburgh, EH10 — £425,000 • 2 bed • 2 bath • 926 ft²
1 bedroom flat for sale in 2f4, 12 Springvalley Terrace, Edinburgh, EH10 4QA, EH10 — £210,000 • 1 bed • 1 bath • 475 ft²
2 bedroom flat for sale in 3/8 Belhaven Terrace, Morningside, Edinburgh, EH10 5HZ, EH10 — £275,000 • 2 bed • 1 bath • 569 ft²
2 bedroom flat for sale in 18/3 Brunton Terrace, Hillside, Edinburgh, EH7 5EQ, EH7 — £335,000 • 2 bed • 1 bath • 585 ft²






















































































