Flexible living with home-office space, double garage and sunny private garden.
Large corner plot with private south-facing garden
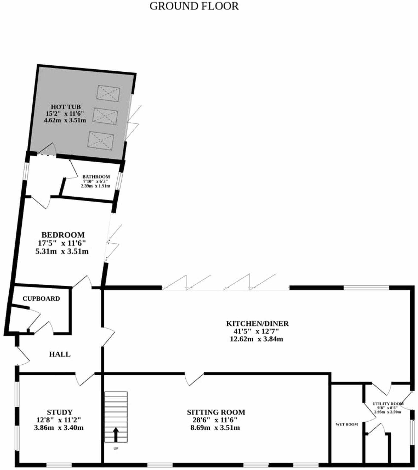
A spacious, adaptable home on a large corner plot offering flexible layouts for families, multi-generational living or business use. The layout includes large open-plan living with high-spec kitchen, multiple rooms with bi-fold doors and vaulted ceilings, and a self-contained ground-floor wing suitable as an annexe or home office.
Practical features include a double garage with electric doors, electric car charging point, full ethernet wiring, and generous off-street parking. The south-facing garden is low-maintenance with artificial turf and a wrap-around patio, creating a sunny outdoor social space. Internally the property totals about 2,244 sq ft and provides generous bedroom and bathroom provision, including a master ensuite with quality Porcelanosa finishes.
Known considerations: the house is heated by an oil boiler, the walls are original solid brick with assumed limited cavity insulation, and the EPC is currently D. Built before 1900 and historically used for retail and office purposes, the building offers conversion potential but purchasers should verify planning and building regulation requirements. The hot tub is a recent addition and may be included by negotiation.
This is a rare opportunity for buyers seeking substantial, flexible accommodation in a Broads Authority village. Whether you need multiple home offices, an annexe for relatives or a property with income potential, the adaptable layout and private plot make this a practical, versatile choice — subject to the usual checks on services and consents.
3 bedroom detached house for sale in Poplar Drive, Filby, Great Yarmouth, NR29 — £500,000 • 3 bed • 2 bath • 1454 ft²
3 bedroom detached house for sale in Poplar Drive, Filby, NR29 — £525,000 • 3 bed • 1 bath • 1478 ft²
4 bedroom detached house for sale in Main Road, Filby, NR29 — £480,000 • 4 bed • 2 bath • 1809 ft²
6 bedroom detached house for sale in Main Road, Filby, NR29 — £650,000 • 6 bed • 3 bath • 2046 ft²
3 bedroom end of terrace house for sale in Thrigby Road, Filby, NR29 — £350,000 • 3 bed • 2 bath • 1218 ft²
3 bedroom bungalow for sale in Thrigby Road, Filby, NR29 — £400,000 • 3 bed • 2 bath • 2172 ft²


























































































































