**Standout Features:**
- Charming end of terrace period cottage built in 1895
- Two spacious bedrooms and one bathroom
- Off-road parking and a delightful garden
- Original period features, including fireplaces and a picture window
- Prime location in the heart of Chipstead village
- Council Tax Band E (£2,748.04 for 2024/25)
- Nearby schools with Good Ofsted ratings
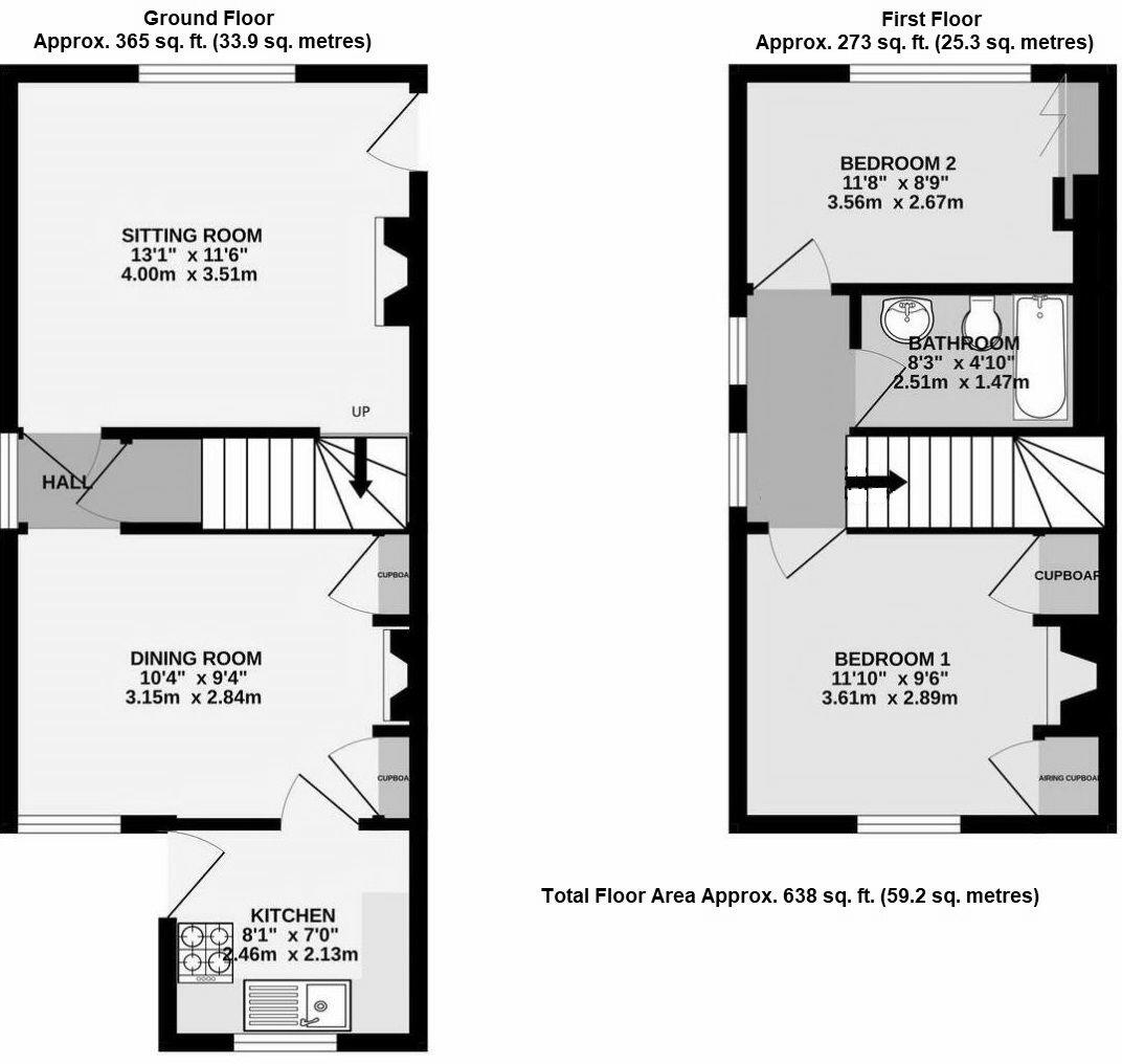
This delightful end of terrace cottage, steeped in character and charm, is ideally located in the heart of Chipstead village. With two generous bedrooms and a bathroom across 638 sq ft, the property showcases beautiful original features like a cast iron fireplace and an inviting picture window, making it a perfect haven for first-time buyers or small families. The cozy living room flows into a dining area that leads into a traditional kitchen; while it may need some updating, its layout offers excellent potential for personal touches.
Outside, enjoy the benefits of off-road parking and a charming garden marked by mature trees, a patio area, and a shed—perfect for outdoor activities or simply relaxing. Both family-friendly and situated within a low-crime area, this home benefits from a solid network of schools, with several rated Good by Ofsted. With its desirable location, beautiful period design, and future renovation potential, this property won't last long! Schedule a viewing today to fully appreciate the warmth and charm this cottage has to offer.
3 bedroom semi-detached house for sale in High Street, Chipstead, TN13 — £660,000 • 3 bed • 1 bath • 1138 ft²
3 bedroom end of terrace house for sale in Chevening Road, Chipstead, Sevenoaks, TN13 — £675,000 • 3 bed • 1 bath • 1425 ft²
4 bedroom detached house for sale in Homedean Road, Chipstead, TN13 — £1,275,000 • 4 bed • 2 bath • 2651 ft²
5 bedroom detached house for sale in Hazelwood Lane, Chipstead, CR5 — £895,000 • 5 bed • 3 bath • 2078 ft²
2 bedroom end of terrace house for sale in Chipstead Lane, Sevenoaks, Kent, TN13 — £475,000 • 2 bed • 1 bath • 722 ft²
2 bedroom end of terrace house for sale in London Road, SEVENOAKS, TN13 — £395,000 • 2 bed • 1 bath • 562 ft²


































































