Rare large plot with planning granted for substantial redevelopment near beaches.
South-facing, level plot of approximately 0.75 acre
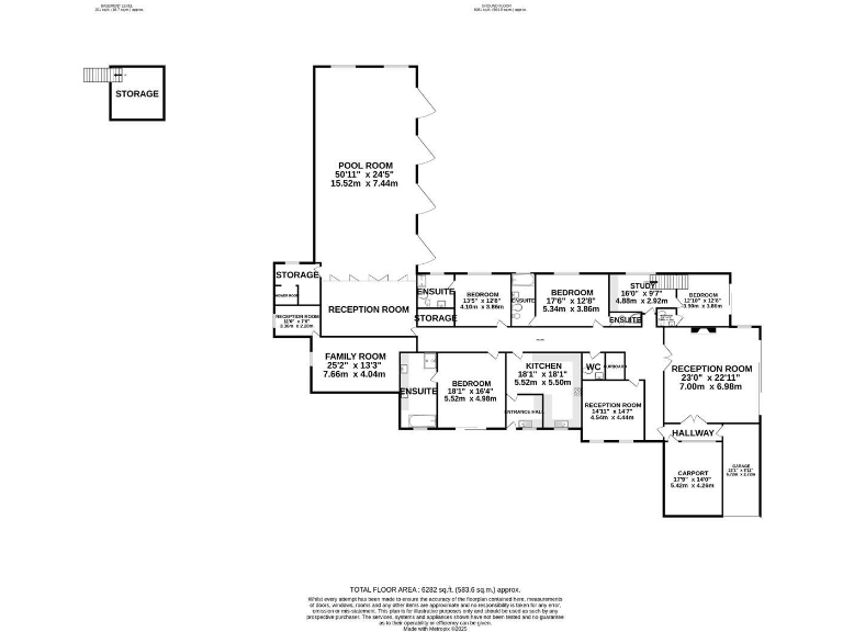
A rare, level south-facing plot of approximately 0.75 acres in Branksome Park, this detached bungalow offers a substantial redevelopment opportunity in one of the area’s most desirable streets. The existing single-storey footprint and expansive grounds provide a blank canvas for a large replacement dwelling or extensive refurbishment; planning has already been granted to a design by ARC for about 5,500 sq ft, with potential to add a further c.2,300 sq ft if the indoor pool complex is retained and refurbished.
The current house provides more than 6,200 sq ft of accommodation, six bedrooms and sizeable reception spaces, but the building requires full modernisation. The indoor pool complex, older glazing (pre-2002) and an existing gas boiler and radiators will need investment to meet contemporary standards. Council tax is noted as quite expensive and purchasers should budget for substantial renovation and running costs.
Location is a key value driver: tree-lined Western Avenue sits midway between Poole and Bournemouth, close to Branksome Chine beaches, strong independent and state schools, good rail and road links, and nearby airports and ferry services. The plot’s privacy, south-facing aspect and very large drive and gardens make it attractive for a high-end replacement house or retained pool scheme.
Prospective buyers and developers should carry out their own due diligence on the granted planning and scope of works. For those seeking a rare plot in Branksome Park with planning in place, this property represents a clear opportunity, balanced by a need for significant refurbishment and associated costs.
4 bedroom detached house for sale in Branksome Park Poole, BH13 — £1,395,000 • 4 bed • 2 bath • 2348 ft²
4 bedroom detached house for sale in Western Road, Branksome Park, BH13 — £2,650,000 • 4 bed • 1 bath • 2500 ft²
4 bedroom detached house for sale in Buccleuch Road, Branksome Park, BH13 — £1,450,000 • 4 bed • 4 bath • 2712 ft²
5 bedroom detached house for sale in Canford Cliffs Road, Branksome Park, Poole, BH13 — £1,695,000 • 5 bed • 3 bath • 2600 ft²
4 bedroom detached house for sale in Eaton Road, Branksome Park, Poole, BH13 — £735,000 • 4 bed • 1 bath • 2179 ft²
4 bedroom detached house for sale in Belgrave Road, Branksome Park, Poole, Dorset, BH13 — £1,150,000 • 4 bed • 2 bath • 2273 ft²






















