Low-maintenance four-bed home with hybrid heating near Elgin amenities.
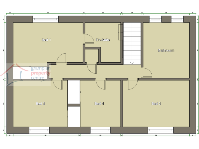
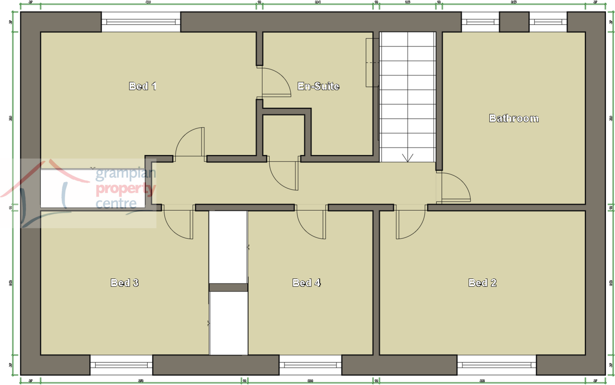
Four bedrooms including master with en-suite shower room
Set on a quiet residential street a short drive from Elgin, this modern four-bedroom semi-detached house is arranged over two floors with bright, family-sized living space. The ground floor opens to a welcoming hallway, cloakroom, lounge and a long kitchen/diner with integrated appliances and double doors out to a low-maintenance rear garden — ideal for children and outdoor entertaining. The adjoining utility and integral garage add practical storage and laundry space.
Upstairs offers a master bedroom with an en-suite shower room plus three further bedrooms and a roomy family bathroom. The house benefits from double glazing throughout and a hybrid Daikin heating system that combines gas boiler and heat-pump technology to improve efficiency. Fast broadband and an average mobile signal support home working and streaming needs.
Practical costs and location points are set out clearly: the property is freehold, carries a modest annual service charge of £192 (communal factoring) and an additional estate communal fee of about £16 per month. Council tax is above average for the area. The wider location is classified as remoter/agricultural communities and recorded as a very deprived area, which may affect long-term resale and local amenities compared with more central neighbourhoods.
Overall this is a straightforward, low-maintenance family home with modern finishes and energy-efficient heating that will suit buyers prioritising practical living, good connectivity and easy outdoor upkeep. Buyers seeking a central urban setting or higher socio-economic area should weigh the location classification and local deprivation indicators against the house’s practical strengths.
4 bedroom detached house for sale in Balvenie Park, Elgin, IV30 — £410,000 • 4 bed • 4 bath • 1554 ft²
4 bedroom detached house for sale in Duffus Heights, Elgin, Morayshire, IV30 — £325,000 • 4 bed • 2 bath
4 bedroom detached house for sale in Johnston Drive, Elgin, IV30 — £295,000 • 4 bed • 2 bath • 1038 ft²
4 bedroom semi-detached house for sale in 28 Russell Place, Elgin, IV30 — £265,000 • 4 bed • 3 bath
3 bedroom semi-detached house for sale in Lesmurdie Road, Elgin, IV30 — £170,000 • 3 bed • 2 bath • 958 ft²
4 bedroom terraced house for sale in Bailies Drive, Elgin, IV30 — £175,000 • 4 bed • 1 bath • 1184 ft²










































































































