Large period apartment near Gloucester Docks with parking and rental potential.
Chain free two-bedroom top-floor duplex
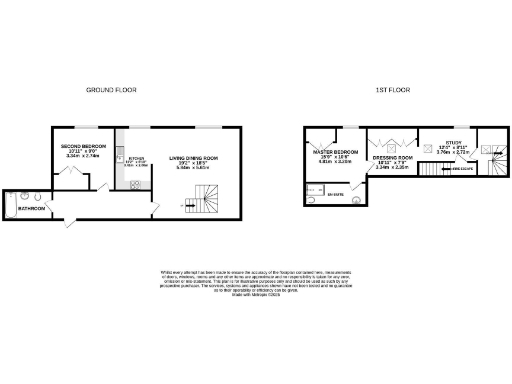
Large 1,130 sqft living accommodation with high ceilings
Master bedroom with en-suite and dressing room
Allocated off-street parking for one vehicle
Leasehold: 98 years remaining; service charge £3,500 pa
Ground rent £150 pa; potential rent c. £1,200 pcm
EPC rating E49; electric storage heating (higher running costs)
Area shows high crime and high deprivation statistics
A generous two-bedroom duplex arranged over the top floors of a Georgian-period block, offered chain free and ready for immediate occupation or rental. At 1,130 sq ft the layout feels spacious: a large living/dining room with high ceilings and sash windows, an open-plan kitchen, a study, and a master suite with dressing room and en-suite. Allocated off-street parking is included — a rare convenience close to Gloucester Docks.
Practical aspects are clear: the property is leasehold with 98 years remaining, an annual service charge of about £3,500 and ground rent of £150. Heating is by electric storage heaters and the EPC is E49; these factors will influence running costs. Broadband and mobile reception are good, and the home has potential to achieve a competitive rental return (estimated £1,200 pcm).
Location is a strong selling point for city living: designer outlets, waterside bars and Gloucester Cathedral are all within walking distance, with the train station around 1.5 miles. That makes the apartment suitable for professionals, first-time buyers seeking space, or investors targeting the local lettings market.
Buyers should note the local context: the wider area shows high crime and marked deprivation statistics, and the building’s solid brick construction likely lacks modern wall insulation. This is a characterful urban home with clear benefits and a few practical trade-offs to consider before purchase.
2 bedroom duplex for sale in St. Ann Way, Gloucester, GL1 — £262,500 • 2 bed • 2 bath • 947 ft²
2 bedroom apartment for sale in Ribston Hall, Spa Road, Gloucester, GL1 — £170,000 • 2 bed • 1 bath • 646 ft²
2 bedroom apartment for sale in Southgate Street, Gloucester, GL1 — £160,000 • 2 bed • 2 bath • 626 ft²
2 bedroom duplex for sale in Provender, Bakers Quay, Gloucester Docks, GL1 — £274,400 • 2 bed • 2 bath • 948 ft²
1 bedroom flat for sale in Spa Road, Gloucester, GL1 — £125,000 • 1 bed • 1 bath • 584 ft²
2 bedroom apartment for sale in Biddle & Shipton, Gloucester Docks, GL1 — £210,000 • 2 bed • 2 bath • 689 ft²


















































