**Standout Features:**
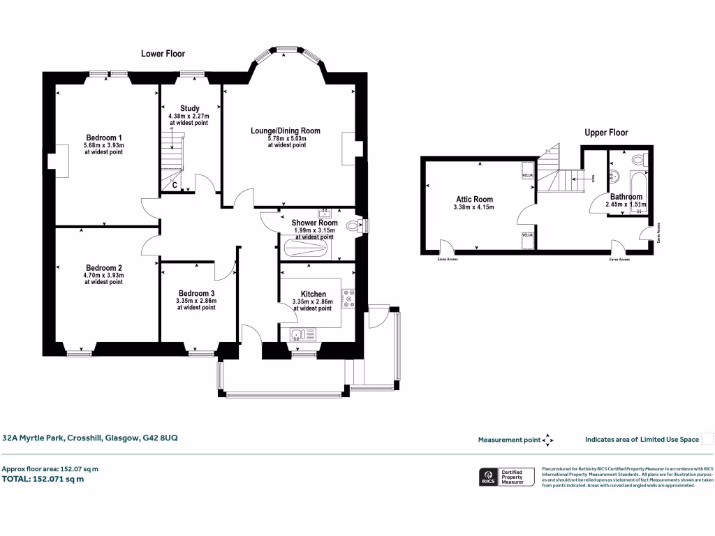
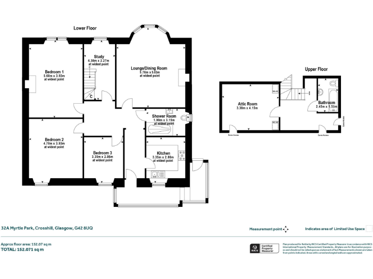
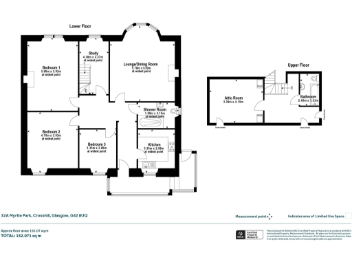
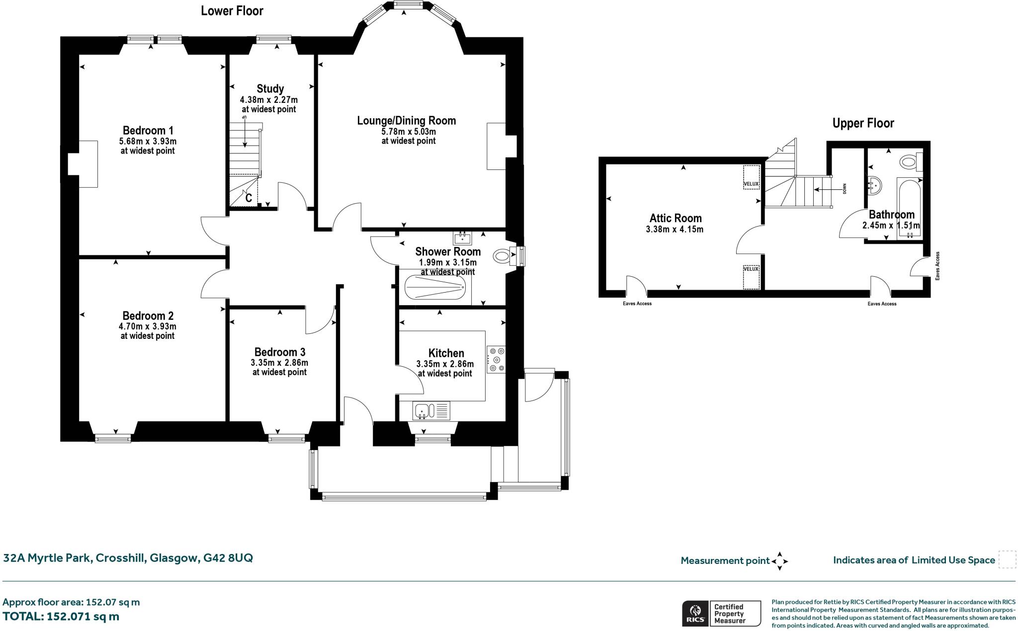
- Large upper conversion in a Victorian semi-detached building
- Spacious 1,636 sq. ft. with 3 bedrooms and 2 bathrooms
- Modern amenities including double glazing and gas central heating
- Landscaped rear garden with patio and decked areas
- Excellent mobile signal and fast broadband speeds
- Off-street parking available
- Potential for flexible space usage, including attic
**Concerns:**
- Requires modernization; potential presence of mold in the conservatory
- Some maintenance needed on the roof
Nestled in the sought-after Crosshill area of Glasgow, this expansive upper conversion combines classic Victorian charm with modern opportunities. The property features generous living spaces, including a bay-windowed lounge with original cornicing and a contemporary kitchen equipped with integrated appliances. With three bedrooms—one perfect as a home office—and a lined attic offering versatile potential, this residence is ideal for families or first-time buyers seeking space and comfort.
The beautifully landscaped garden invites relaxation and outdoor entertainment, complemented by off-street parking for added convenience. While the property does require some modernization, including addressing potential mold in the conservatory, its exceptional location near schools and amenities—including vibrant Victoria Road and nearby parks—ensures a lifestyle rich in convenience and leisure. This home is more than just a living space; it’s a canvas for your vision. Given the market's competitiveness, invest today and begin creating your ideal sanctuary in this promising locale.
3 bedroom apartment for sale in 0/1 7 Winton Drive, Kelvinside, G12 0PZ, G12 — £585,000 • 3 bed • 2 bath • 2174 ft²
2 bedroom apartment for sale in Albert Road, Crosshill, Glasgow, G42 — £205,000 • 2 bed • 1 bath • 989 ft²
3 bedroom flat for sale in Dumbarton Road, Flat 2/1, Yoker, Glasgow, G14 0NL, G14 — £109,000 • 3 bed • 1 bath • 878 ft²
5 bedroom terraced house for sale in Carmichael Place, Battlefield, Glasgow, G42 — £399,000 • 5 bed • 2 bath • 2869 ft²
3 bedroom apartment for sale in Leslie Road, Pollokshields, Glasgow, G41 — £399,000 • 3 bed • 2 bath • 1685 ft²
2 bedroom flat for sale in Grange Road, Battlefield, Glasgow, G42 — £210,000 • 2 bed • 1 bath • 747 ft²


















































































































