Character-filled home with garden, ideal for first-time buyers wanting a central base.
Central location, short walk to town centre and mainline station
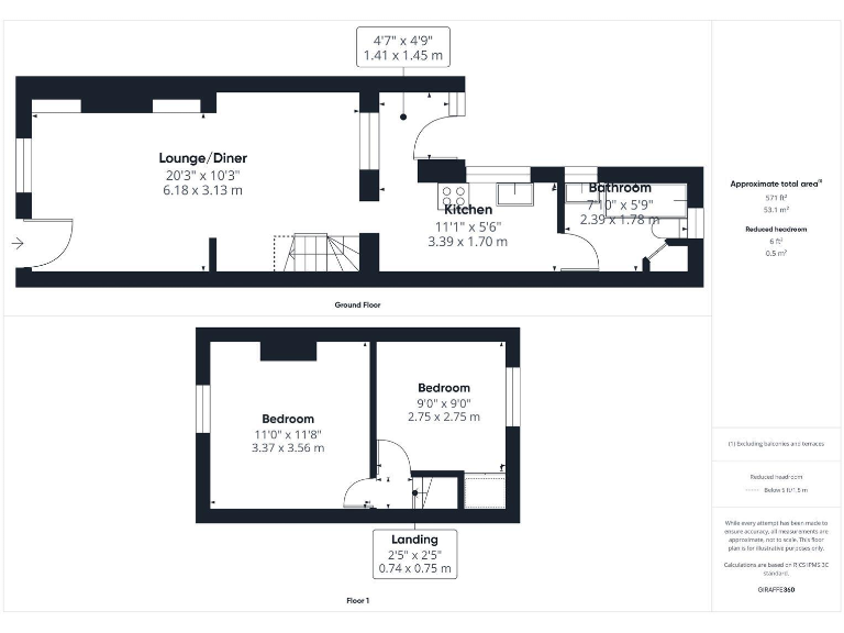
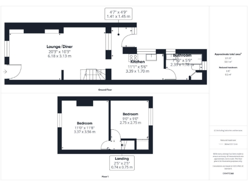
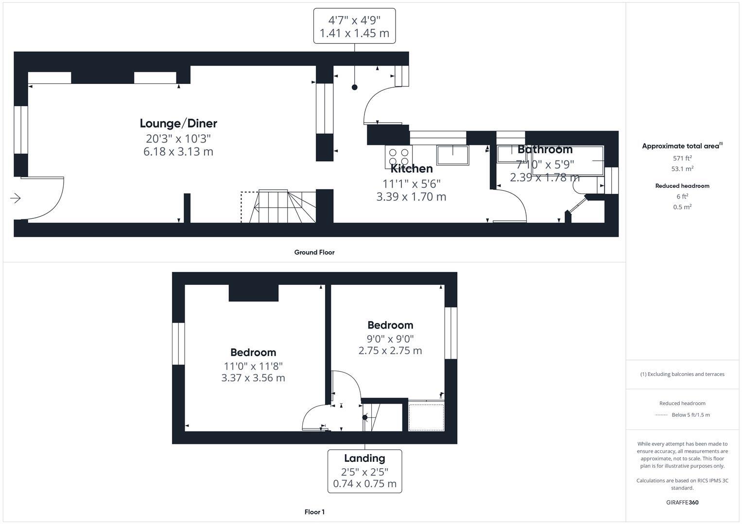
A well-presented Victorian mid-terrace offering practical living in a very central Aylesbury location. The ground floor provides a comfortable lounge/diner with exposed beams and a separate kitchen, while two double bedrooms upstairs give genuine space for a first home or small family.
The property benefits from a good-size rear garden with patio and lawn, useful outdoor storage and walking access to the town centre, mainline station and local schools. Heating is mains gas via a boiler and radiators, and double glazing is already installed.
There are some important things to note: the house is compact (approximately 571 sq ft) with small rooms and solid brick walls likely lacking cavity insulation. Double glazing is an older installation (pre-2002) and the area records above-average crime levels. These factors may mean upfront improvement work or retrofit insulation is desirable.
Overall this terrace suits a first-time buyer or small household seeking character, convenience and outdoor space close to transport and schooling, with clear potential to personalise and improve energy performance over time.
2 bedroom terraced house for sale in Ardenham Street, Aylesbury, Buckinghamshire, HP19 — £280,000 • 2 bed • 1 bath • 653 ft²
2 bedroom terraced house for sale in Roberts Drive, Aylesbury, HP19 — £270,000 • 2 bed • 1 bath • 514 ft²
2 bedroom terraced house for sale in Buckingham Road, Aylesbury, HP19 — £250,000 • 2 bed • 1 bath • 567 ft²
2 bedroom semi-detached house for sale in Buckingham Road, Aylesbury, Buckinghamshire, HP19 — £325,000 • 2 bed • 1 bath • 764 ft²
2 bedroom terraced house for sale in Bicester Road, Aylesbury, Buckinghamshire, HP19 — £295,000 • 2 bed • 2 bath • 756 ft²
3 bedroom semi-detached house for sale in Buckingham Road, Aylesbury, Buckinghamshire, HP19 — £365,000 • 3 bed • 1 bath • 937 ft²










































