Large detached home with sea views, garage, solar income and generous garden..
Four double bedrooms plus flexible ground-floor fifth room or reception
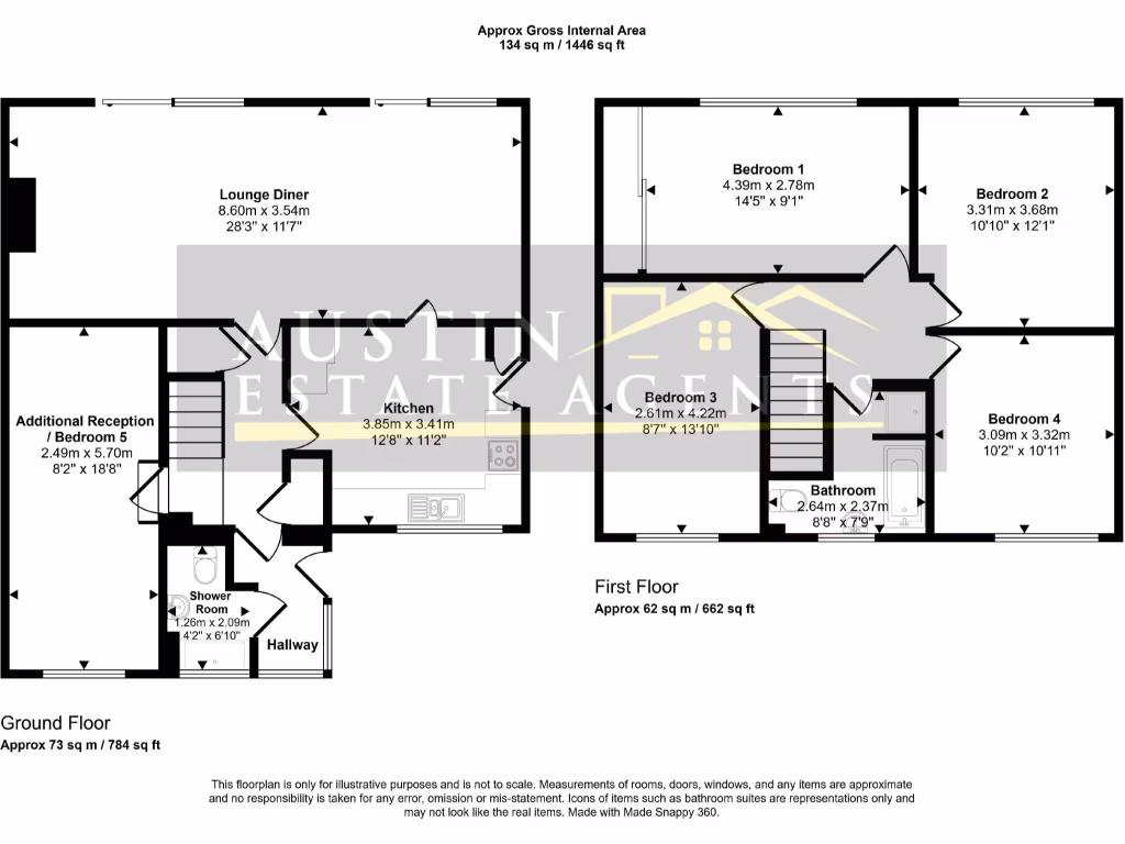
A substantial detached family home offering flexible living across two floors and excellent coastal views. The property delivers four double bedrooms (plus a versatile ground-floor fifth/reception), a wide lounge-diner that runs the full width of the house and a modern fitted kitchen with space for dining. Large patio doors bring light into the rear living area and provide direct access to a low‑maintenance garden with deck, artificial lawn and shed with power.
Practical benefits include an insulated, extended garage, two driveways for off‑road parking, double glazing, mains gas central heating and a solar panel system currently generating roughly £1,500pa tax-free. The house is freehold, sits on a decent plot and is positioned near schools, local shops and the Fleet Nature Reserve with coastal and countryside walks close by.
Known limitations are factual and important: broadband speeds in the area are slow, local crime statistics are above average and council tax is higher than typical. The house was constructed in the late 1960s–1970s, so while well maintained, some buyers may wish to update internal finishes or services over time. The EPC sits in the mid-C range (current 74, potential 78), indicating reasonable efficiency but room for improvement.
This property will suit a growing family seeking space, views and good outdoor access, or buyers wanting a practical home with income-generating solar panels. Viewings are recommended to appreciate the layout, storage beneath the house and the vantage over Weymouth and the South Dorset Downs.
4 bedroom detached house for sale in Wyke Regis, Weymouth, DT4 — £450,000 • 4 bed • 3 bath • 1572 ft²
4 bedroom semi-detached house for sale in Buxton Road, Weymouth, DT4 — £480,000 • 4 bed • 3 bath • 1992 ft²
4 bedroom detached house for sale in Fraser Avenue, Weymouth, Dorset, DT4 — £475,000 • 4 bed • 2 bath • 1507 ft²
5 bedroom detached house for sale in Whitecross Drive, Rodwell, DT4 — £580,000 • 5 bed • 3 bath • 1946 ft²
4 bedroom detached house for sale in Comet Close, Littlesea, Weymouth, DT4 — £400,000 • 4 bed • 2 bath • 1443 ft²
5 bedroom detached house for sale in Viscount Road, Weymouth, DT4 — £485,000 • 5 bed • 1 bath • 1092 ft²










































































