High-spec new home with large garden and rural views.
A-rated EPC with solar panels and PV boost
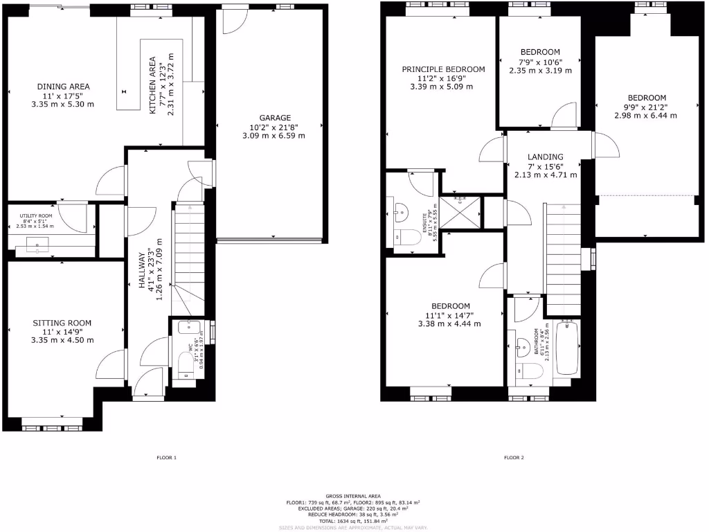
A recently completed four-bedroom semi-detached home set on the edge of open fields, The Meadow delivers contemporary living with strong eco credentials. The ground floor is open-plan with bifold-style rear glazing to the garden, a fitted Benchmarx kitchen with quartz surfaces and integrated Siemens appliances, and underfloor heating throughout supplied by a Mitsubishi Ecodan air source heat pump. Roof-mounted solar panels with an inverter and export meter plus PV boost reduce running costs and contribute to an A-rated EPC.
Accommodation is arranged across two floors with three double bedrooms, a fourth bedroom/study, and two contemporary bathrooms finished with porcelain tiling and Grohe fittings. Engineered oak doors, oak stair balustrades and Amtico flooring on the ground floor create a high-quality feel, while fitted wardrobes in the principal bedroom add useful storage. Each roof uses attic trusses to make future loft conversion more straightforward for buyers seeking extra space.
Outside, the house sits on a very large plot with a generous turfed garden, single garage and driveway. The setting is quietly rural yet linked to local roads for easy access; nearby schools include well-regarded state and independent options. High-speed fibre broadband is available and council tax is affordable for the area.
Buyers should note this is a new-build last-plot release; interiors are finished to a developer specification and any loft conversion or structural alterations would be a future cost. The heating and hot-water system is electric-based (air source heat pump backed by immersion) and the tariff is unspecified. Mobile signal is average — suitable for most but worth checking for those needing uninterrupted coverage.
4 bedroom detached house for sale in Marley Lane,
Chalgrove,
OX44 7TF, OX44 — £490,000 • 4 bed • 2 bath • 1201 ft²
4 bedroom detached house for sale in Middleton Stoney Road,
Bicester,
OX26 1RT, OX26 — £605,000 • 4 bed • 1 bath • 440 ft²
4 bedroom detached house for sale in Baileys Crescent, Abingdon,
Oxfordshire,
OX14 1PU, OX14 — £573,000 • 4 bed • 1 bath • 981 ft²
3 bedroom semi-detached house for sale in Combe Road, Stonesfield, Witney, OX29 — £425,000 • 3 bed • 2 bath • 1125 ft²
4 bedroom detached house for sale in Baileys Crescent, Abingdon,
Oxfordshire,
OX14 1PU, OX14 — £600,000 • 4 bed • 1 bath • 1079 ft²
4 bedroom semi-detached house for sale in Besselsleigh, Abingdon, Oxfordshire, OX13 — £800,000 • 4 bed • 3 bath • 1600 ft²


















































































