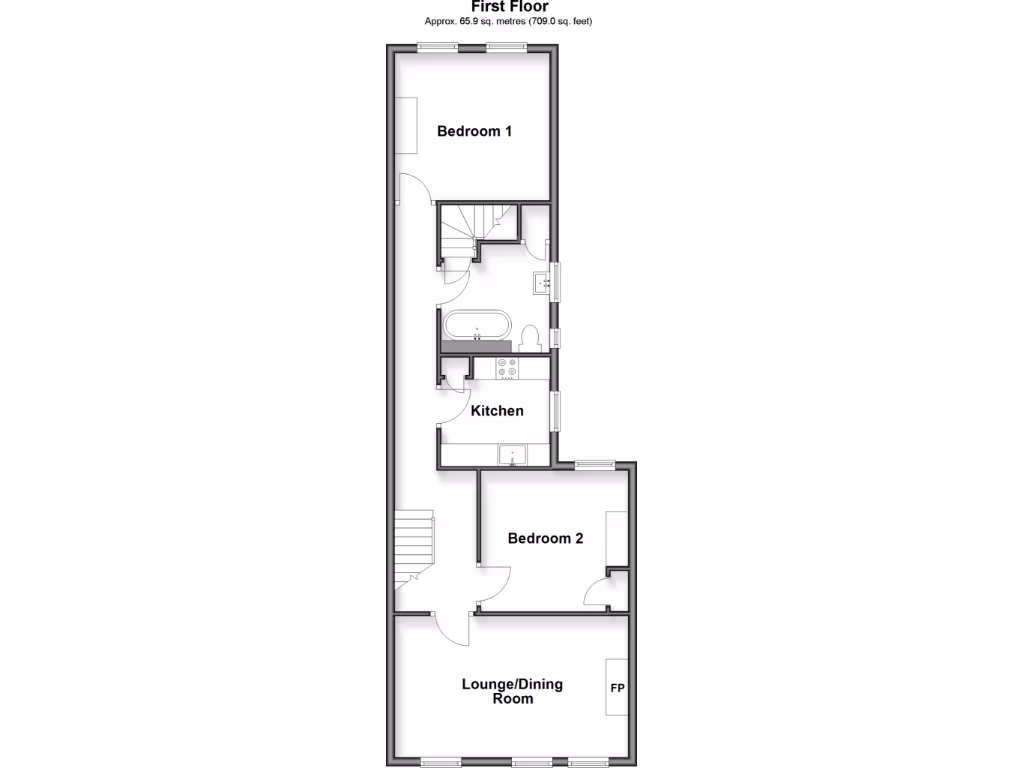
**Standout Features:**
- Recently refurbished first-floor Warner flat
- Modern Shaker-style kitchen with ample cupboard space
- High ceilings and wooden flooring throughout
- Shared garden access
- Proximity to public transport links (Lea Bridge and Leyton Stations)
- Nearby recreational areas including Jubilee Park and Hackney Marshes
- Two spacious double bedrooms
**Potential Concerns:**
- Average insulation; solid brick walls may result in higher heating costs
- Leasehold property, which may require attention for future management
This thoughtfully refurbished first-floor Warner flat is a perfect blend of modern living and period charm, making it an ideal choice for young families or first-time buyers. With two generous double bedrooms, a spacious living room, and a stylish modern kitchen, it offers comfortable living spaces bathed in natural light. Enjoy the luxury of a roll-top bath in the contemporary bathroom and step out to the shared garden for a taste of outdoor tranquility.
Conveniently located near transport links allowing for easy commutes, as well as local amenities and vibrant neighborhoods, this home provides a robust community feel. The nearby Jubilee Park and Hackney Marshes offer a great balance of urban and recreational lifestyle options. With outstanding primary schools within reach and a thriving local scene, this property promises not just a place to live but a lifestyle to enjoy. Don't miss your chance to secure this unique flat in a lively part of London—arrange a viewing today!
2 bedroom flat for sale in Seymour Road, Leyton, London, E10 — £450,000 • 2 bed • 1 bath • 792 ft²
1 bedroom ground floor flat for sale in Morieux Road, London, E10 — £395,000 • 1 bed • 1 bath • 532 ft²
1 bedroom ground floor flat for sale in Kettlebaston Road, London, E10 — £375,000 • 1 bed • 1 bath • 609 ft²
2 bedroom flat for sale in Blyth Road, Walthamstow, E17 — £400,000 • 2 bed • 1 bath • 679 ft²
2 bedroom maisonette for sale in Blyth Road, Walthamstow, E17 — £410,000 • 2 bed • 1 bath • 743 ft²
2 bedroom maisonette for sale in Kettlebaston Road, Leyton, London, E10 — £425,000 • 2 bed • 1 bath • 704 ft²


















































