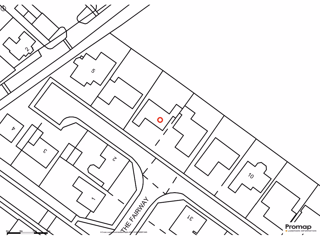
Quiet cul-de-sac home with views over the golf course — ideal for a family renovation project..
- Detached four-bedroom home with golf-course views
- Approximately 1,581 sq ft; decent plot size
- Chain free and garage with off-road parking
- Solar panels, gas central heating, double glazing
- Requires renovation and modernisation throughout
- Single family bathroom for four bedrooms
- Very low crime, affluent area, excellent broadband
- Council tax rated expensive
An extended four-bedroom detached home occupying a decent plot with far-reaching views over Flackwell Heath golf course. Quietly tucked in a cul-de-sac, the property offers good family living space across approximately 1,581 sq ft and benefits from double glazing, gas central heating and solar panels.
The layout includes an entrance hall, cloakroom, sitting/dining room with a mid-century brick fireplace, separate family room, kitchen, four good-sized bedrooms and a single family bathroom — so the house suits growing families but will require updating to modern standards. The home is offered chain free and provides a garage/store plus off-road parking.
Key positives for purchasers include its very low-crime, affluent neighbourhood, excellent mobile signal and fast broadband, making it attractive for remote working families. The property is in a White suburban, affluent community and sits close to several well-rated primary and secondary schools.
Buyers should note the property needs renovation — cosmetic and likely some modernisation — and there is only one bathroom for four bedrooms. Council tax is described as expensive. These factors are reflected in the price and present scope for renovation and value-add for a buyer prepared to invest.
4 bedroom detached house for sale in Links Road, Flackwell Heath, High Wycombe, Buckinghamshire, HP10 — £1,050,000 • 4 bed • 2 bath • 1833 ft²
4 bedroom detached house for sale in Heath End Road, Flackwell Heath, HP10 — £550,000 • 4 bed • 2 bath • 1096 ft²
4 bedroom detached house for sale in Churchill Close, Flackwell Heath, High Wycombe, Buckinghamshire, HP10 — £550,000 • 4 bed • 1 bath • 1337 ft²
4 bedroom semi-detached house for sale in Greenlands, Flackwell Heath, HP10 — £850,000 • 4 bed • 3 bath • 2370 ft²
3 bedroom semi-detached house for sale in Philip Drive - Corner Plot, HP10 — £600,000 • 3 bed • 1 bath • 1385 ft²
3 bedroom detached house for sale in Oakland Way, Flackwell Heath, High Wycombe, Buckinghamshire, HP10 — £695,000 • 3 bed • 2 bath • 1598 ft²


















































































