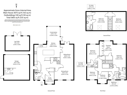
**Key Features:**
- Expansive six-bedroom detached house
- Large open-plan kitchen and conservatory
- Private garden with summer house and patio
- Office and utility room
- Master suite with en-suite and dressing room
- Garage and ample parking
**Overview:**
Discover this stunning six-bedroom detached home in the serene village of Kirby-le-Soken, complete with 3,075 sq. ft. of living space designed for modern family life. Boasting a spacious open-plan kitchen that seamlessly flows into a bright conservatory, this residence is perfect for entertaining guests. The master suite offers a luxurious en-suite and a dressing room, while the additional bedrooms ensure comfort for family and guests alike. A dedicated office and practical utility room add convenience to daily living.
**Outside,** relish the extensive garden space, ideal for outdoor gatherings or gardening, enhanced by a charming summer house that can serve as a home office or retreat. The property is set on a generous plot, with a gravel driveway providing parking for multiple vehicles and a garage for additional storage.
**Location:**
Nestled in a picturesque, tranquil village, this home combines peaceful living with easy access to local amenities and transport connections, including schools with good Ofsted ratings. The vibrant nearby town of Frinton-on-Sea enriches your lifestyle with boutique shops, dining, and recreational activities, from the local golf course to the renowned tennis clubs.
This property strikes a balance between elegance and functionality, perfect for families or investors looking for a spacious and inviting home in a sought-after area. Don't miss this opportunity to claim your slice of serene village life!
3 bedroom detached house for sale in The Street, Kirby Le Soken, Frinton on Sea, CO13 — £350,000 • 3 bed • 1 bath • 1206 ft²
5 bedroom detached house for sale in Quay Lane, Kirby-le-Soken, Frinton-on-sea, CO13 0DP, CO13 — £650,000 • 5 bed • 2 bath • 2400 ft²
4 bedroom detached house for sale in The Sparlings, Kirby-Le-Soken, Frinton-On-Sea, CO13 — £495,000 • 4 bed • 1 bath • 1769 ft²
4 bedroom detached house for sale in Quay Lane, Kirby-Le-Soken, Frinton-On-Sea, CO13 — £550,000 • 4 bed • 2 bath • 1812 ft²
6 bedroom detached house for sale in The Street, Kirby le Soken, Frinton on Sea, CO13 — £550,000 • 6 bed • 2 bath • 1551 ft²
6 bedroom detached house for sale in Dale Hill, Kirby-le-soken, CO13 — £1,000,000 • 6 bed • 3 bath • 4320 ft²


















































































































































































