Affordable coastal-area home with excellent transport links.
Two double bedrooms with generous proportions
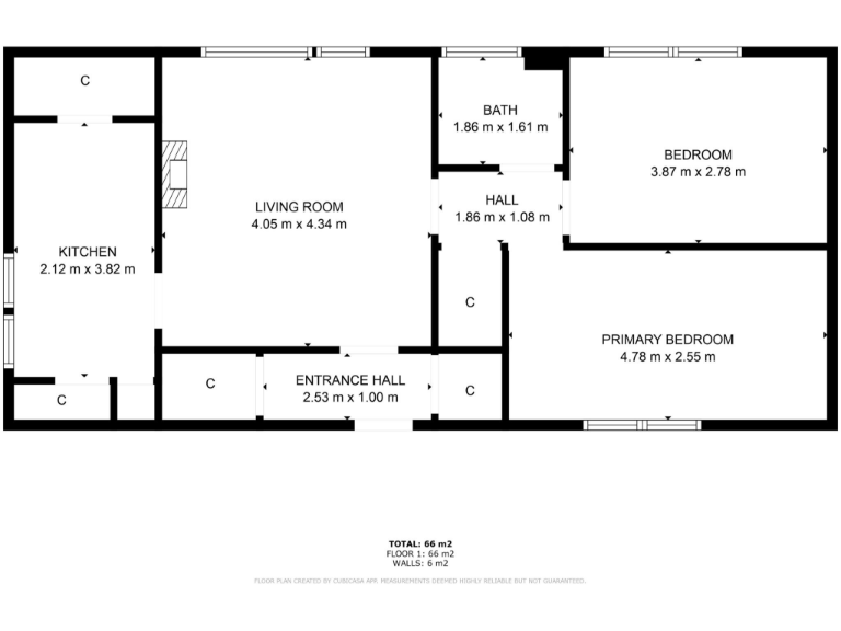
A well-proportioned two-bedroom flat offering good internal space, storage and sensible running costs for a low entry price. The lounge benefits from large windows and the kitchen has two useful storage cupboards plus room for freestanding appliances. Attic storage and access to a communal rear garden add practical space that many flats lack. Double glazing throughout helps with heat retention.
This property suits first-time buyers and buy-to-let investors seeking an affordable, well-connected home. The freehold tenure and very low council tax reduce ongoing costs, while the 710 sq ft layout gives comfortable room sizes and flexibility for living or letting layouts.
Buyers should be aware of the wider area’s socioeconomic challenges: the local area is described as very deprived, and the building carries an EPC rating of D. The communal garden is shared rather than private, and cosmetic updates may be desirable to reflect personal taste or to increase rental income. Overall this is a pragmatic purchase for someone prioritising value, transport links and low holding costs.
2 bedroom ground floor flat for sale in Warrix Avenue, Irvine, KA12 — £47,500 • 2 bed • 1 bath • 707 ft²
2 bedroom flat for sale in Dunvegan Place, Irvine, KA12 — £52,500 • 2 bed • 1 bath • 721 ft²
2 bedroom flat for sale in 15 Rubie Crescent, Irvine, KA12 8HA, KA12 — £60,000 • 2 bed • 1 bath • 627 ft²
2 bedroom flat for sale in Warrix Avenue, Irvine, KA12 — £50,000 • 2 bed • 1 bath • 732 ft²
2 bedroom apartment for sale in Paterson Crescent, Irvine, KA12 — £49,000 • 2 bed • 1 bath • 702 ft²
2 bedroom flat for sale in 11 Maxwood Place, Girdle Toll, Irvine, KA11 1QG, KA11 — £79,999 • 2 bed • 1 bath • 602 ft²














































