Move-in-ready home with garden, conservatory and period features.
Two double bedrooms with original cast-iron fireplaces
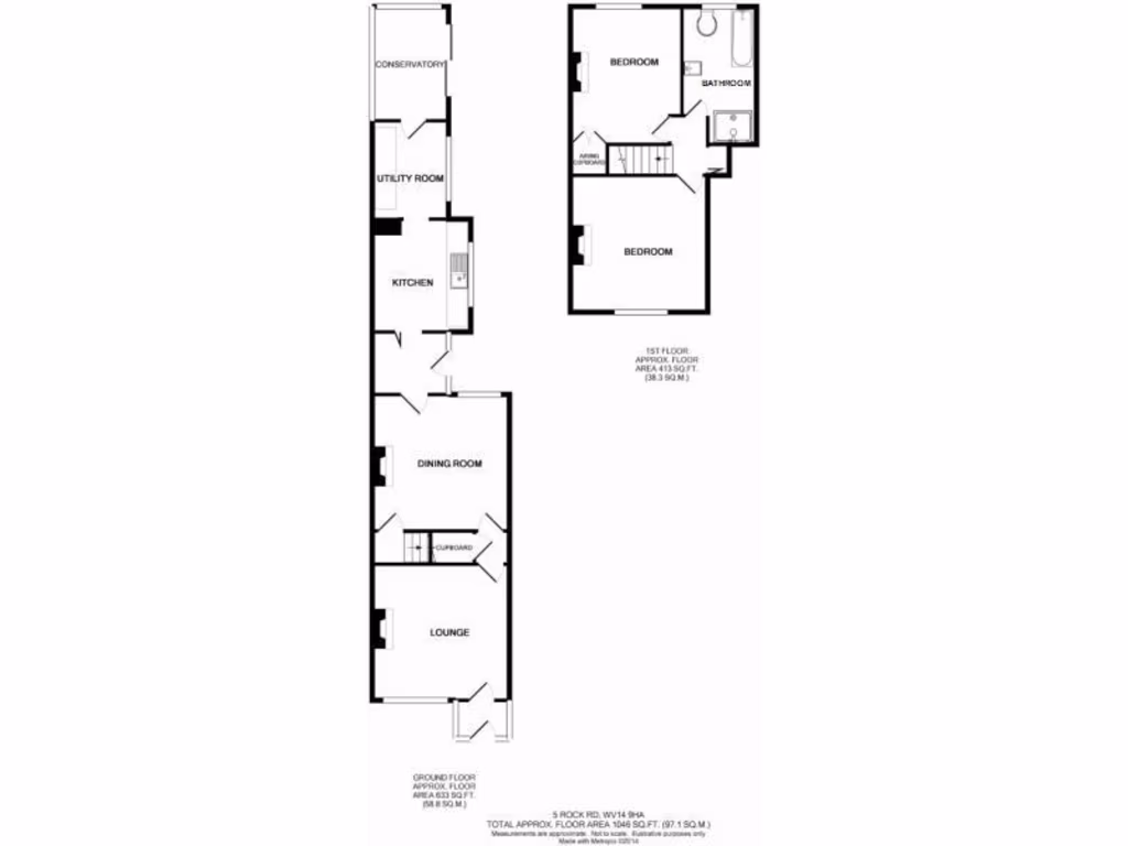
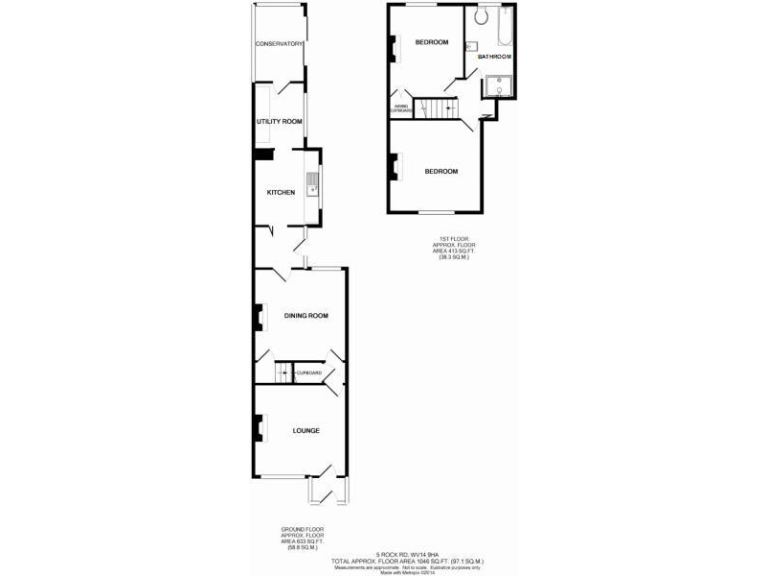
Set on a quiet stretch overlooking allotments, this well-presented Victorian mid-terrace blends period charm with practical modern upgrades. Two double bedrooms both retain original cast-iron fireplaces, and the living/sitting rooms create flexible space for home-working or entertaining.
A double-glazed conservatory overlooks a pleasant, private garden with patio, lawn, shed and a charming summerhouse — great for relaxing or a hobby room. The fitted kitchen with separate utility adds day-to-day convenience, while a first-floor bathroom provides both a bath and separate shower cubicle.
Practical comforts include mains gas central heating via a combination boiler and uPVC double glazing. Note the property’s solid brick construction (typical of its 1900–1929 build) likely means walls have no cavity insulation, and double-glazing installation date is unknown — further insulation work may be needed for long-term energy savings.
Ideal for first-time buyers wanting a move-in-ready home with character, or downsizers seeking manageable accommodation, the house is close to shops, schools (including good and outstanding-rated primaries) and public transport. Council Tax Band B and an EPC rating of C add to the practical appeal.
2 bedroom end of terrace house for sale in Hartland Avenue, COSELEY, WV14 9AN, WV14 — £182,500 • 2 bed • 1 bath • 609 ft²
3 bedroom semi-detached house for sale in Rifle Street, COSELEY, WV14 9HG, WV14 — £195,000 • 3 bed • 1 bath • 991 ft²
2 bedroom terraced house for sale in Dudley Road, SEDGLEY, DY3 1TF, DY3 — £199,950 • 2 bed • 1 bath • 786 ft²
2 bedroom terraced house for sale in Albion Road, WILLENHALL, West Midlands, WV13 — £170,000 • 2 bed • 1 bath • 1020 ft²
2 bedroom terraced house for sale in Dudley Road, Rowley Regis, B65 8JP, B65 — £180,000 • 2 bed • 1 bath • 980 ft²
2 bedroom terraced house for sale in Green Lane, Shelfield, Walsall, WS4 — £195,000 • 2 bed • 1 bath • 800 ft²


































































































