**Standout Features:**
- Newly built 5-bedroom detached villa
- Impressive architect-designed construction by award-winning firm Arka
- Large gardens with integrated double-sized garage
- High-performance insulation, air source heating, and double glazing for energy efficiency
- Flexible layout with versatile spaces ideal for family living and home working
- Surrounded by beautiful countryside with stunning views
**Concerns:**
- Broadband speeds are very slow
- Average mobile signal coverage
- Area classified as deprived
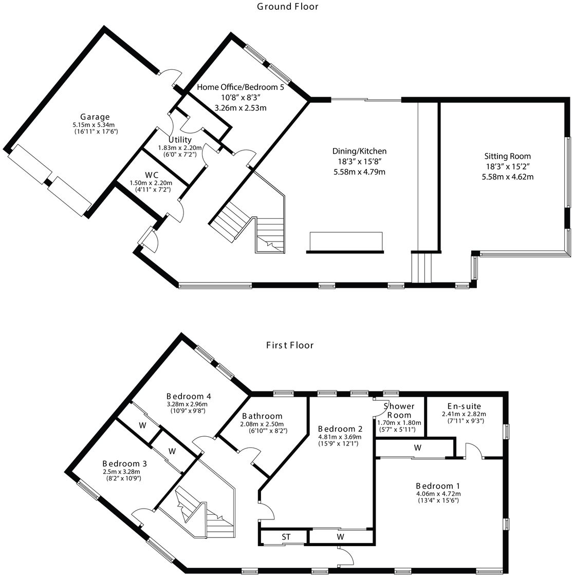
Nestled in the serene countryside of Avonbridge, this impressive 5-bedroom detached villa is an exceptional opportunity for families and home workers alike. Designed by the award-winning architects Arka, the residence is constructed to the highest standards and boasts a spacious layout of 1778 square feet, featuring a stunning sitting room with full-height windows, a modern dining kitchen, and a flexible downstairs bedroom that can double as a home office. The property offers two en-suite bathrooms, a family bathroom, a utility room, and a convenient attached double garage.
Set on a generous third-acre plot, the extensive gardens provide both privacy and a beautiful outdoor space for family activities. Enjoy comfort year-round with high-performance insulation and efficient air source heating. Although the area has limited mobile signal and very slow broadband speeds, the tranquil rural lifestyle and breathtaking views more than compensate. This unique development is a rare find, so don’t miss out on the chance to personalize the interiors to your taste with an allowance for kitchen and bathroom fittings. Experience peaceful living while still enjoying easy access to central Scottish business hubs. This home is a perfect blend of modern design, comfort, and future potential—schedule a viewing today!
4 bedroom detached house for sale in Waulkmill, Main Street, Avonbridge, Falkirk, FK1 2NG, FK1 — £235,000 • 4 bed • 2 bath • 1582 ft²
5 bedroom terraced house for sale in Avonbridge,Falkirk,FK1 2LG, FK1 — £415,000 • 5 bed • 4 bath • 1411 ft²
5 bedroom detached house for sale in 67 Blinkbonny Road, FK1 5BY, FK1 — £524,000 • 5 bed • 3 bath • 1718 ft²
4 bedroom detached house for sale in Bore Row, Stirling, FK7 — £480,000 • 4 bed • 3 bath • 2093 ft²
3 bedroom semi-detached house for sale in Plot 5, Antonine Steading, East Balmuildy Farm, G23 5HE, G23 — £355,000 • 3 bed • 3 bath • 1360 ft²
5 bedroom detached house for sale in 21C Bonnyside Road, FK4 2AD, FK4 — £575,000 • 5 bed • 4 bath • 4563 ft²






















































