Sunny, low-maintenance one-bedroom with rooftop views and modern fittings.
Lift-served second-floor apartment with large patio-style windows
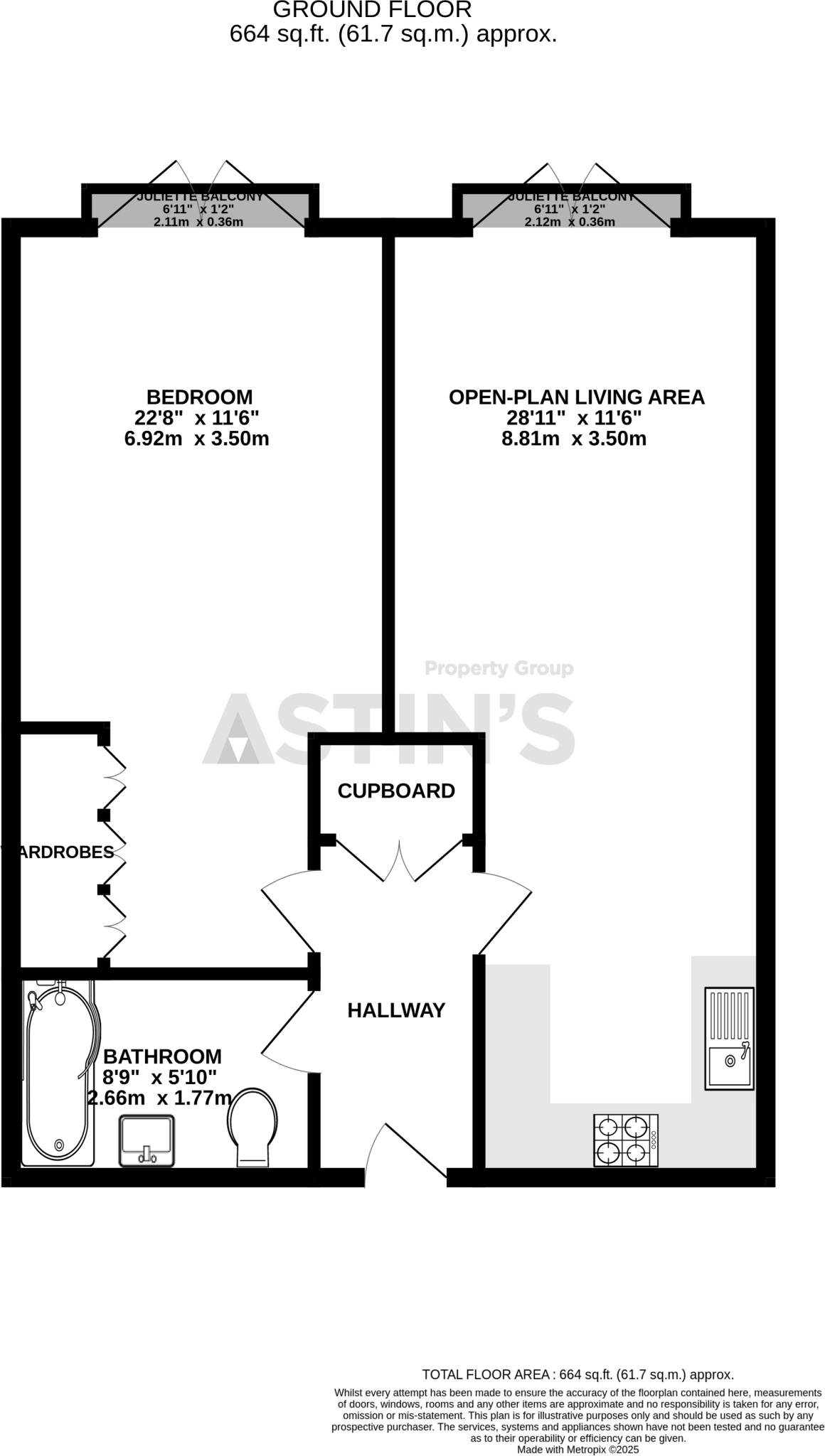
Set on the second floor of an attractive Art Deco conversion, this bright one-bedroom apartment offers a compact, low-maintenance base close to Whitby town centre. Large patio-style windows and juliet balconies to both living room and bedroom deliver rooftop views across West Cliff to the Parish Church and Abbey, while an open-plan living area and modern fitted kitchen with integrated appliances make daily life straightforward.
The double bedroom has built-in wardrobes and space for additional furniture; a luxury bathroom provides a bath with shower above, vanity unit and WC. Practical touches include a hallway cupboard housing the hot water tank and additional storage, plus lift access to the apartment — useful for anyone seeking easier mobility in a well-kept building.
Buyers should note a few important points: the property’s tenure and council tax band are not specified, and the wider area is described as relatively deprived which may affect resale dynamics. There is no flooding risk and the building is described as modern and well managed, but prospective buyers should confirm service charges, any age-restriction rules, and tenure details before proceeding.
Overall this is a tidy, ready-to-live-in apartment ideal as a retirement bolt-hole or low-maintenance second home for someone who values town-centre convenience, coastal views and easy access to local amenities.
1 bedroom apartment for sale in Broomfield Terrace, Whitby, YO21 — £125,000 • 1 bed • 1 bath • 743 ft²
2 bedroom apartment for sale in Crescent Avenue, Whitby, YO21 — £130,000 • 2 bed • 1 bath
1 bedroom apartment for sale in Albion Terrace, Whitby, YO21 — £135,000 • 1 bed • 1 bath • 413 ft²
2 bedroom apartment for sale in Princess Royal Apartments, Royal Crecent, Whitby, North Yorkshire, YO21 — £229,000 • 2 bed • 1 bath • 853 ft²
1 bedroom apartment for sale in Park Terrace, Whitby, YO21 — £110,000 • 1 bed • 1 bath
1 bedroom apartment for sale in Flat 5, Abbey Court. Abbey Terrace, Whitby, North Yorkshire, YO21 — £95,000 • 1 bed • 1 bath • 547 ft²






























































