Converted mill duplex with garden, parking and long lease — ideal for families.
Chain-free three-bedroom duplex in converted stone mill
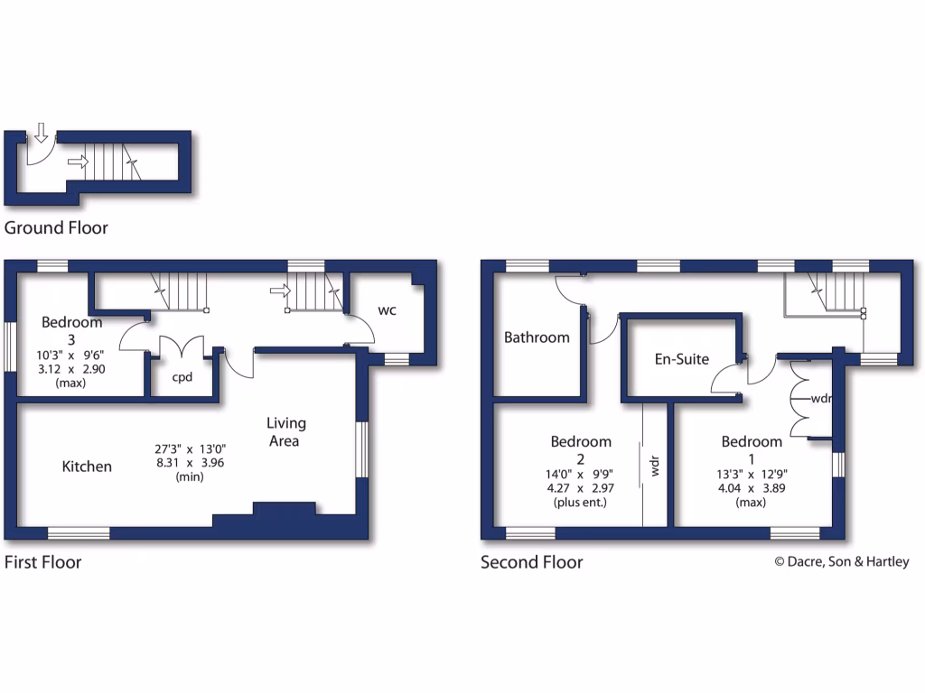
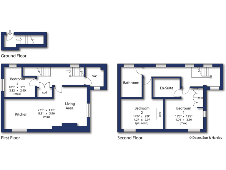
A stylish three-bedroom duplex apartment within a converted stone mill on Wilsden’s Main Street, offered chain-free and with vendor incentives. The home combines original character stonework with contemporary fittings across two floors, including an open-plan living/dining/kitchen and two modern bathrooms. The private low-maintenance front garden and designated off-street parking add practical village living benefits.
The accommodation is well suited to young families or professionals seeking village life with good road links to Bingley, Bradford and Leeds. The second-floor master bedroom includes an en-suite with underfloor heating and built-in wardrobes; a further double and a ground-floor double give flexible sleeping or home-working options. Rooms are average in size for a mill conversion and the layout makes good use of the footprint.
Practical information: the property is leasehold with an exceptionally long lease (999 years), a nominal ground rent of £5 pa and an annual service charge around £1,020 (including buildings insurance). Heating is by electric room heaters rather than gas central heating — efficient wiring and underfloor heating in the en-suite but no communal gas system. Broadband speeds are fast and local crime is low.
Notable positives include the peaceful village setting, attractive period exterior, private garden and allocated parking. Buyers should note the service charge, electric-only heating and average room sizes typical of mill conversions. An early viewing is recommended to judge the space and finish in person.
3 bedroom apartment for sale in Airedale Mills, Micklethwaite Lane, Bingley, West Yorkshire, BD16 — £249,950 • 3 bed • 3 bath • 1200 ft²
2 bedroom flat for sale in Meadow Road, Apperley Bridge, Bradford, West Yorkshire, BD10 — £167,000 • 2 bed • 2 bath • 829 ft²
2 bedroom maisonette for sale in Meadow Road, Apperley Bridge, Bradford, BD10 — £150,000 • 2 bed • 2 bath • 695 ft²
3 bedroom duplex for sale in Airedale Mills, Micklethwaite, BD16 — £285,000 • 3 bed • 3 bath • 1312 ft²
2 bedroom flat for sale in Redding Wood Lane, Steeton, Keighley, West Yorkshire, BD20 — £119,000 • 2 bed • 1 bath • 635 ft²
3 bedroom apartment for sale in Flat , Byron Halls, Byron Street, Bradford, BD3 — £130,000 • 3 bed • 3 bath • 1744 ft²






















































































