Shared ownership option with on-site care, bistro and social spaces.
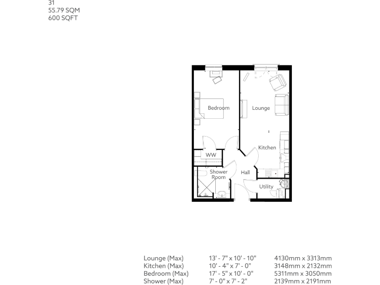
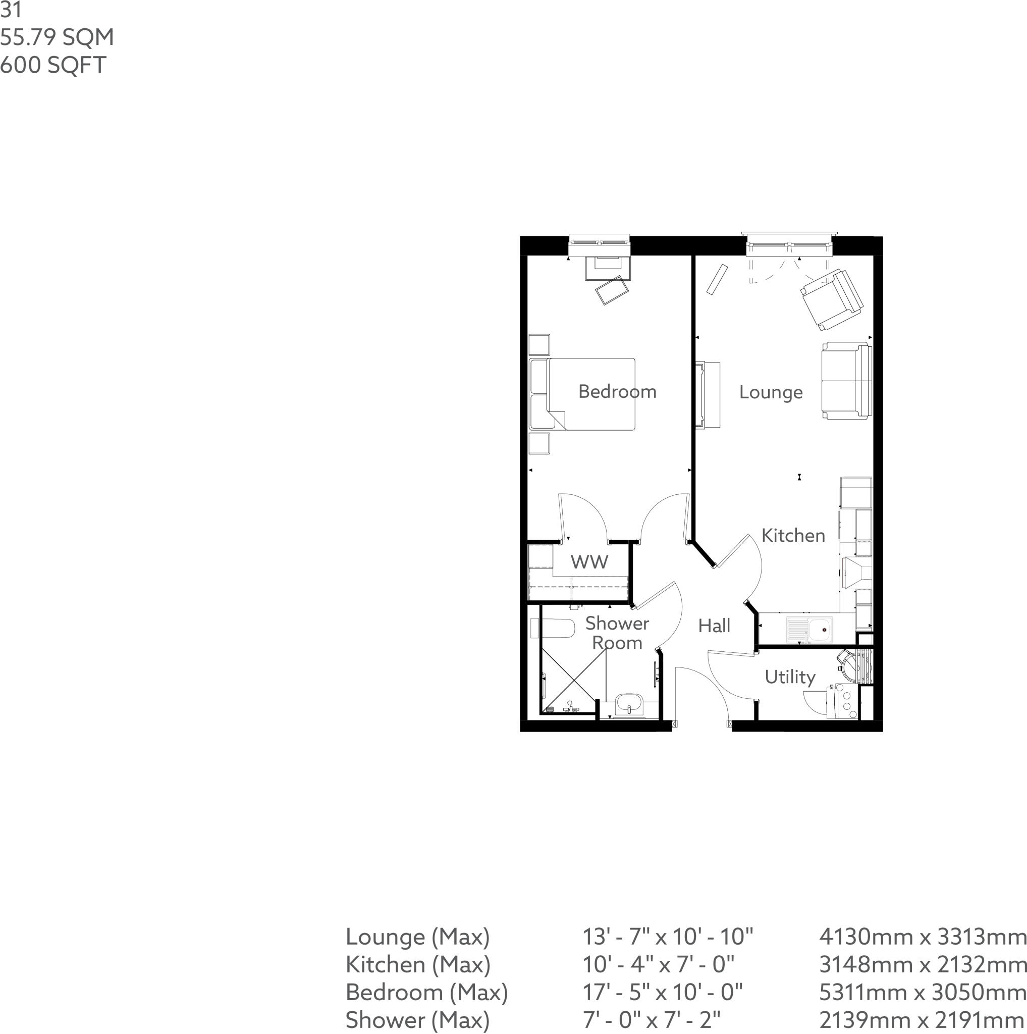
South-facing one-bedroom apartment with bright open-plan living
Set within a purpose-built retirement development in central Macclesfield, this one-bedroom shared-ownership apartment offers bright, low-maintenance living with communal facilities designed for social life and convenience. The open-plan living/kitchen area and south-facing aspect bring good natural light, and a fitted bedroom wardrobe provides practical storage for everyday living. Fast broadband and excellent mobile signal help you stay connected with family and services.
The development includes a bistro with daily seasonal menus, a stylish communal lounge, landscaped gardens, and a guest suite for overnight visitors. An estate manager is on-site 24/7 and there is a remotely monitored emergency call system, giving added peace of mind. Regular social events and clubs make it easy to join a welcoming community.
This is a leasehold shared-ownership property (new build, 2023) with examples quoted at 50% share for £120,000 plus £275pcm rent, or 75% share at £180,000 with no rent. Service charges average £3,300 per year and the tenure is long (988 years remaining). Heating is by electric room heaters and the main fuel is electricity — consider running costs compared with mains gas alternatives.
Note the surrounding area is classified as deprived and recorded local crime levels are very high; buyers should assess personal safety and access arrangements. Council tax banding is not specified. Overall, this apartment suits someone seeking sociable, low-upkeep living with on-site support and modern finishes, while accepting service charges, electric heating and local area issues.
1 bedroom retirement property for sale in 85 Coare Street,
Macclesfield,
Cheshire,
SK10 1HZ, SK10 — £195,000 • 1 bed • 1 bath • 649 ft²
2 bedroom retirement property for sale in 85 Coare Street,
Macclesfield,
Cheshire,
SK10 1HZ, SK10 — £232,500 • 2 bed • 1 bath • 735 ft²
2 bedroom retirement property for sale in 85 Coare Street,
Macclesfield,
Cheshire,
SK10 1HZ, SK10 — £324,950 • 2 bed • 1 bath • 735 ft²
1 bedroom retirement property for sale in 85 Coare Street,
Macclesfield,
Cheshire,
SK10 1HZ, SK10 — £176,250 • 1 bed • 1 bath • 591 ft²
2 bedroom retirement property for sale in 85 Coare Street,
Macclesfield,
Cheshire,
SK10 1HZ, SK10 — £329,950 • 2 bed • 1 bath • 735 ft²
1 bedroom flat for sale in Hope Street West, Macclesfield, SK10 — £92,000 • 1 bed • 1 bath • 463 ft²






























