Contemporary four-bed with landscaped garden and EV charging, close to Bingham town centre.
Modern detached build completed in 2020
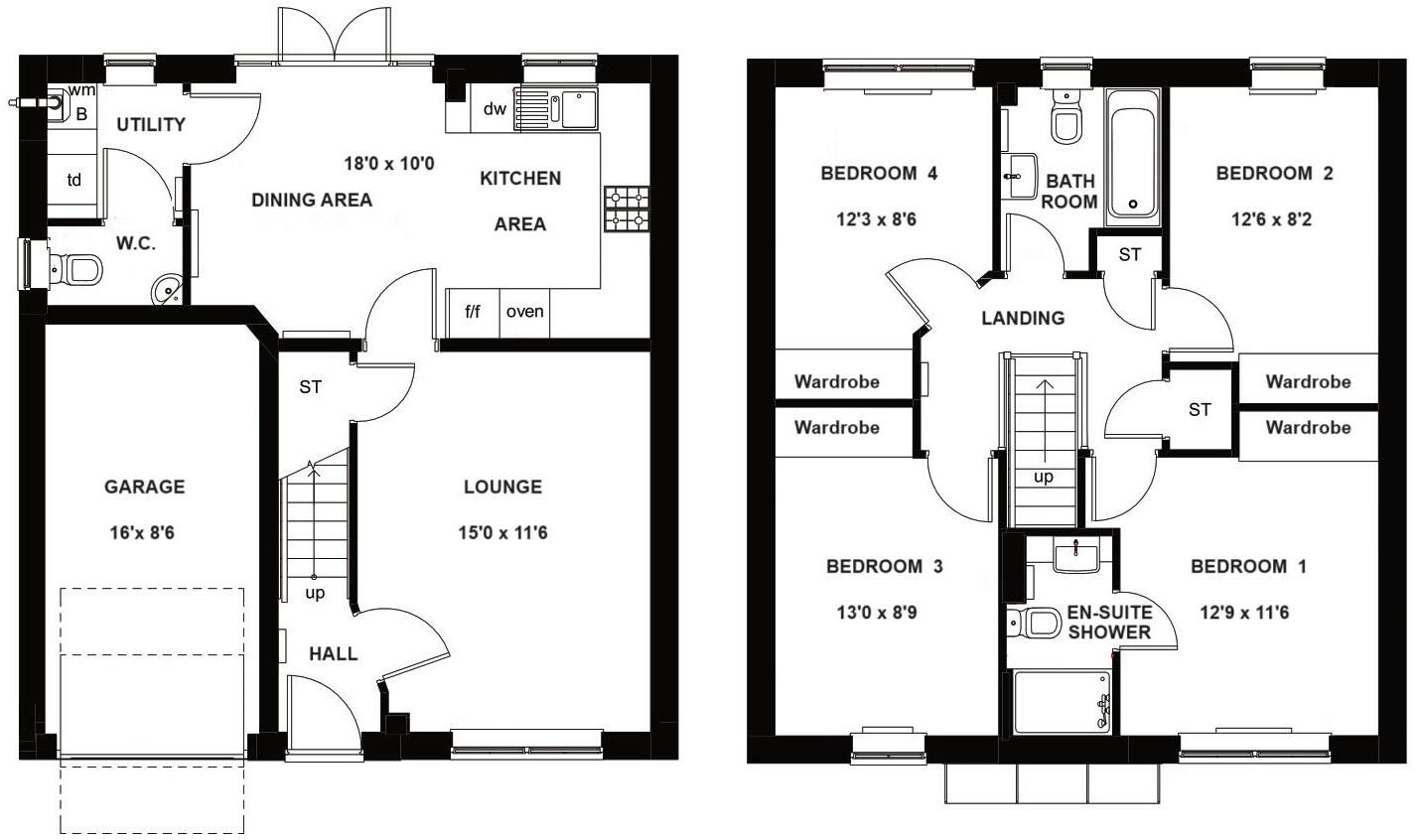
A modern four-bedroom detached house built in 2020, arranged over two stories and finished to a contemporary specification. The Windermere-style layout delivers a spacious lounge, a large open-plan living/dining kitchen, utility and cloakroom on the ground floor, with four bedrooms and two bathrooms upstairs. The property feels well maintained and benefits from gas central heating, double glazing and fast broadband suitable for home working.
Outside, the fully enclosed, professionally landscaped rear garden is a standout feature — large paved entertaining area, pergola seating and private, sunny aspect. The wide driveway, integral single garage and an electric car charging point provide convenient off-street parking for two cars and EV owners. Located a 20-minute walk from Bingham Market Place, the house is close to shops, rail links to Nottingham and Good Ofsted-rated local schools.
Practical considerations: the overall internal size is modest at about 819 sqft for four bedrooms, so rooms are compact compared with larger family homes. Council tax is moderate and the area records average crime levels. This home will suit a small family or buyers wanting low-maintenance living with excellent local amenities, rather than those seeking large principal rooms or expansive internal space.
4 bedroom semi-detached house for sale in Wilford Avenue, Bingham, NG13 — £299,950 • 4 bed • 2 bath • 1163 ft²
4 bedroom semi-detached house for sale in Kettleband Close, Bingham, NG13 — £300,000 • 4 bed • 2 bath • 1120 ft²
5 bedroom detached house for sale in Dunsmore Avenue, Bingham, NG13 — £500,000 • 5 bed • 4 bath • 1970 ft²
4 bedroom detached house for sale in Widnall Drive, Bingham, Nottingham, NG13 — £465,000 • 4 bed • 3 bath • 1039 ft²
3 bedroom semi-detached house for sale in Widnall Drive, Bingham, NG13 — £310,000 • 3 bed • 2 bath • 1120 ft²
2 bedroom semi-detached house for sale in Widnall Drive, Bingham, NG13 — £245,000 • 2 bed • 1 bath • 524 ft²


























































































































































