Chain-free, low-maintenance one-bedroom close to shops and green space.
For over-55s, first-floor apartment with lift access
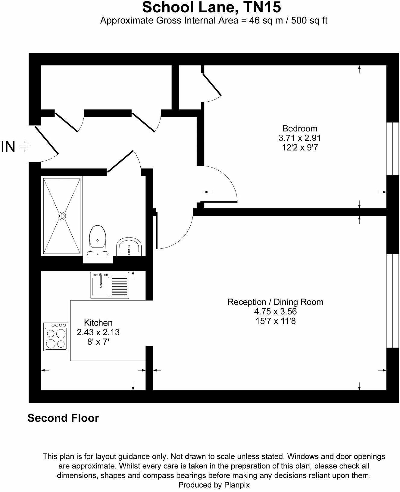
A well-presented first-floor retirement apartment in the heart of Seal, arranged for over-55s and offered chain-free. The flat has a spacious sitting/dining room, a fitted kitchen, a double bedroom with built-in storage and a walk-in shower room — comfortable, straightforward accommodation for downsizers seeking village convenience.
Practical positives include a lift to the first floor, off-street communal parking, an emergency call system and a westerly-facing communal garden with pleasant views over Seal recreation ground. The apartment benefits from double glazing and electric storage heating, and the communal areas and gardens are well maintained.
Important purchaser notes: the sale is for 75% shared ownership (Moat retains 25%) and the lease has approximately 66 years remaining. This limited lease length may restrict mortgage options — many lenders require longer leases. Service charge is approximately £180.06 pcm and there is no ground rent, but prospective buyers should check financing and long-term costs before proceeding.
This apartment suits a buyer seeking low-maintenance, village-centre retirement living with easy access to local shops, community facilities and Sevenoaks town. It offers a comfortable base with potential to enjoy nearby leisure amenities, but lease length and shared-ownership status are material factors for any purchaser to investigate further.
1 bedroom flat for sale in School Lane, Seal, Sevenoaks, TN15 — £131,250 • 1 bed • 1 bath • 491 ft²
1 bedroom apartment for sale in School Lane, Seal, Sevenoaks, Kent, TN15 — £123,750 • 1 bed • 1 bath • 497 ft²
1 bedroom retirement property for sale in Bradbourne Park Road, Sevenoaks, TN13 — £130,000 • 1 bed • 1 bath • 442 ft²
2 bedroom apartment for sale in St. Johns Road, Sevenoaks, TN13 — £245,000 • 2 bed • 1 bath • 613 ft²
1 bedroom apartment for sale in St. Johns Road, Sevenoaks, TN13 — £245,000 • 1 bed • 1 bath • 592 ft²
1 bedroom terraced house for sale in High Street, Seal, Sevenoaks, TN15 — £81,250 • 1 bed • 1 bath • 521 ft²


















































































































































