**Standout Features:**
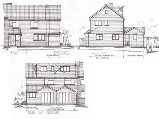
- Chain-free property with planning permission for a rear extension
- Spacious layout with five bedrooms and two bathrooms
- Large, versatile garden ideal for families
- Off-street parking for multiple vehicles
- Modernized finishes and open-plan kitchen/diner
**Potential Concerns:**
- Average property condition; may require some ongoing maintenance
- Located in an area classified as industrious hardship
Discover this promising semi-detached family home positioned on a sizeable plot in CM6 2AJ, offering an excellent blend of modern living and classic charm. Spanning approximately 1,939 square feet, the property features five bedrooms—giving you the flexibility to use one as a study or snug—and generous entertaining spaces, including a contemporary kitchen/diner, inviting lounge, and bright conservatory.
The large garden is perfect for outdoor activities and gardening enthusiasts, while off-street parking ensures convenience for larger families. With planning permission already granted for a single-story rear extension, there’s fantastic potential for future enhancements tailored to your lifestyle.
While the home occupies a small town setting characterized as having industrial hardship, it is a great investment for families or first-time buyers looking for space and future development potential. Additionally, good local schools and fast broadband make it an inviting choice! Don’t miss out on the chance to make this adaptable space your own—properties like this don’t stay on the market long!
4 bedroom semi-detached house for sale in Sandford Road, Chelmsford, Essex, CM2 — £575,000 • 4 bed • 2 bath • 1577 ft²
3 bedroom semi-detached house for sale in Brick End, Broxted, Dunmow, Essex, CM6 — £375,000 • 3 bed • 1 bath • 913 ft²
3 bedroom semi-detached house for sale in Nevendon Road, Wickford, Essex, SS12 — £450,000 • 3 bed • 2 bath • 1012 ft²
4 bedroom detached house for sale in Green Walk, Ongar, Essex, CM5 — £635,000 • 4 bed • 1 bath • 1403 ft²
3 bedroom semi-detached house for sale in Newton Green, Dunmow, CM6 — £375,000 • 3 bed • 1 bath • 790 ft²
3 bedroom semi-detached house for sale in Moreton Road, Ongar, CM5 — £425,000 • 3 bed • 1 bath • 960 ft²














































































































