Compact buy-to-let with steady rent and refurbishment upside.
Long-term tenant in situ producing £8,700pa gross income
Leasehold tenure — confirm terms and remaining term
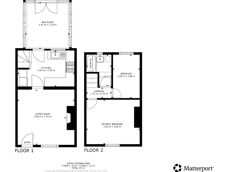
Small overall internal size — compact two-bedroom layout
Private rear garden only; no front garden or off-street parking
On-street parking directly outside the property
Area very deprived with very high local crime levels
Buyers Premium applies to secure purchase — factor into costs
Excellent mobile signal and fast broadband speeds
This compact two-bedroom mid-terrace on Gladstone Street is presented primarily as an investor opportunity. With a long-term tenant in situ and an annual gross rental income of £8,700, the property offers immediate cashflow and fits well into a buy-to-let portfolio looking for steady returns in St. Helens.
Externally the house is a traditional Victorian terrace with bay windows and a brick façade. Accommodation is small (total size described as small) with a modest private rear garden and on-street parking. Broadband speeds are fast and mobile signal is excellent, supporting tenant demand for connectivity.
Material points for buyers: the property is leasehold and sits in a very deprived area with very high local crime levels, which will affect tenant profiles and resale prospects. A Buyers Premium will apply to secure purchase. Investors should request the full Let Property Pack, EPC, floorplan and recent internal photographs before bidding to confirm condition, layout and any refurbishment costs.
This listing suits investors or developers seeking immediate rental income and the potential for value uplift through targeted refurbishment. It is less suitable for buyers seeking a spacious family home or a low-crime neighbourhood.
2 bedroom flat for sale in Lower Hall Street, St. Helens, WA10 — £50,000 • 2 bed • 2 bath • 581 ft²
3 bedroom end of terrace house for sale in Campbell Street, St. Helens, Merseyside, WA10 — £115,000 • 3 bed • 1 bath • 958 ft²
2 bedroom end of terrace house for sale in Charles Street, St. Helens, WA10 — £95,000 • 2 bed • 1 bath • 1001 ft²
2 bedroom terraced house for sale in Lascelles Street, St. Helens, WA9 — £59,000 • 2 bed • 1 bath • 570 ft²
2 bedroom flat for sale in Lower Hall Street, St. Helens, WA10 — £75,000 • 2 bed • 2 bath • 689 ft²
3 bedroom terraced house for sale in Lugsmore Lane, St. Helens, WA10 — £115,000 • 3 bed • 1 bath • 958 ft²


















































































