Spacious south garden with heated pool, sauna and garage with solar panels.
Three bedrooms in single-storey layout, flexible living for downsizers or small families
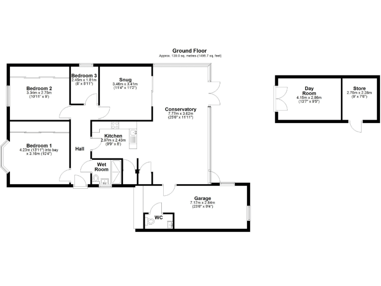
A rare single-storey opportunity close to Felixstowe’s seafront, this extended three-bedroom detached bungalow sits on a substantial plot with a landscaped south-facing garden, heated 24ft pool, sauna and separate garden day room. The bright 25ft conservatory opens directly onto a terrace and pool area, creating a strong indoor–outdoor flow ideal for relaxed entertaining or quiet sunlit days. Solar panels on the garage and bungalow, plus Nest-controlled gas central heating, help keep running costs down.
Internally the bungalow has been updated with a refitted kitchen and modern wet room; two double bedrooms, a snug living room and a compact third bedroom provide flexible accommodation for downsizers or small families. Practical additions include a large ‘in-and-out’ block-paved driveway, 23ft garage (with internal access) and useful workshop/storage behind the garden room.
Buyers should note the property’s age (circa 1930–1949) and modest overall internal size (approximately 798 sq ft), together with a single bathroom. Windows are double glazed but were installed before 2002. The immediate area is described as having higher local deprivation and an industrious character; prospective purchasers may wish to review local amenities and services.
This freehold bungalow offers a strong mix of outdoor lifestyle features and practical upgrades, making it particularly appealing to those seeking one-level living with poolside space and room for hobbies. Viewings will suit buyers prioritising garden and leisure facilities over large internal floor area.
2 bedroom detached bungalow for sale in Colneis Road, Old Felixstowe, IP11 — £410,000 • 2 bed • 1 bath • 719 ft²
3 bedroom detached bungalow for sale in Glenfield Avenue, Felixstowe, Suffolk, IP11 — £420,000 • 3 bed • 1 bath • 1516 ft²
4 bedroom detached bungalow for sale in Jaywick Lane, Clacton-On-Sea, CO15 — £400,000 • 4 bed • 2 bath • 1616 ft²
3 bedroom detached bungalow for sale in Knights Close, Felixstowe, IP11 — £425,000 • 3 bed • 1 bath • 1165 ft²
4 bedroom detached bungalow for sale in Pearcroft Road, Ipswich, IP1 — £550,000 • 4 bed • 2 bath • 765 ft²
3 bedroom semi-detached bungalow for sale in Church Lane, Kirton, IP10 — £375,000 • 3 bed • 2 bath • 1125 ft²


























































































































































