Five double bedrooms, large south-facing garden and double-length garage.
Five double bedrooms across three floors, spacious original features preserved
Three reception rooms plus conservatory; flexible family and entertaining space
Large south-facing garden with mature planting and multiple seating areas
Double-length garage and large driveway for multiple off-street spaces
Solid brick walls likely lack insulation; may need energy-efficiency upgrades
Located in an area with high crime and very high deprivation indicators
Fast broadband and excellent mobile signal support home working
Freehold tenure; approximately 2,368 sq ft and moderate council tax
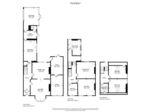
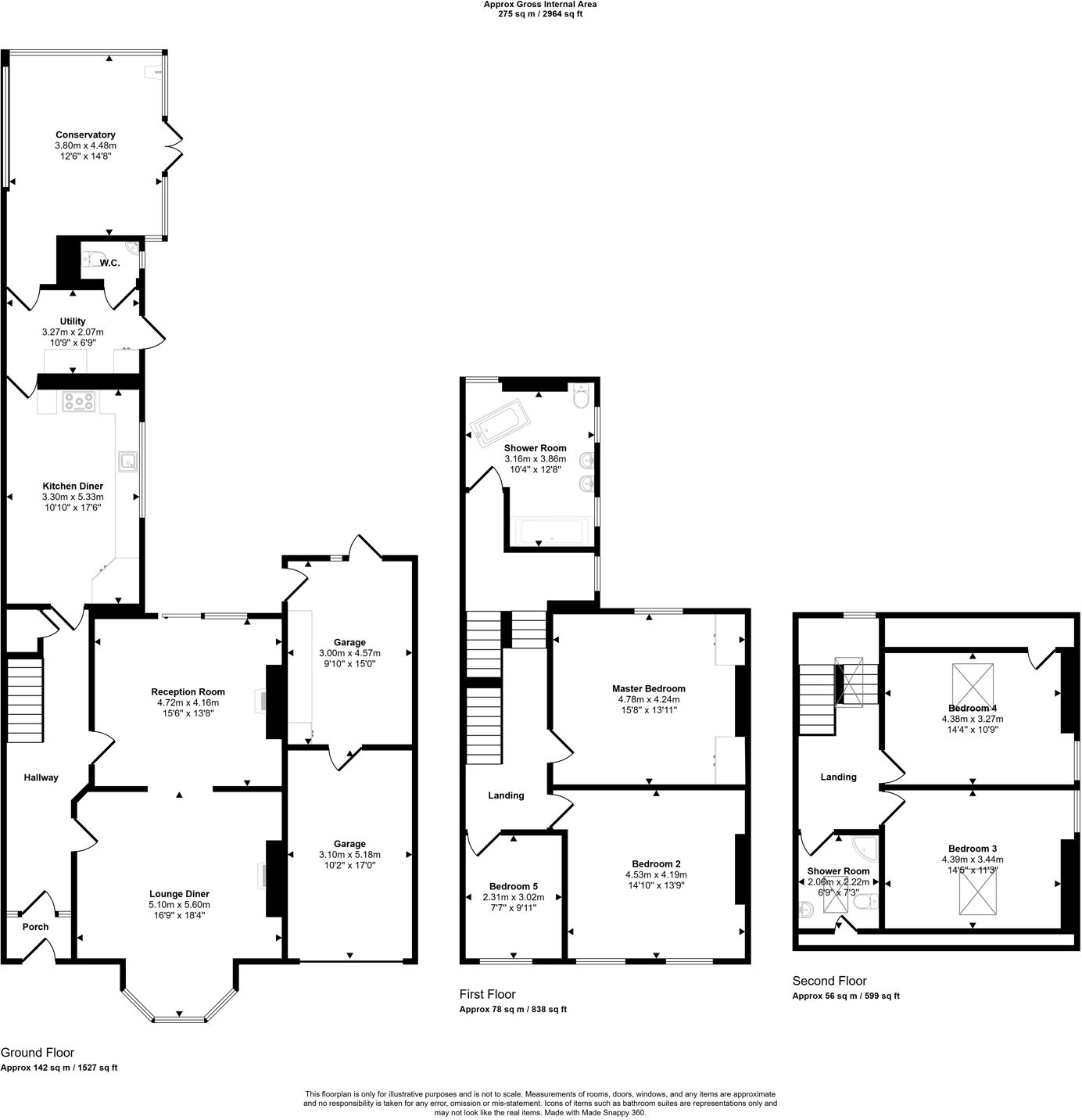
This substantial semi‑detached Victorian property spans three storeys and about 2,368 sq ft, offering five double bedrooms, three reception rooms and 2.5 bathrooms. The layout suits a large family seeking generous living space — high ceilings, bay windows and period character combine with modern heating, double glazing and a well-appointed family bathroom.
Outdoors, the large south‑facing garden and double‑length garage with driveway give strong practical appeal: plenty of space for children, pets and off‑street parking. Broadband is fast and mobile signal is excellent, useful for home working or streaming. Nearby primary and secondary schools include several rated Good or Outstanding.
Buyers should note material and local realities honestly. The solid brick walls are likely uninsulated as built and may require upgrading for energy efficiency. The wider area shows high crime and very high deprivation indicators; this affects amenity perception and could influence resale or rental demand. Council tax is moderate and tenure is freehold.
Overall, this is a roomy period family house with clear potential for improvement and modest investment to modernise insulation and finishes. It will appeal to buyers who prioritise space, character and a large garden but who are realistic about local area challenges.
5 bedroom semi-detached house for sale in Hutton Avenue, Hartlepool, Durham, TS26 — £330,000 • 5 bed • 3 bath • 1974 ft²
6 bedroom semi-detached house for sale in Hutton Avenue, Hartlepool, TS26 — £340,000 • 6 bed • 1 bath • 1378 ft²
6 bedroom semi-detached house for sale in Hutton Avenue, Hartlepool, TS26 — £380,000 • 6 bed • 2 bath
6 bedroom semi-detached house for sale in Park Road, Hartlepool, TS26 — £440,000 • 6 bed • 2 bath • 3208 ft²
7 bedroom semi-detached house for sale in Westbourne Road, Hartlepool, TS25 — £450,000 • 7 bed • 5 bath • 2336 ft²
5 bedroom semi-detached house for sale in Stanhope Avenue, Hartlepool, TS26 — £320,000 • 5 bed • 2 bath • 1887 ft²






















































































































































































